EasyManua.ls Logo

Saunacore Heaters - Page 11

Default Icon
19 pages
Print Icon
To Next Page IconTo Next Page
To Next Page IconTo Next Page
To Previous Page IconTo Previous Page
To Previous Page IconTo Previous Page
Loading...
10
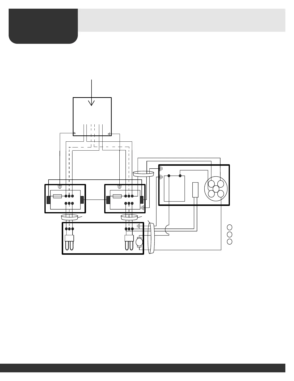
Mechanical Controls—Wiring (wall or built-in)
SAUNACORE
Figure 114
AB
L1
L2
T1 T2
C
Breaker Panel
MECHANICAL
CONTROL
A
B
C
Thermostat Control
240v Pilot Light
Timer
H.L.
Heater
Conduit
or BX
Coil
Conduit
or BX
Inline Fuse
Ground
Ground
Ground
L1 L2
L3
Mechanical Control
(240v/208v/1 or 3 Phase 50 Amps and over)
Breaker Panel
Conduit
or BX
Coil
Inline Fuse
Ground
L1 L2
L3
L1 L2L3 L1 L2L3
L1
L3
L2
Mercuri control must be installed outside of the sauna room, into a 3 gang masonry
electrical box. When a magnetic contactor is used, it also must be installed into an
appropriate metal electrical enclosure box outside of the sauna.
For supply connections, use suitable AWG wires suitable for at
least 90 C (190 F).
(Use copper wire only). - Ground wire must be insulated.
o
o
CAUTION: THE MANUAL RESET LIMIT SHALL BE WIRED IN THE CIRCUIT.
Breaker Panel
(Main Power Supply)
(applies to Canadian application)
Terminal Connection
Block