EasyManua.ls Logo

Saunacore Heaters - Mercuri and Mechanical Wiring

Default Icon
19 pages
Print Icon
To Next Page IconTo Next Page
To Next Page IconTo Next Page
To Previous Page IconTo Previous Page
To Previous Page IconTo Previous Page
Loading...
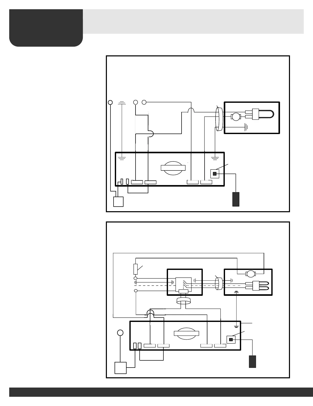
Figure 99
Figure 88
Coil
Electronic Control
(rear view)
1 Amp
240 V
Fuse
(INLINE)
H1 L1 L2 H2
Temperature Plug
Temperature
Sensor
in sauna
(over stove, ceiling
height)
Control
Ground
H.L.
Heater
Conduit
or BX
Ground
POWER
SUPPLY
Ground
L1
L2
Conduit
or BX
L3
L1
L2
L3
H1 L1 L2 H2
H.L.
Heater
Temperature Plug
Temperature
Sensor
Power Supply
Ground
L1 L2
Conduit
or BX
Ground
Control
7 www.saunacore.com
Mercuri Digital Control
SAUNACORE
Mercuri Digital Controls
(120v/240v 1Phase 30 Amps + Under)
(rear view)
Mercuri Digital Controls
(240v/208v) 1 Phase Over 30 Amps or Any 3 Phase)
IMPORTANT!
Loose connections or connectors
may cause electrical shortage.
Make sure all connections and
connectors are firmly secure.
Operation:
Set time and temperature.
Temperature display window will
alternate simultaneously from
current
room temperature and set
tempurature
Note:
All power supply wires
from control box to stove
must be protected by
metal conduit.
(rear view)
AUX
LIGHT
N
LIGHT
N
CAUTION: THE MANUAL RESET LIMIT SHALL BE WIRED IN THE CIRCUIT
For supply connections, use suitable
AWG wires suitable for at least
90 C (190 F).
(Use only copper wire).
o
o
Ground wire must be insulated.
Mercuri control must be installed outside of
the sauna room, into a 3 gang masonry
electrical box.
When the magnetic contactor
is used, it also must be installed
into an appropriate metal
electrical enclosure box outside the sauna.
Box Size: 3.5" deep x 3.75" high x 5-19/32" wide
Volume (63 Cu.in.)
Box Size: min 6" wide x 6" high x 3" deep
Volume (108 Cu.in.)
Eurpean Connection
( L2 = N - "Neutral")