EasyManua.ls Logo

Savaria Infinity - Page 32

Default Icon
60 pages
Print Icon
To Next Page IconTo Next Page
To Next Page IconTo Next Page
To Previous Page IconTo Previous Page
To Previous Page IconTo Previous Page
Loading...
32
Infinity and Infinity HD Planning Guide Part No. 000783, 24-m09-2015
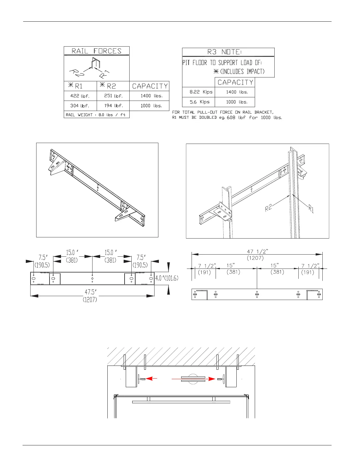
Loads on building and rail dimensions 41-
Rail bracket dimensions (Infinity)
Support wall orientation
Rails
Rail bracket dimensions (Infinity HD)

Table of Contents

Other manuals for Savaria Infinity

Related product manuals