EasyManua.ls Logo

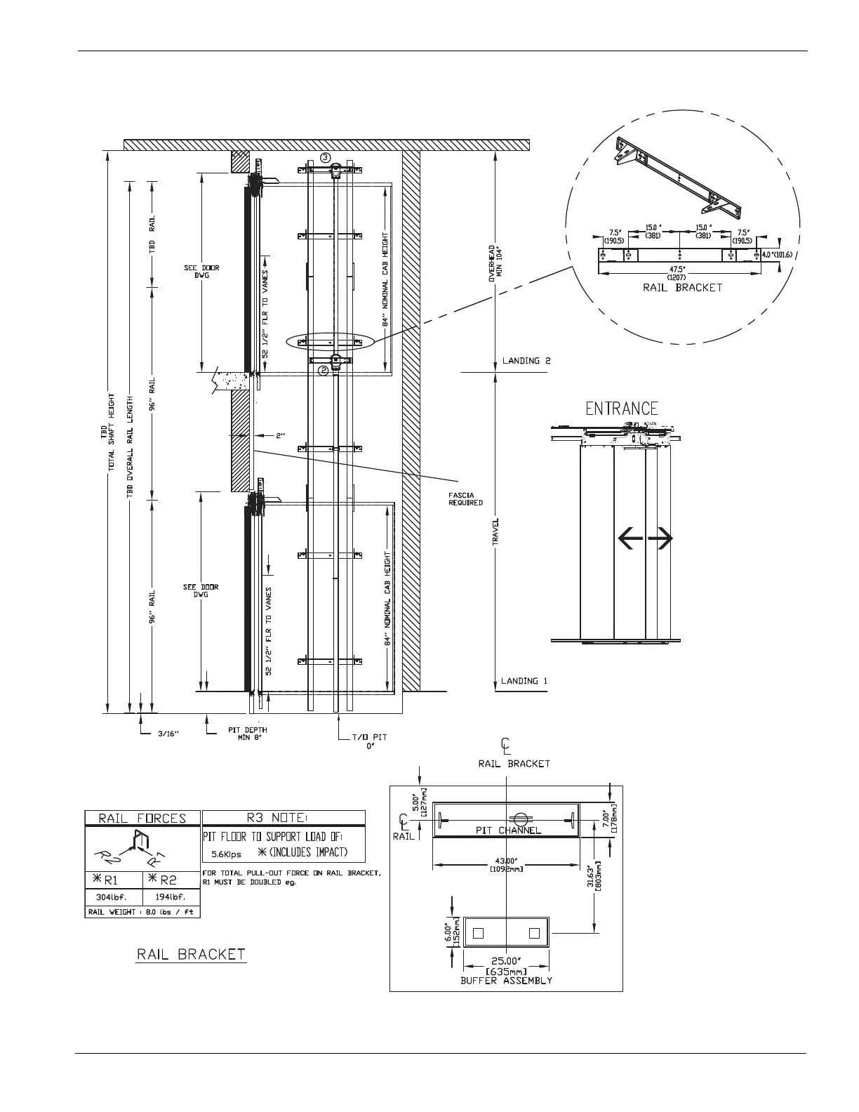
Savaria Infinity - Elevation View - Infinity Type 1 L with Auto Slim Doors

Default Icon
60 pages
Print Icon
To Next Page IconTo Next Page
To Next Page IconTo Next Page
To Previous Page IconTo Previous Page
To Previous Page IconTo Previous Page
Loading...
47
Part No. 000783, 24-m09-2015 Infinity and Infinity HD Planning Guide
Elevation view – Infinity type 1L with auto slim doors

Table of Contents

Other manuals for Savaria Infinity

Related product manuals