EasyManua.ls Logo

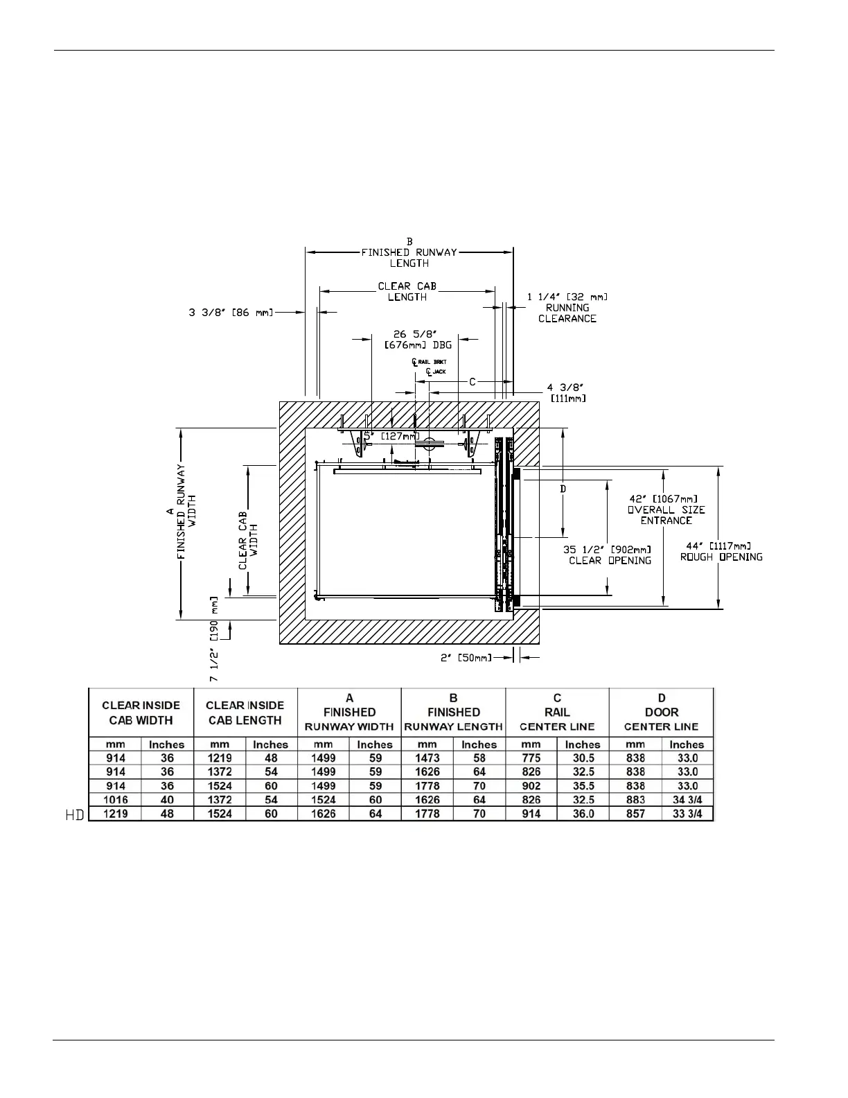
Savaria Infinity - Plan View - Infinity Type 1 R with Auto Slim Doors

Default Icon
60 pages
Print Icon
To Next Page IconTo Next Page
To Next Page IconTo Next Page
To Previous Page IconTo Previous Page
To Previous Page IconTo Previous Page
Loading...
50
Infinity and Infinity HD Planning Guide Part No. 000783, 24-m09-2015
Plan view – Infinity type 1R with auto slim doors

Table of Contents

Other manuals for Savaria Infinity

Related product manuals