EasyManua.ls Logo

Schaudt LT 320 - General System Application

Schaudt LT 320
16 pages
Print Icon
To Next Page IconTo Next Page
To Next Page IconTo Next Page
To Previous Page IconTo Previous Page
To Previous Page IconTo Previous Page
Loading...
Installation Instructions Solar systems (controller and panel)
4
Date: 20.09.2018 9990314 MA / EN
4 General and application
This document describes the connection of Schaudt products developed for
solar systems:
F LRM 1218 solar regulator*
F LR 1218 solar regulator
F LT 320 control and display panel
* the solar regulator LRM 1218 was delivered with two different housing ty-
pes. The connection is the same for both types.
Which devices are to be fitted new and the situation inside the vehicle must
be known before work is commenced. Then the corresponding connection
diagram must be determined and the connectors established in the form
shown therein:
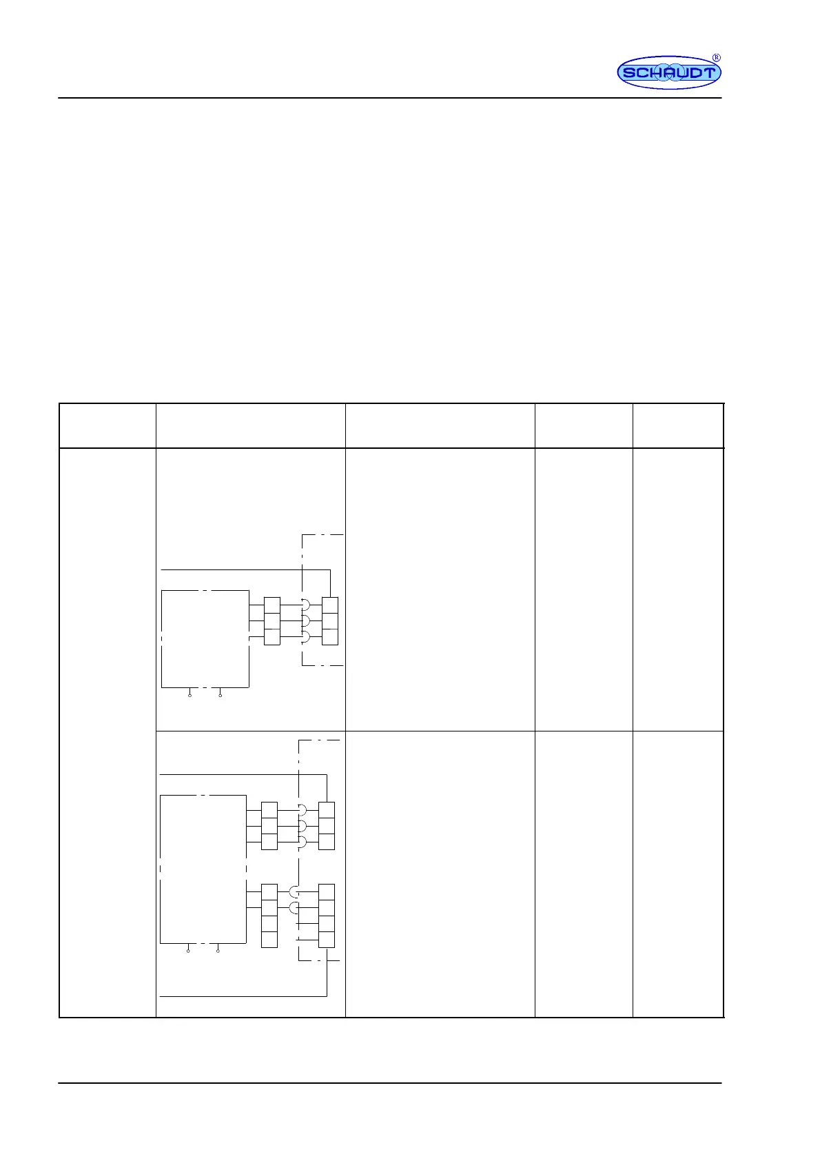
Solar regula-
tor
Connectiontobattery Display Bus system See
LRM 1218 Via EBL with 3-pin
connector; the following solar
regulator connector is in the
block diagram:
to LR(M) solar charge regulator
[Solar module]
[-- ]
[+]
+SB
Solar module
LR(M) 1218
Solar
3F MNL socket
+LAB
Negative
charge regulator
3
1
2
3
1
2
EBL ...
Via LT 320 -- Section
5.2
to LR(M) solar charge regulator
[Solar module]
[-- ]
[+]
LAB signal
SB signal
+SB
Solar module
4
4
2
3
1
2
3
1
LR(M) 1218
Solar
3F MNL socket
+LAB
Negative
charge regulator
3
1
2
3
1
2
to LR(M) 1218 solar charge regulator
Pin strip MSFQ/0--4F
EBL ...
Via panel with solar power
display
-- Section
5.4