EasyManua.ls Logo

SCS Compact - Paramètres Et Quantités

SCS Compact
Print Icon
To Next Page IconTo Next Page
To Next Page IconTo Next Page
To Previous Page IconTo Previous Page
To Previous Page IconTo Previous Page
Loading...
- 27 -
SCS Compact - Mode d‘emploi
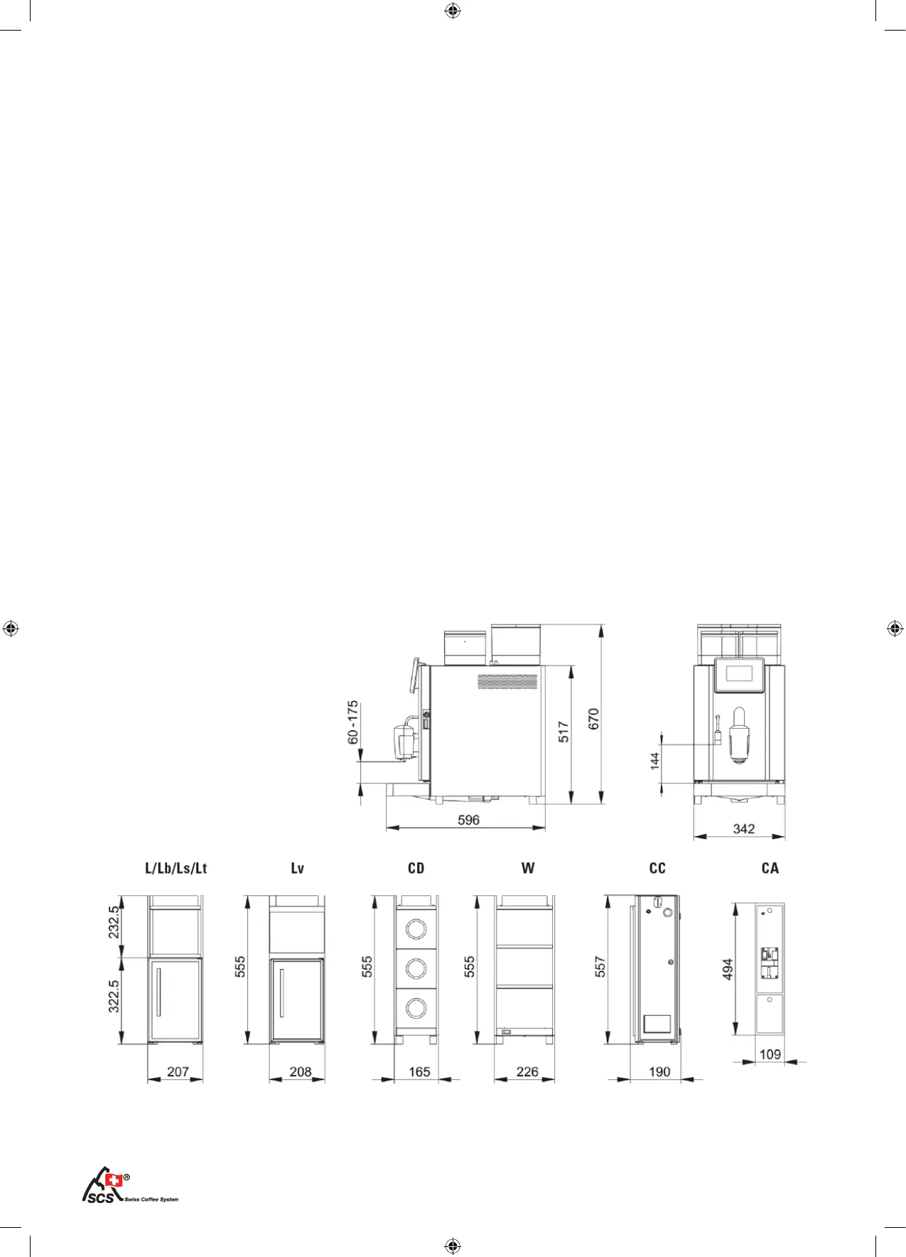
Dimensions extérieures: 342 x 670 x 596 mm
Hauteur: 550 mm
sans récipient à grains (trémie)
Hauteur (sortie boissons): 60-175 mm
Hauteur (sortie eau chaude): 144 mm
Poids: 37-42 kg
selon la version
CapacitésDimensions
Paramètres et quantités
Paramètres pour eau et environnement
Récipient à grains: 1.4 kg
Quantité avec 1 moulin
Récipient à grains: 800 g / récipient
Quantité avec 2 moulins
Récipient à poudre: 1 kg / récipient
Réservoir d'eau: 3.2 litres
(accessoires en option)
Pression d'eau: 200-600 kPa
Dureté de l'eau optimale: 5-8 dH° (8-14 fH°)
Dureté de l'eau minimum: 10 dH° (17 fH°)
Humidité de l'air au maximum: 80 %
Température ambiante: 10°-35° C
Réglementation:
La machine ne doit pas être installée à l'extérieur!
Les appareils optionnels
Réfrigérateur 4 l (L/Ld): 14 kg
Réfrigérateur avec des étagères 18 kg
Réfrigérateur avec chauffe-tasses (Lv): 21 kg
Chauffe-tasses (W): 13 kg
Distributeur de gobelets (CD): 12 kg
Changeur de monnaie/validateur (CC/CA): 15 kg/4 kg

Table of Contents