EasyManua.ls Logo

Sharp HT-X1H - Resume Playback Function

Sharp HT-X1H
88 pages
Print Icon
To Next Page IconTo Next Page
To Next Page IconTo Next Page
To Previous Page IconTo Previous Page
To Previous Page IconTo Previous Page
Loading...
HT-X1H
6 – 9
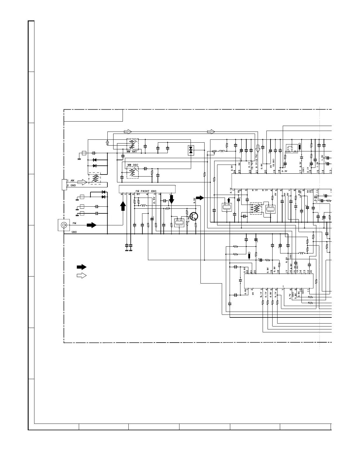
Figure 6-9 SCHEMATIC DIAGRAM (9/10)
NC
NC
NC
PD
VT
FM
FM
MUTE
VSM
AM RF
PHASE
PHASE
IF OUT
STEREO
SD
GND
AM IF
REG
AM MIX
FM DET
OUT
OUT
VCC
OUT
OUT
IN
IN
IN
CUT
AM LOW
FM/AM
IN
MPX VCO
MPX IN
OUT
MO/ST
L-CH
FM AFC
AM OSC
AM OSC
CE
DI
CL
FM IF
DO
MO/ST
R-CH
IF REQ
I
FIN
VDD
AIN
AOUT
VSS
XOUTXIN
FM IN
AM IN
FROM AM ANTENNAFROM FM ANTENNA
D303
1N4148
D304
1N4148
Q301
2SC380 O
C381
12P(CH)
R323
68K
C334
27P(UJ)
C352
10/16
CF302
C398
100/10
C341
0.022
C347
0.022
C382
15P(CH)
C335
560P
R313
680
R346
330
R344
680
R395
47K
C380
10/16
C
3
1
/
R377
5.6K
C357
2.2/50
R382
330
R376
R336
5.6K
R345
4.7K
C362
3.3/50
IC301
IC301
SA003SJ
R374
1K
R386
330
C397
0.022
C371
1/50
C354
0.022
CF352
R373
1K
C350
0.022
T302
C330
12P(CH)
R359
1.8K
R353
270
R371
1K
R360
4.7K
T351
AM IF
C393
1/50
C384
0.001
R351
5.6K
C363
0.022
C351 0.022
R357
470K
C369
56P
C374
0.018
SO302
C385
0.01
C399
0.022
C360 0.022
R381
10K
C331
0.047
C368
1/50
IC302
LC72131
R379
2.2K
C392
0.001
VD301
SVC348S
C387
0.022
C366
0.001
C353 0.022
C329
0.022
T306
X351
456 KHz
VR351
R380
1.5K
L301
C358
1/50
R393
1K
C301
0.012
D301
1N4148
D302
1N4148
L353
1mH
C364 10/16
C365
0.022
R358
8.2K
R369B
82
C345
0.022
C343
33P
R369A
68
C373
0.018
R356
0
R343
180
C348
100/16
IC303
LA1832S
C361 0.022
CF351
L342
2.2uH
C355
22P
R387
5.6K
C383
0.022
C344
33P
C378
330P
C376
0.01
C388
0.047
R352
1K
C302
0.001
C367
1/50
L354
CF303
R350
0
R365
10K
R349
33
C370
1/50
R347
6.8K
R372
1K
C346
0.022
C337
0.022
L351
100uH
X352
4.5 MHz
C386
330P
SO301
C394
47/16
C356
0.001
C349
0.001
C332
0.022
+B
+B
+B
+B
+B
+B
+B
TUNER PWB-B5
FM SIGNAL
AM SIGNAL
NOTES ON SCHEMATIC DIAGRAM can be found on page 5-1.
A
B
C
D
E
F
G
H
1
23456

Other manuals for Sharp HT-X1H

Related product manuals