EasyManua.ls Logo

Sharp LC-26AF3 M/H/X - Page 131

Sharp LC-26AF3 M/H/X
134 pages
Print Icon
To Next Page IconTo Next Page
To Next Page IconTo Next Page
To Previous Page IconTo Previous Page
To Previous Page IconTo Previous Page
Loading...
165164
LC-26AF3 M/H/X
LC-32AF3 M/H/X
LC-37AF3 M/H/X
LC-26AF3 M/H/X
LC-32AF3 M/H/X
LC-37AF3 M/H/X
A
B
C
D
E
F
G
H
I
J
12345678910
11 12 13 14 15 16 17 18 19
*C7559, C7595
M: 220p/AC250V
H/X: 3300p/Ac250V
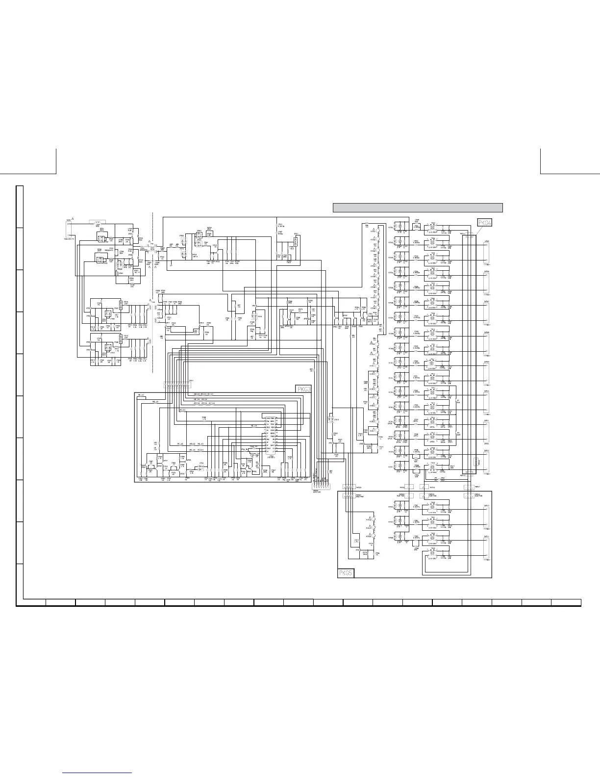
INVERTER CIRCUIT SCHEMATIC DIAGRAM (LC-32AF3M/H/X)
å AND SHADED COMPONENTS=SAFETY RELATED PARTS

Related product manuals