EasyManua.ls Logo

Sharp LC-26GA5F - Chassis Layout

Sharp LC-26GA5F
160 pages
Print Icon
To Next Page IconTo Next Page
To Next Page IconTo Next Page
To Previous Page IconTo Previous Page
To Previous Page IconTo Previous Page
Loading...
49
LC-26GA5E
LC-32GA5E
LC-26GA5E
LC-32GA5E
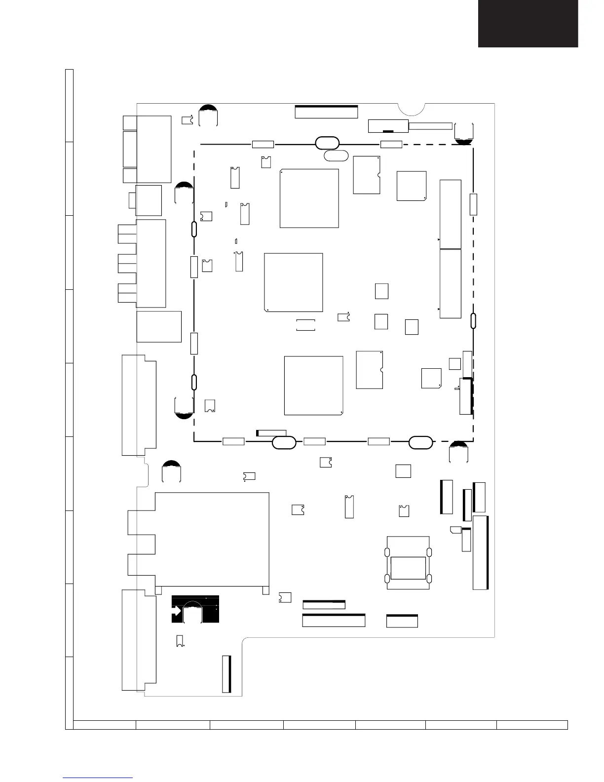
CHASSIS LAYOUT
Main Unit Layout QPWBXC656WJN1
1
I
H
G
F
E
D
C
B
A
2
3
4 567
IC2801
SC2801
IC2202
X2201
IC2201
P2205
P2206
IC2207
IC2210
IC1801
IC2203
IC1351
J402
IC2206
IC6004
P2203
P2204
IC2212
IC1003
X6002
J401
IC1002
IC1006
P1004
SF1201
SC1451
TU1201
Q1202
IC1404
IC1004
P1001
P2201
P1006
IC704
P1002
P1003
IC1402
IC1301
IC2204
P1401
P1402
P1301
P1403
IC1405
IC1401
IC1302
IC1403
P1005
IC1008
IC1001
IC2205
IC2211
IC6008
SC2201
SC1452

Related product manuals