EasyManua.ls Logo

Sharp LC-26GA5F - Page 53

Sharp LC-26GA5F
160 pages
Print Icon
To Next Page IconTo Next Page
To Next Page IconTo Next Page
To Previous Page IconTo Previous Page
To Previous Page IconTo Previous Page
Loading...
53
LC-26GA5E
LC-32GA5E
IC 2201
PW1306-10 QL
RH-IXB062WJ
VIDEO IMAGE PROCESSOR
STANDARD AND HIGH DEFINITION VIDEO FORMATS
IC 2202
EEPROM
2K x 8 bits
BR24L16F
IC 2210
FLASH MEMORY
8 Mb
RH-IXA764NJ
IC 2206
74LCx32
OR GATE
V
V
HH
SCL, SDA
BUS
P12, P21
(TO VCT BLOCK)
IC 1001
ADDRESS 0-13
DATA 0-15
FRV
FRH
ADC &
PLL
Sync
Routing
AVPort Memory
Scaler
OSD
MCU
Display/
Output
Video Image Processor
(TO VCT)
RAIN
GAIN
BAIN
PORTA 5
PORTA 4
SIG
GND
STBY
OFL 2
LAMP ARR
PORTA 6
OFL 2
(TO VCT BLOCK) STBY
PORTA 1
PORTA 0
P2206
P2206SH
SC2201
RESET_N
PIXEL BLOCK
M29W8000DT70N6
(TO VCT)
+1,8Vs
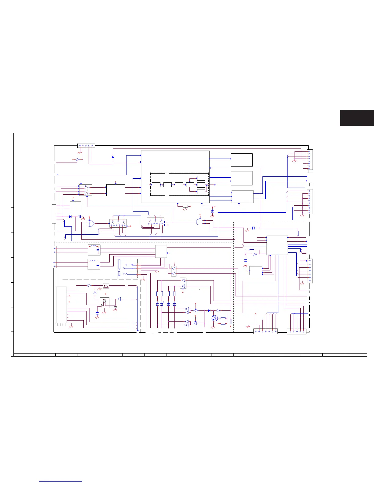
MAIN BLOCK DIAGRAM 1/2 - GA5E
28/6/05
ANALOG
INPUT
1
4
SPR2
(TO VCT BLOCK)
3
CPLD BLOCK
SPL1
2
SPL2
SPR1
SO
TMSCP
IN2
BUFFER
4
OSD 2
RESET OUT
2S MUTE
+1,8V STBY
(TO VCT BLOCK)
SERIAL FLASH
OSCILLATOR
3
IC1008
SST25LF080A
RESET
DISPLAY
P1006
(SDA)
IN1
OUT L
MEMORY 8Mbit
FM
RADIO
AGC
OSD D
SC2R
1
3
SF1201
X1201
5
GND
( TO VCT BLOCK)
5
TCKCP
(TO VCT BLOCK)
2
CE
ADDRESS 0,1,19
N.C.
(SMUTE)
KEY 1
AUDIO BLOCK
V_TUNNING
SC2L
IC 1351
SERIAL FLASH
(TO EXT 1)
MUTE
(TO VCT BLOCK)
Digital Audio
Amplifier
SCK
1
(TO VCT BLOCK)
10.7MHz
OPC
(IF+)
XC2C32
ADDLES.SELECT
6
4
IC1201
IF
MIXER
KEY 2
NC
TA2024
43.1MHz
(SCL)
L OUT PIN
JTAG
N.C.
SCL
9
TDICP
IR
SWITCH
IC1301
FM IF
TV
10
(IF-)
CPLD
DATA 0-7
SI
SPL
TV IF
8
2
CLK
OUT R
P1004
CLASS-T
OSD K
11
TUNER BLOCK
SDA
SPR
(TO VCT BLOCK)
R OUT PIN
(TAGC)
(TO VCT BLOCK)
(SFI)
ON/OFF
(TO VCT BLOCK)
IR
TX
N.C.
IC1006
(TO VCT BLOCK)
TDOCP
(TO VCT BLOCK)
P1001 KEY
7
IC1801
PI 5V3 30W
IC2203
PI 5V3 30W
IC1803
TC7508U
Q1802 OUT VB-A
Q1803 OUT VG-A
Q1804 OUT VR-A
(TO VCT BLOCK)
(TO VCT BLOCK)
(TO VCT BLOCK)
IC 2205
BU4053
VGAH
VGAV
VGAV
VGAH
VGA R
SC2801
VGA INPUT
COMPONENTS HD
P2205
R.G.B.
IC2207
TLVD823
LVDS
DEB 0-7, DEG 0-7, DER 0-7
DHS, DVS, DEN, DCLK
TCLK1
TCLK2
TA1, TB1, TC1, TD1
TA2, TB2, TC2, TD2
+3,3V STBY
YUV
MULT
MULT
YUV
SCART 3
OFL 1
1
2
3
4
5
6
7
8
OSD1
(TO TUNER BLOCK)
SDA
SCL
OSD 2
RXDD
TXDD
DOB 0-7, DOG 0-7, DOR 0-7
IC2211
12
13
1
2
VSYNC
HSYNC
PIX R
VGA R
PIX G
VGA G
PIX B
VGA B
PIX R
PIX G
PIX B
U-YUV
OUT VB
Y-YUV
OUT VG
V-YUV
OUT VR
1
33
1
2
3
4
5
6
7
8
9
10
V-YUV
U-YUV
Y-YUV
YUV R
YUV L
(TO VCT BLOCK)
L-YUV
R-YUV
VGA G
VGA B
MULT
1
4
SCART 3
4
1
MULT
SCART 3
(TO VCT BLOCK)
MUTE
(TO AV FRONT)
(TO EXT 2)
(TO AV FRONT)
Y2B
Y2A
IC2801
PLUG & PLAY
NVM
SCL
SDA
(TO CPLG) VGA
(TO VCT BLOCK)
YUV
(TO VCT BLOCK)
(TO VCT BLOCK)
(TO VCT BLOCK)
(TO EXT 2)
(TO VCT BLOCK POW_OFF)
+3,3Vs
+3,3V STBY
+5V
+5V
+3,3V STBY
+5V
+33V
+3,3V
+5V
+5V
+3,3Vs
+5V
+5V
+8V
+8V
3,3V STBY
+5V
+3,3V
5 4 3 2 1
P2201
RESET
C1020
R1008
P4301
(FER-RESET)
IC1402
Q1809
Q1403
Q1404
IC1010
7
Q1201
32.4MHz
+3,3 STBY
1
Q1202-Q1203
1
+12VS
Q1204
3,3V STBY
C1213
5
+3,3Vs
+3,3Vs+5V
IC1802
TC7502U
FB2210
C1439
C1422
C1440
C1423
Q1013
Q1408
Q1406
Q1012
Q1410
J402
2
3
4
5
7
8
6
1
D1804
1
2345
6
78910
11 1 2
13
14
15 16
I
H
G
F
E
D
C
B
A
BLOCK DIAGRAMS
Detailed Mother Unit Block Diagram 1/2

Related product manuals