EasyManua.ls Logo

Sharp LC-26GA5F - Page 63

Sharp LC-26GA5F
160 pages
Print Icon
To Next Page IconTo Next Page
To Next Page IconTo Next Page
To Previous Page IconTo Previous Page
To Previous Page IconTo Previous Page
Loading...
63
LC-26GA5E
LC-32GA5E
1
2345
6
78910
11 12
13
14
15 16
I
H
G
F
E
D
C
B
A
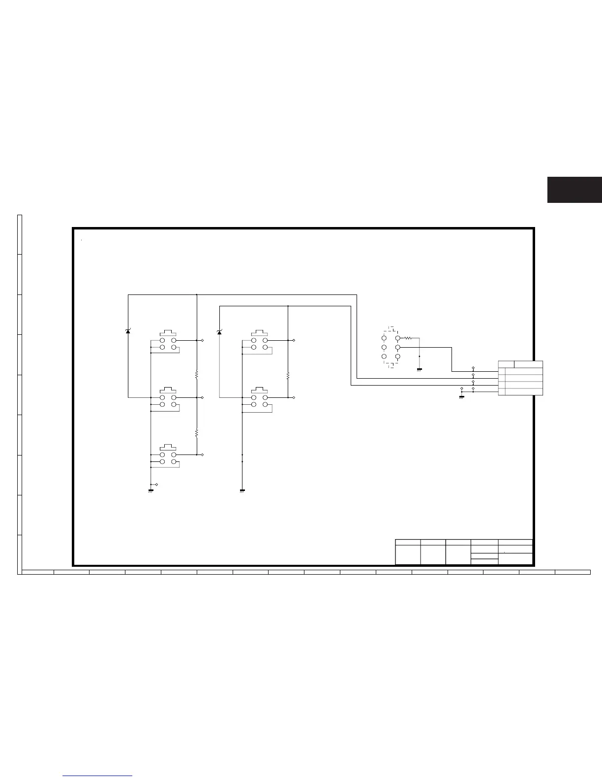
Operation Unit Diagram (CONTROL)
P4050
N0480GE
KE
1
RESET
2
KEY1
3
KEY2
4
GND
R4050
470
CY
*R4051
470
CY
R4053
680
CY
D4050
EX1271CE
RHEX
D4051
EX1271CE
RHEX
TL4050
TL4051
TL4052
TL4053
TL4054
TL4055
TL4056
TL4058
TL4059
TL4060
TL4061
SW4051
K0095CE
IN SELECT
1
2
3
4
SW4052
K0095CE
VOL +
1
2
3
4
SW4053
K0095CE
CH +
1
2
3
4
SW4054
K0095CE
VOL -
1
2
3
4
SW4055
K0095CE
CH -
1
2
3
4
S4057
P0560CE
123
456
78
*JF4001
0CY
LC26GA5EE, LC32GA5EE, LC37GA5EE
DUNTKC864 (WE03,08,14) (WE*C*H*N)
CONTROL
XC864N2
SHARP
NAME
ELECTRONICA ESPANA S.A.
VERIFIED
DATE 21-OCT-2004
CONTROL SHT001
APPROVED CODEDRAW

Related product manuals