EasyManua.ls Logo

Sharp LC-26GA5F - Page 70

Sharp LC-26GA5F
160 pages
Print Icon
To Next Page IconTo Next Page
To Next Page IconTo Next Page
To Previous Page IconTo Previous Page
To Previous Page IconTo Previous Page
Loading...
70
LC-26GA5E
LC-32GA5E
VH0
VH1
VH20
VL95
VL1
VH191
VH95
VL191
VL127
VL47
VH127
VL63
VL20
VH63
VL0
VH47
VH1
VH20
VH47
VH0
VL1
VL0
VL20
VL47
VH95
VL63
VL95
VL127
VL191
VH191
VH127
VH63
VL255
VL255
68uH
L4102
CA039WJ
22uH
L4107
BWM
C4108
4.7u
16V
KZ0070TA
R4211
10K
22uH
L4108
BWM
COM_BIAS
D4103
HSU119
LT1617ES
DC/DC CONVERTER
1
SW
2
GND
3
NFB
4
SHDN
5
VIN
C4101
0.1u
25V
Z
FB4102
0252TA
FL4103
NA002WJ
R4229
1M F
+15VPANEL
C4176
0.1u
25V
Z
R4235
100K
D4101
HSU119
PQ1CZ41H
VOLTAGE
REGULATORS
1
VIN
2
VC
3
VO
4
VADJ
5
GND
C4120
5P
CH
C4168
10u
KZ0053TA
10V
C4170
100P
CH
R4224
2.2K
1/10W
R4234
150K F
C4165
100P
CH
R4219
10K
R4228
10K
C4103
0.1u
25V
Z
C4166
220P
CH
R4220
1M
F
LTC1872
DC/DC CONVERTER
1
RUN
2
GND
3
VFB
4
SENSE
5
VIN
6
TE
R4210
10K
R4178
0
R4226
2.2K
TV
1/10W
4.7uH
L4105
R4227
820
TW
1/4W
R4206
1K
TVN
1/10W
C4142
1000P
50V
R4123
3.3K
F
C4179
0.1u
25V
Z
10uH
L4101
P0343TA
C4109
68P
CH
C4112
0.1u
25V
Z
LT1615ES
DC/DC CONVERTER
1
SW
2
GND
3
FB
4
SHDN
5
VIN
R4225
0
C4177
22u
20V
AAPF
C4136
22u
20V
AAPF
OEM_INV
VLS+15V
C4161
4.7u
KZ0070TA
16V
4.7uH
L4110
D9Mj
R4193
1K
R4217
10K
R4194
120
C4164
0.22u
16V
Z
D4104
HSU119
R4115
0
C4174
10u
KZ0053TA
10V
R4218
39K
F
NJM4580V
OP AMP
1
OUT1
2
-IN1
3
+IN1
4
V-
5
+IN2
6
-IN2
7
OUT2
8
V+
R4216
1M
F
SI4884DY
FET
1
S
2
S
3
S
4
G
5
D
6
D
7
D
8
D
OEM
R4124
3.9K
F
C4162
390P
CH
10uH
L4109
P0343TA
R4122
6.8K
F
D4107
HSU119
R4223
NZ0027TA
0.056
1/4W
Q4106
2SC3928AR
BUFFER
C4145
4.7u
KZ0070TA
16V
Q4103
2SA1530AR
SW
FB4101
0252TA
R4121
3.3K F
R4112
15K
F
D4106
EX1274CE
13V
R4233
39K
F
C4146
39u
16V
AAPF
A3OOMAVCOM
R4198
5.6K
F
PANEL_POW
R4199
100K
Q4104
2SC3928AR
INVERTER
R4113
33
Q4101
2SD1664Q
AMP
Q4105
TP0610T
SW
S
D
G
C4181
4.7u
KZ0070TA
16V
R4256
100K
GRAY_LEVEL
R4231
51K
F
R4238
1M
R4260
3.3K
F
VLS_BIAS
R4261
100
TW
1/4W
R4264
100
TW
1/4W
R4262
10K
C4192
1500P
R4263
33
Q4112
2SB1132Q
AMP
Q4108
2SK1826
FET
1
S
2
D
3
G
Q4109
2SK1826
FET
1
S
2
D
3
G
L4106
10uH
PA001WJ
4.7uH
L4103
P0355TA
10uH
L4104
P0343TA
LP2951CM
VOLTAGE REGULATORS
1
OUT
2
SENSE
3
SD
4
GND
5
ERROR
6
VTAP
7
FB
8
IN
R4272
24K F
C4197
0.1u
25V
Z
R4230
2K
F
C4169
39u
20V
AAPF
C4116
KZA047WJ
1u
50V
C4163
KZA047WJ
1u
50V
R4222
5.6K
TW
1/4W
R4244
5.6K
TW
1/4W
R4221
15K
TW
1/4W
R4239
6.8K
TW
1/4W
R4273
51K
R4271
910
F
R4102
12K F
R4103
4.7K
F
22u
35V
C4196
ASX
C4138
220u
25V
ASY
C4117
470u
16V
ASY
C4159
47u
25V
ASY
C4160
10u
50V
ASY
C4180
220u
25V
ASY
C4124
68P
(CH)
R4188
1K
F
C4110
1u
16V
KZA097WJ
1
2
3
4
5
6
7
8
R4139
33
CH
1
2
3
4
5
6
7
8
R4182
10K F
C4155
0.1u
25V
Z
*R4140
62K
F
*R4138
1.2K F
*R4141
27K
F
*R4190
47K
F
*R4170
22K
F
*R4192
56K
F
*R4157
27K
F
*R4143
56K
F
*R4167
24K
F
R4135
10K
F
C4156
0.1u
25V
Z
C4135
1u
TVB
16V
C4139
1u
TVB
16V
*C4127
1u
16V
A097WJ
1
2
3
4
5
6
7
8
*C4125
0.1u
25V
Z
R4130
10
CH
1
2
3
4
5
6
7
8
C4114
1u
16V
KZA097WJ
1
2
3
4
5
6
7
8
*R4169
680
F
*R4152
16K
F
*R4145
1.2K
F
*R4203
270
F
*R4179
51K
F
C4141
1u
16V
KZA097WJ
1
2
3
4
5
6
7
8
*R4184
22K
F
*R4201
820
F
R4204
6.8K
F
*R4158
33K
F
*R4275
5.6K
F
*R4171
56K
F
*R4181
6.8K
F
*R4183
15K
F
R4147
10
CH
1
2
3
4
5
6
7
8
*R4172
820
F
R4177
33
CH
1
2
3
4
5
6
7
8
*R4132
51K F
*R4175
62K
F
*R4174
22K F
R4126
6.8K
F
IXA706WJ
GRAYLEVEL
OPAMP
1
VL3
2
VL4
3
VL5
4
VL6
5
VL7
6
NC
7
VCC2
8
VR7
9
VR6
10
VR5
11
VR4
12
VR3
13
VR2
14
VR1
15
VR0
16
VR8
17
VCC1
18
NC
19
VR
20
VREF
21
VA8
22
VA0
23
VA1
24
VA2
25
VA3
26
VA4
27
VA5
28
VA6
29
VA7
30
GND2
31
NC
32
VB7
33
VB6
34
VB5
35
VB4
36
VB3
37
VB2
38
VB1
39
VB0
40
GND1
41
VB8
42
COM1
43
COMO
44
COMS
45
VL0
46
VL8
47
VL1
48
VL2
*R4133
18K
F
*R4168
56K F
C4119
22u
20V
AAPF
*R4142
1.5K
F
*R4176
100
F
*R4119
3.6K
F
R4187
10
R4166
10
CH
1
2
3
4
5
6
7
8
*R4118
15K
F
*R4180
3.3K
F
*R4159
470
F
C4129
1u
16V
KZA097WJ
1
2
3
4
5
6
7
8
R4155
33
F
R4196
75
F
C4137
0.1u
25V
Z
*R4137
22K
F
*C4121
0.1u
25V
Z
*R4191
82K
F
R4186
10
CH
1
2
3
4
5
6
7
8
R4125
3.3K
F
*R4200
820
F
*R4148
43K
F
R4165
33
CH
1
2
3
4
5
6
7
8
*R4164
39
F
*R4202
820
F
R4156
10
*R4109
5.6K
F
*R4114
56K
F
C4153
1u
16V
KZA097WJ
1
2
3
4
5
6
7
8
*R4153
15K
F
R4160
33
F
*R4154
1.2K
F
*R4149
24K
F
R4146
33
CH
1
2
3
4
5
6
7
8
*C4147
0.1u
25V
Z
*R4162
24K F
*R4205
680
F
R4161
10
*R4144
27K
F
*R4134
680
F
C4115
1u
16V
KZA097WJ
1
2
3
4
5
6
7
8
*R4150
680
F
*R4163
51K
F
R4270
100K
VGH
VGL
VL63
VH191
VH63
VH127
VL127
VH1
VH0
VH47
VL47
VL191
VL0
VH95
VL95
VL255
VH20
VL1
VL20
VH255
R4250
10
*R4279
10
A3COMACSCOM
C4195
0.1u
25V
Z
*R4208
10
CH
1
2
3
4
5
6
7
8
*R4136
56K
F
*R4281
10
*R4280
10
*R4282
10
CH
1
2
3
4
5
6
7
8
R4120
10K
C4106
4.7u
16V
KZ0070TA
*R4286
10
CJ
2
1
3
4
R4101
1K F
*R4288
10
CH
1
2
3
4
5
6
7
8
*C4102
1u
16V
A097WJ
1
2
3
4
5
6
7
8
D4110
DA221
12
3
R4209
220
1/4W
R4213
220
1/4W
VLS+15V
VH255
D4105
LI114
D4108
LI114
D4109
LI124
D4102
LI124
TO LCDCONT
TO POWER
TO PANEL
TO MICOM
TO PANEL
(PWBXC919WJ)
()
IC4114
IC4108
IC4116
IC4109
IC4102
Q4110
IC4107
IC4101
DUNTKC919DE01
LCD_CONT UNIT 6/7
7.9
0
-1.3
7.9
7.9
14.8 7.9 0 1.3 5.0
1.0
0
0.8
7.9
7.9
3.5
7.8
0
1.3
7.9
7.9
6.4 5.1 5.1 0
015.115.115.5
0
0
0
3.5
6.8
6.8
6.8
6.8
6.2
15.5
3.5
7.7
0
5.9
0
31.2
0
6.4
15.5
6.4
32.2
31.3
24.8
6.4
0
6.4
0
25.9
0.6
0
3.5
2.6
15.1 15.1 0 0
15.01.31.315.5
4.4 4.8 5.1 5.4 7.4 0 14.0 8.5 10.3 10.6 10.9 11.1
11.5
11.9
14.1
6.8
14.0
0
1.2
12.6
6.8
14.1
11.9
11.5
11.110.910.610.38.5007.45.45.14.8
4.4
4.1
3.5
0.9
0
8.3
5.1
5.1
5.1
0.9
3.5
4.1
1
2345
6
78910
11 12
13
14
15 16
I
H
G
F
E
D
C
B
A
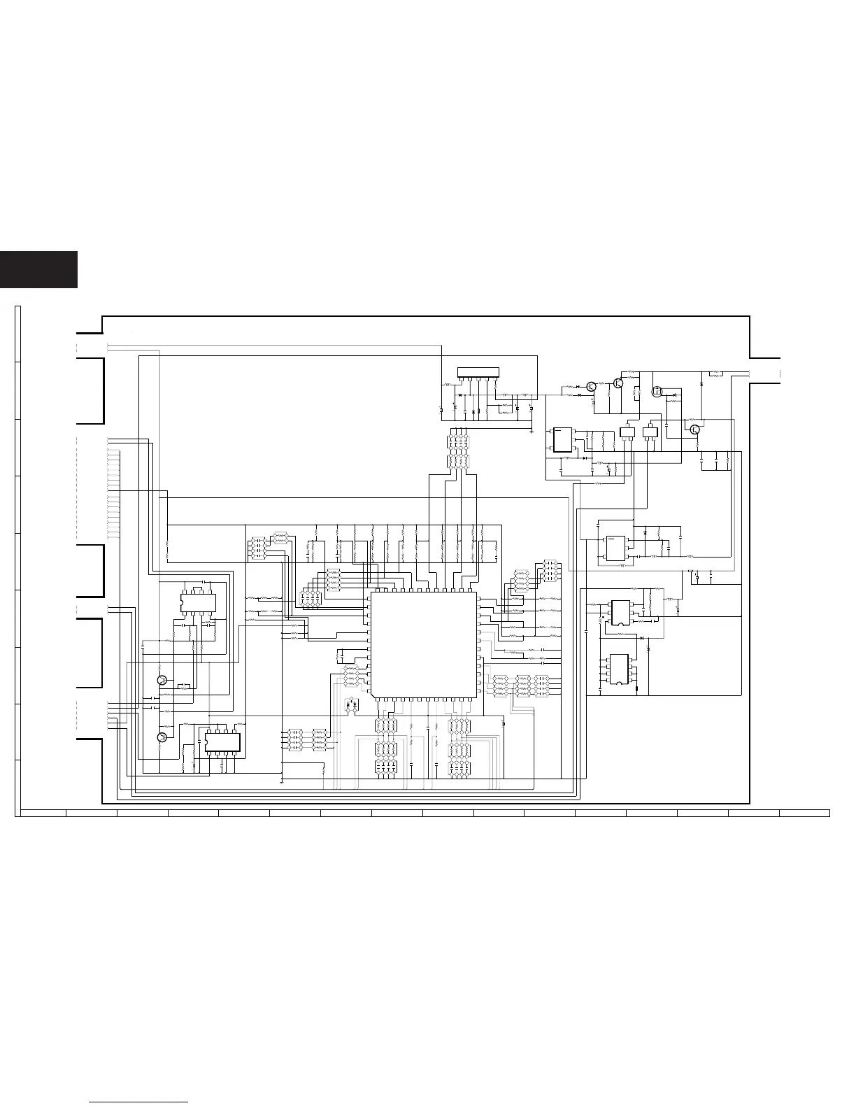
LC-26GA5E LCD Control Unit Diagram 6/7 (GRAYLEVEL)

Related product manuals