EasyManua.ls Logo

Sharp LC-26GA5F - Page 75

Sharp LC-26GA5F
160 pages
Print Icon
To Next Page IconTo Next Page
To Next Page IconTo Next Page
To Previous Page IconTo Previous Page
To Previous Page IconTo Previous Page
Loading...
75
LC-26GA5E
LC-32GA5E
1 2345
6
78910
11 12
13
14
15 16
I
H
G
F
E
D
C
B
A
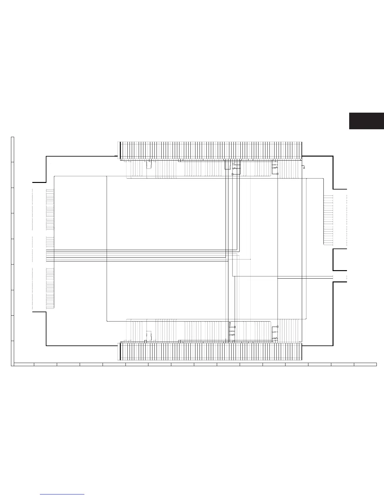
LC-32GA5E LCD Control Unit Diagram 4/7 (PANEL)
It
D9 I{;2;v 78
D9 C4
Ev
LR1N
LR1P
LR2N
LR2P
LR3N
LR0P
LR0N
LR3P
LG0N
LG0P
LG3P
LG2P
LG1N
LG2N
LG3N
LG1P
LB3P
LB0P
LB0N
LB3N
LB2N
LB1P
LB2P
LB1N
RR0N
RG2N
RG3P
RB3P
RR0P
RG1P
RR2N
RG0P
RB1N
RG1N
RG2P
RB0N
RG0N
RR3N
RB2P
RB1P
RR2P
RR1P
RB0P
RB2N
RR3P
RG3N
RR1N
RB3N
RCKN
RCKP
LCKP
LCKN
VGL
A3COMACSCOM
A3COMACSCOM
A3COMACSCOM
A3OOMAVCOM
VGH
VGL
VL0
VL1
VL20
VL47
VL63
VL95
VL127
VL191
VL255
VH191
VH127
VH63
VH255
VH1
VH20
VH47
VH0
VH95
GCK
GLBR1
GLBR2
GSP1
GSP2
POWER
VGL
A3OOMAVCOM
GLBR1
POWER
GCK
GSP1
GSP2
VGH
VL0
VL1
VL20
VL47
VL63
VL95
VL127
VL191
VL255
RB3P
RB3N
RB2P
RB2N
RB1P
RB1N
RB0P
RB0N
RG3P
RG3N
RG2P
RG2N
RG1P
RG1N
RG0P
RG0N
RCKP
RCKN
RR3P
RR3N
RR2P
RR2N
RR1P
RR1N
RR0P
RR0N
VH191
VH127
VH95
VH63
VH47
VH20
VH1
VH0
VGH
GSP2
GSP1
GCK
POWER
GLBR2
A3OOMAVCOM
VL0
VL1
VL20
VL47
VL63
VL95
VL127
VL191
VL255
VH0
VH1
VH20
VH47
VH63
VH95
VH127
VH191
VH255
LR0N
LR0P
LR1N
LR1P
LR2N
LR2P
LR3N
LR3P
LCKN
LCKP
LG0N
LG0P
LG1N
LG1P
LG2N
LG2P
LG3N
LG3P
LB0N
LB0P
LB1N
LB1P
LB2N
LB2P
LB3N
LB3P
VH255
LR0N
LR0P
LR1N
LR1P
LR2N
LR2P
LR3N
LR3P
LG2N
LG1N
LG0N
LG2P
LG3N
LG1P
LG0P
LG3P
LB1P
LB2P
LB2N
LB1N
LB0P
LB0N
LB3P
LB3N
RG2N
RR3P
RR2P
RG1P
RR0N
RB1N
RB1P
RB2P
RG3P
RR3N
RG3N
RB2N
RB0N
RR1N
RR1P
RR2N
RG0N
RB3P
RG2P
RG1N
RB3N
RG0P
RR0P
RB0P
VLS+15V
VSH+3.3V
100u
6.3V
C4655
AAPF
FL4653
NA002WJ
C4658
0.1u
C4656
0.1u
FL4654
NA002WJ
22u
20V
C4657
AAPF
C4652
0.1u
FL4651
NA002WJ
100u
6.3V
C4651
AAPF
FL4652
NA002WJ
22u
20V
C4653
AAPF
C4654
0.1u
RCKN
RCKP
LCKP
LCKN
LBR
RSPOI
REV
LSPIO
LSPOI
RSPIO
LS
R4654
0
R4655
0
R4651
0
R4652
0
A3COMACSCOM
A3OOMAVCOM
VGH
VGL
VL0
VL1
VL20
VL47
VL63
VL95
VL127
VL191
VL255
VH255
VH1
VH20
VH63
VH47
VH191
VH95
VH127
VH0
R4656
0
R4653
0
POWER
GSP1
GSP2
GLBR2
GLBR1
GCK
SC4652
NA222WJ
1
GND
2
VH0
3
VH1
4
VH20
5
VH47
6
VH63
7
VH95
8
VH127
9
VH191
10
VH255
11
VLS
12
VLS
13
GND
14
R0N
15
R0P
16
R1N
17
R1P
18
R2N
19
R2P
20
R3N
21
R3P
22
GND
23
LS
24
GND
25
CKN
26
CKP
27
GND
28
SPOI
29
SPIO
30
VCC3V
31
VCC3V
32
POL
33
REV
34
LBR
35
GND
36
G0N
37
G0P
38
G1N
39
G1P
40
G2N
41
G2P
42
G3N
43
G3P
44
GND
45
B0N
46
B0P
47
B1N
48
B1P
49
B2N
50
B2P
51
B3N
52
B3P
53
GND
54
VLS
55
VLS
56
VL255
57
VL191
58
VL127
59
VL95
60
VL63
61
VL47
62
VL20
63
VL1
64
VL0
65
COM
66
COM
67
DS1
68
CS1
69
CS2
70
CS2
71
U/D
72
GOE
73
GCK
74
GSP1
75
GSP2
76
VGH
77
VGH
78
VGL
79
VGL
80
GND
SC4651
NA222WJ
1
GND
2
VH0
3
VH1
4
VH20
5
VH47
6
VH63
7
VH95
8
VH127
9
VH191
10
VH255
11
VLS
12
VLS
13
GND
14
R0N
15
R0P
16
R1N
17
R1P
18
R2N
19
R2P
20
R3N
21
R3P
22
GND
23
LS
24
GND
25
CKN
26
CKP
27
GND
28
SPOI
29
SPIO
30
VCC3V
31
VCC3V
32
POL
33
REV
34
LBR
35
GND
36
G0N
37
G0P
38
G1N
39
G1P
40
G2N
41
G2P
42
G3N
43
G3P
44
GND
45
B0N
46
B0P
47
B1N
48
B1P
49
B2N
50
B2P
51
B3N
52
B3P
53
GND
54
VLS
55
VLS
56
VL255
57
VL191
58
VL127
59
VL95
60
VL63
61
VL47
62
VL20
63
VL1
64
VL0
65
COM
66
COM
67
DS1
68
CS1
69
CS2
70
CS2
71
U/D
72
GOE
73
GCK
74
GSP1
75
GSP2
76
VGH
77
VGH
78
VGL
79
VGL
80
GND
1U>=%G%8%?%k#S;v6HIt!J55;31U>=!KBh#25;=QIt
TO GRAYLEVEL
TO LCD CONT
TO POWER
(PWBXC919WJ)
GATE ARRAY
HG
S3 (2004.11.15)
LC-32GA5E
LCD CONT 4 (PANEL)
DUNTKC919DE02
LCD_CONT UNIT 5/7

Related product manuals