EasyManua.ls Logo

Sharp LC-32LE630E - Page 39

Sharp LC-32LE630E
176 pages
Print Icon
To Next Page IconTo Next Page
To Next Page IconTo Next Page
To Previous Page IconTo Previous Page
To Previous Page IconTo Previous Page
Loading...
39
LC-32LE63x
LC-40LE63x
LC-46LE63x
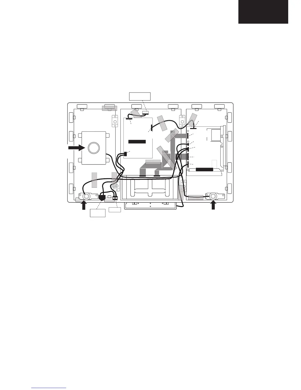
4.3.9 Removing of major Parts 46” (Continued)
4. Disconnect all the connectors from all the PWBs.
[1M19]
SPEAKER -R
(TWEETER)
MAIN
SWITCH
INLET
SPEAKER -L
(TWEETER)
[1M95]
TO DISPLAY
SUPPLY
[1M99]
[1316]
[1308]
[1G50]
[1D38]
[1735]
[1G51]
SPEAKER
(SUBWOOFER)
MAIN UNIT
POWER UNIT

Table of Contents

Related product manuals