EasyManua.ls Logo

Sharp LC-42D85X - Page 20

Sharp LC-42D85X
150 pages
Print Icon
To Next Page IconTo Next Page
To Next Page IconTo Next Page
To Previous Page IconTo Previous Page
To Previous Page IconTo Previous Page
Loading...
LC-42/46/52D85X
4 – 10
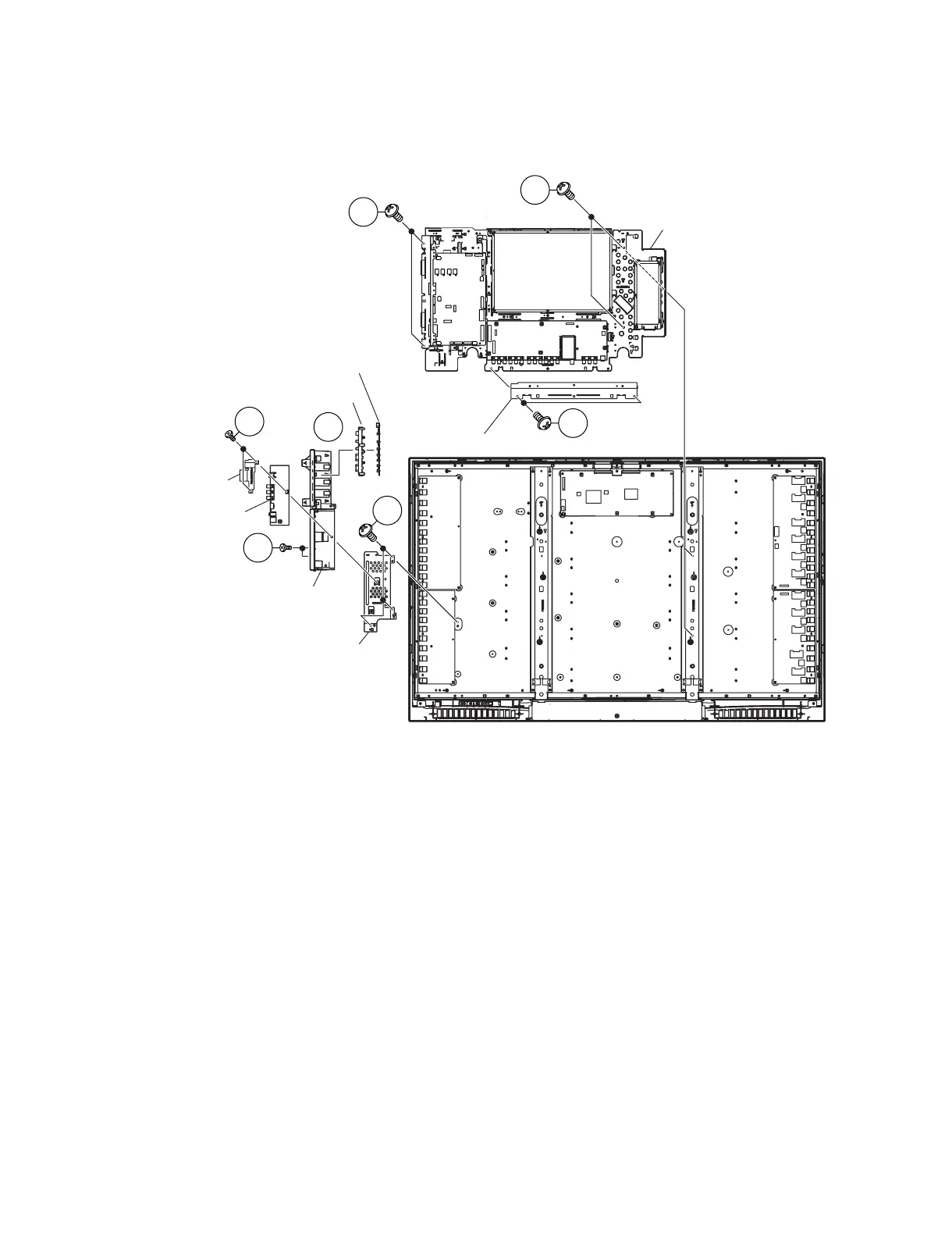
9. Remove the 3 lock screws [11] and detach the Side Key Cover Ass'y.
10.Remove the 2 lock screws [12], 2 lock screws [13] and detach the MINI-AV Unit, Mini AV Shield, Side Key Cover from the Mini AV Angle.
11.Detach the KEY Unit [14] from the Side Key Cover.
12.Remove the 2 lock screws [15] and detach the Terminal Angle Bottom.
13.Remove the 4 lock screws [16] and detach the Tray Chassis.
11
16
16
15
12
14
13
Mini AV Angle
Side Key Cover
MINI AV Unit
Mini AV Shield
Operation Button
KEY Unit
Tray Chassis
Terminal Angle Bottom

Related product manuals