EasyManua.ls Logo

Sharp MX-2310U - Transfer Current and Voltage Adjustment

Sharp MX-2310U
191 pages
Print Icon
To Next Page IconTo Next Page
To Next Page IconTo Next Page
To Previous Page IconTo Previous Page
To Previous Page IconTo Previous Page
Loading...
MX-3610N ADJUSTMENTS AND SETTINGS 4 – 8
2-C Transfer current and voltage adjustment
This adjustment must be performed in the following cases:
* When the TC high voltage PWB is replaced.
* U2 trouble has occurred.
* The PCU PWB has been replaced.
* The EEPROM of the PCU PWB has been replaced.
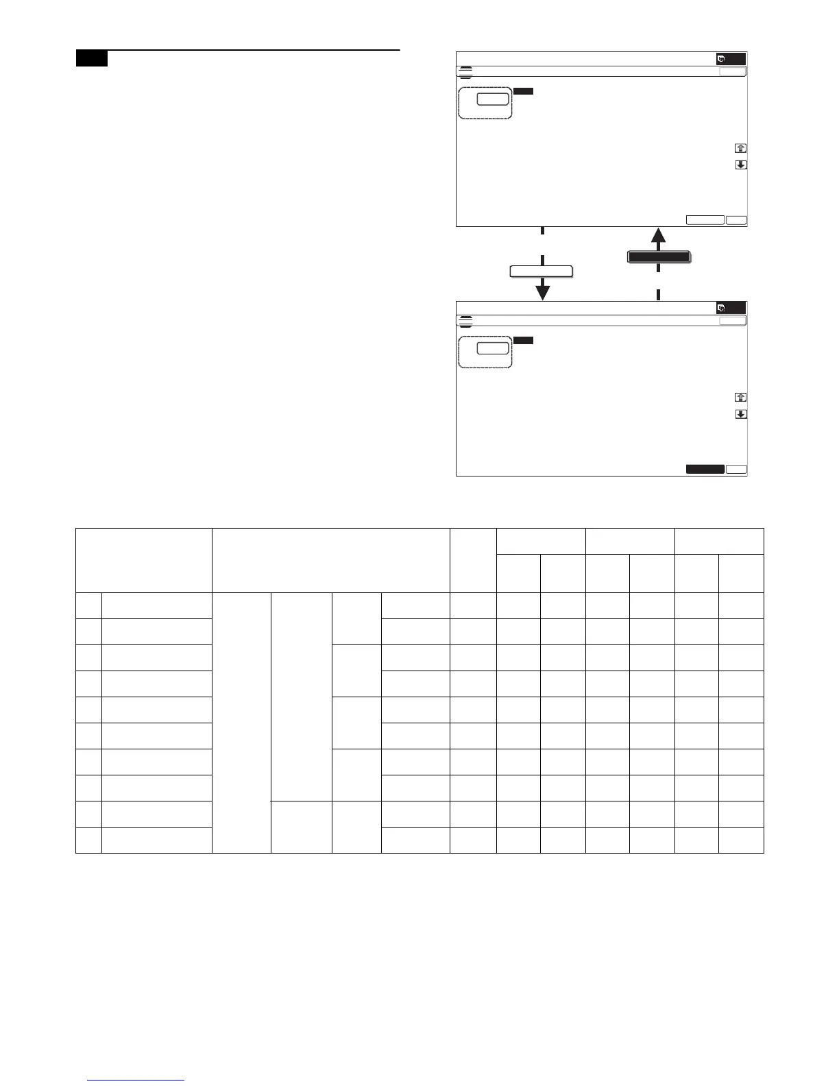
1) Enter the SIM 8-6 mode.
2) Select an item to be adjusted.
EXECUTE
EXECUTE
ǂǂǂ6,08/$7,21ǂǂ12
&/26(
7(67
7+96(77,1*$1'287387

$˖
˷˹
˖7&/2:63(('&/.

˖7&0,''/(63(('&/. 
˖7&/2:63(('&/& 
˖7&0,''/(63(('&/&

˖7&0,''/(63(('&/0 
˖7&/2:63(('&/0

˖7&/2:63(('&/< 
˖7&0,''/(63(('&/<

˖7&/2:63(('%:. 
˖7&0,''/(63(('%:. 
˖7&3/$,1&/63;

˖7&3/$,1&/'3;

2.
(;(&87(
ǂǂǂ6,08/$7,21ǂǂ12
&/26(
7(67
7+96(77,1*$1'287387

$˖
˷˹
˖7&/2:63(('&/.

˖7&0,''/(63(('&/. 
˖7&/2:63(('&/& 
˖7&0,''/(63(('&/& 
˖7&0,''/(63(('&/0 
˖7&/2:63(('&/0 
˖7&/2:63(('&/< 
˖7&0,''/(63(('&/< 
˖7&/2:63(('%:. 
˖7&0,''/(63(('%:.

˖7&3/$,1&/63;

˖7&3/$,1&/'3;

2.
(;(&87(
or after 30 sec.
10-key
Item/Display Content
Setting
range
18cpm/20cpm/
23cpm machine
26cpm/31cpm
machine
36cpm machine
Default
value
Actual
output
value
Default
value
Actual
output
value
Default
value
Actual
output
value
A TC1 LOW SPEED CL
K
Primary
transfer
bias
adjustment
value
Color K Low speed 51 - 255 80 6A806A806A
B TC1 MIDDLE SPEED
CL K
Middle speed 51 - 255 95 8A 109 10A11711A
C TC1 LOW SPEED CL
C
C Low speed 51 - 255 80 6A806A806A
D TC1 MIDDLE SPEED
CL C
Middle speed 51 - 255 95 8A 109 10A11711A
E TC1 LOW SPEED CL
M
M Low speed 51 - 255 80 6A806A806A
F TC1 MIDDLE SPEED
CL M
Middle speed 51 - 255 95 8A 109 10A11711A
G TC1 LOW SPEED CL
Y
Y Low speed 51 - 255 80 6A806A806A
H TC1 MIDDLE SPEED
CL Y
Middle speed 51 - 255 95 8A 109 10A11711A
I TC1 LOW SPEED BW
K
Black/White K Low speed 51 - 255 80 6A806A8
06A
J TC1 MIDDLE SPEED
BW K
Middle speed 51 - 255 95 8A 109 10A11711A

Table of Contents

Other manuals for Sharp MX-2310U

Related product manuals