EasyManua.ls Logo

Sharp SM-SX100 - Wiring Process Diagrams

Sharp SM-SX100
76 pages
Print Icon
To Next Page IconTo Next Page
To Next Page IconTo Next Page
To Previous Page IconTo Previous Page
To Previous Page IconTo Previous Page
Loading...
SM-SX100
– 21 –
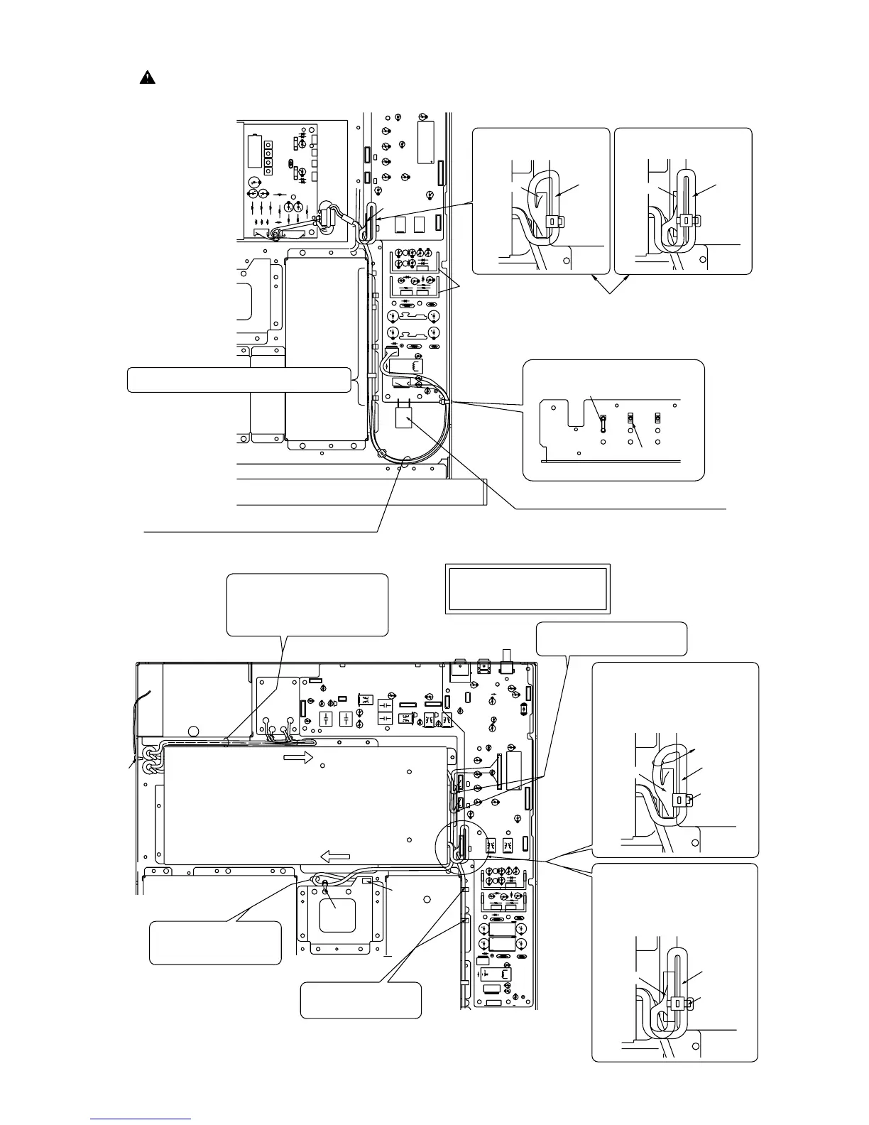
WIRING PROCESS DIAGRAM
1
- -
+ +
+ +
- -
Check the wiring process.
Any lead CNP101 (4P), CNP102 (3P) or CMP109 (6P)
does not interfere with the cement resistor or heat sink plate.
CNP109
Heat Sink
Cement
Resistor
The cement resistor falls down 90 degrees toward the chassis.
On CNP101(4P) and CNP102(3P) leads, the sag is processed on the
new panel side to avoid the cement resistor.
The sag of CNP101(4P) and CNP102(3P) is
processed with the nylon band bundle.
Nylon Band
Line process clamper
Side view of bottom chassis
Pin 9 lead form the 1-bit unit is inserted to
(CNP109), and the sag of the lead is
processed as shown.
Pin 9 lead form the 1-bit unit is inserted to
(CNP109), and the sag of the lead is
processed as shown.
Pin 9 Lead
CNP109
Pin 9 Lead
CNP109
or
Pin 3 lead from the 1-bit unit is inserted to the upper clamp of the
power shield, and Pin 4 lead is inserted to the lower clamp.
CNP101
CNP102
Figure 21-1
1
1
1
1
-
+
-
+
1
-
+
-
+
Press SP lead into the clearance between
case and PWB along the chassis.
Collect the sag of the lead toward the arrow
side.
It must not interfere with the lag set screw of
A section.
When processing the line, recheck whether
the lead from 1 bit (3 places) and the lead
connector from the main volume are securely
pushed in.
Press it into the clearance between
PWB and case. CNP107 and CNP108
leads must be present on the volume lead.
Nylon Band
CNP109
Pin 9 Lead
Nylon Band
Pin 9 Lead
CNP109
Reinsert Pin 9 lead from 1 bit to (CNP109),
process the sag of the lead as shown, and
insert the nylon band into the digital PWB hole.
Then, bundle it.
After processing, push in the lead under the
PWB (arrow direction).
After processing the line, check whether
CNP109 gets off or not.
Reinsert Pin 9 lead from 1 bit to (CNP109),
process the sag of the lead as shown, and
insert the nylon band into the digital PWB hole.
Then, bundle it.
After processing, push in the lead under the
PWB (arrow direction).
After processing the line, check whether
CNP109 gets off or not.
or
A
1BIT UNIT
Nylon
Band
CNP601
Bundle the main volume lead on
the main volume hardware as shown.
After bundling, verify that CNP601
does not get off.
Insert pin 3 lead from 1 bit to the
free line process clamp on the
upper part of the power shield.
Figure 21-2

Related product manuals