EasyManua.ls Logo

Sharp SM-SX100 - Schematic Diagram (8;14)

Sharp SM-SX100
76 pages
Print Icon
To Next Page IconTo Next Page
To Next Page IconTo Next Page
To Previous Page IconTo Previous Page
To Previous Page IconTo Previous Page
Loading...
SM-SX100
– 34 –
A
B
C
D
E
F
G
H
1
23456
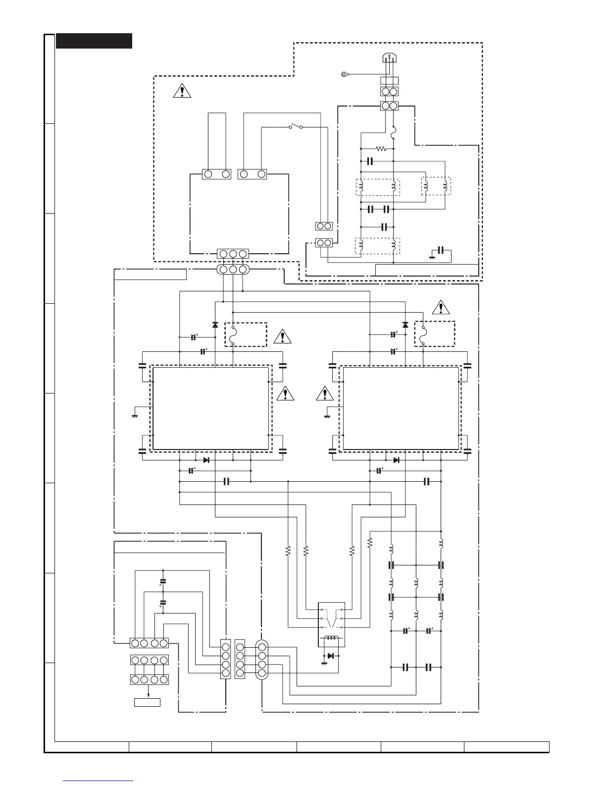
Figure 34 SCHEMATIC DIAGRAM (8/9)
• NOTES ON SCHEMATIC DIAGRAM can be found on page 26.
110-127V
+OUT
+S
- O U T
- S
+IN
GATE IN
GATE OUT
+
L2/N
ST1
(BROWN)
L 1
VD-
(BLUE)
VD+
(BROWN)
BUS
OK
(GRAY)
(BROWN)
(BLUE)
ST2
(BROWN)
RLY501
2 1
2 1
-IN
TR IM
+OUT
+S
- O U T
- S
+IN
GATE IN
GATE OUT
-IN
TR IM
+
2
34 1
234 1
2
34 1
POWER PWB-C1
2
3 1
2
2
3 1
1
2
1
POWER FILTER PWB-C2
2
3
4
1
4
2
3
1
4
2
3
1
POWER SUPPORT PWB-C3
2
1
(305)
TO MAIN CHASSIS
2
1
CNP101
P29 11 - H
TO MAIN PWB
R504
820K
CNP541
C542
2200/50
CNP542
C541
2200/50
L504
L506
L507
C521
180/50
C522
180/50
C523
2.2
C524
2.2
L505
L508
L509
L510
L511
FIL503 FIL501
FIL502
FIL504
R503
820K
R505
62K
R506
62K
D505
1SS133
C514
330P
C518
0.1
D503
RK36
C509
560/50
C511
1
C506
22/400
C508
33/35
D502
1SS133
C515
330P
C519
0.1
C516
330P
C520
0.1
D504
RK36
C510
560/50
C512
1
C501
0.33
R501
390K
F501
7A/125V
C504
0.0022
CNP502
CNW504
CNP501
L503
L502
C503
0.0022
L501
C502
0.33
C530
0.0015
F503
3A/250V
F502
3A/250V
C505
22/400
C507
33/35
D501
1SS133
C513
330P
C517
0.1
CNW502
SW501
POWER
CNW505
CNS501
UNT503
AC DC CONVERTER
CNS503
BI503
SOC501
AC SOCKET
120V,60Hz
COR501
CNS541B
CNS541A
UNT501
DC-DC CONVERTER
UNT502
DC-DC CONVERTER

Related product manuals