EasyManua.ls Logo

SICK DUSTHUNTER T200 - Cabinet Sampling; Fig. 4 Sampling Flow Chart

SICK DUSTHUNTER T200
261 pages
To Next Page IconTo Next Page
To Next Page IconTo Next Page
To Previous Page IconTo Previous Page
To Previous Page IconTo Previous Page
Loading...
2 Name of Each Part
5
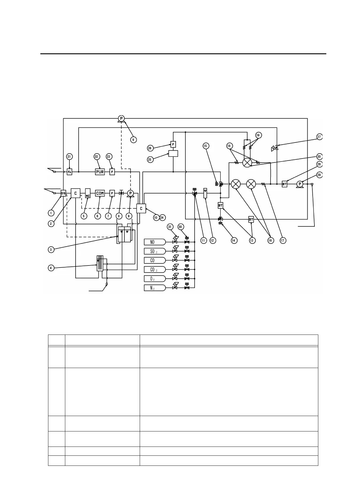
2.3 Cabinet Sampling
The sampling unit collects the stack gas and supplies the sample gas with stable flow to the
analyzing unit.
The drain is automatically discharged from the sampling unit.
The following table explains the items shown in numbers described in Fig. 4 and Fig. 5.
Fig. 4 Sampling flow chart
Sample gas line flow
Air inlet
Sample inlet
Sample outlet
Drain outlet
Silica gel
SV-1
SV-2
SV-3
SV-4
SV-5
SV-6
SV-7
SV-8
SV-1A
No. Name Description
1 Drain separator
Decreases the dew point of sample gas introduced into the cabinet to the
temperature inside the cabinet to allow drain separation.
The removed drain is captured and collected into the drain trap.
2 Electric cooler (Pre-cooler)
Cools down the gas that has reached to the dew point in the cabinet by
drain separator.
The electric cooler consists of pre-cooler and main cooler.
The pre-cooler cools the sample by the temperature lower than that inside
the cabinet in 10ºC (when the temperature inside the cabinet is higher
than 15ºC), to allow drain separation. The separated drain is collected to
the drain trap.
3 Drain trap 1
Collects and discharges the drain separated by drain separator and
electric cooler.
4 Drain trap 2
Collects and discharges the drain separated by drain separator and
electric cooler.
5 Mist catcher Collects the sulfuric acid mist in the sample gas.
6 NOx converter
A catalyst unit converting NO
2
in the sample gas into NO.

Table of Contents

Related product manuals