EasyManua.ls Logo

Siemens 125-1957

Siemens 125-1957
48 pages
To Next Page IconTo Next Page
To Next Page IconTo Next Page
To Previous Page IconTo Previous Page
To Previous Page IconTo Previous Page
Loading...
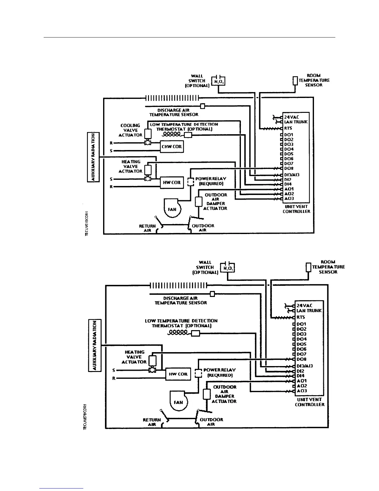
Application 2287 – Heating and Cooling,
Nesbitt Cycle W
Siemens Building Technologies, Inc. 21
Figure 21. Application 2287 Control Drawing.
Figure 22. Application 2287 Control Drawing.

Related product manuals