EasyManua.ls Logo

Siemens 3RB12 - Page 3

Siemens 3RB12
19 pages
Print Icon
To Next Page IconTo Next Page
To Next Page IconTo Next Page
To Previous Page IconTo Previous Page
To Previous Page IconTo Previous Page
Loading...
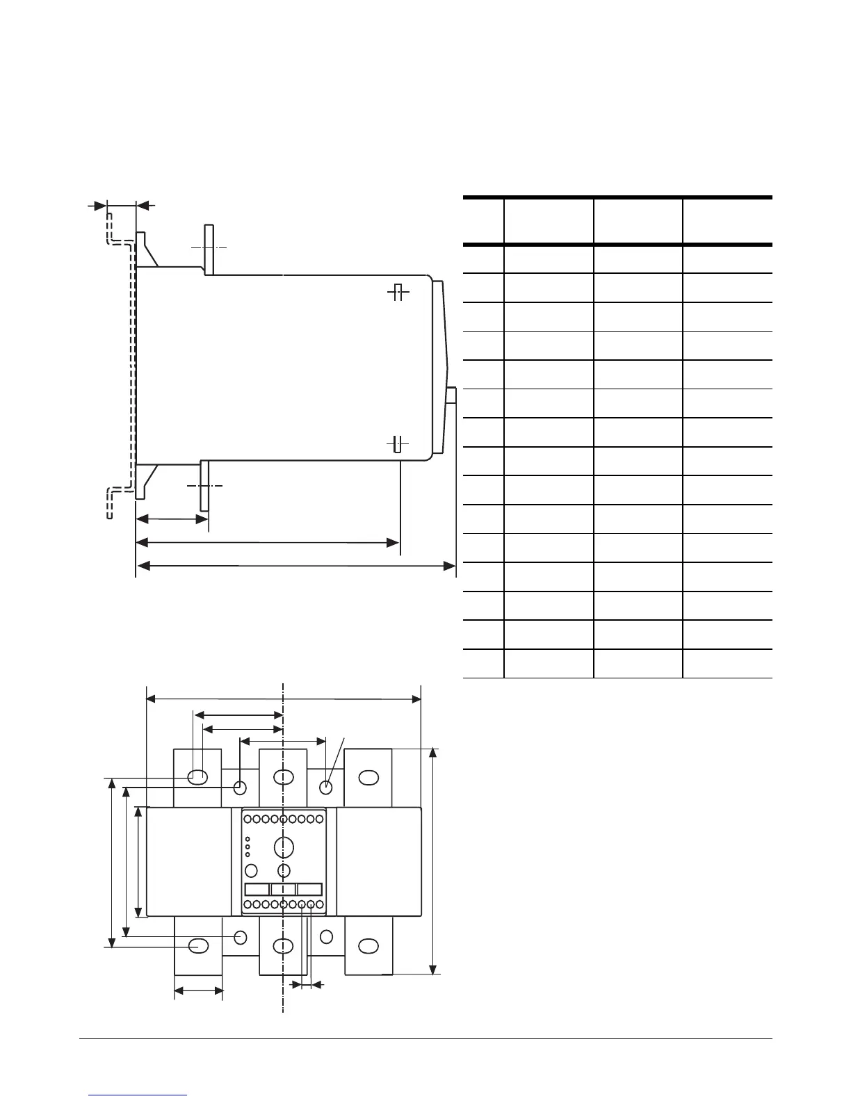
3RB1253-
0F
3RB1257-
0K
3RB1262-
0L
a 120 145 230
b858585
c155 175 190
d 110 105 120
e405070
f 7 9 11
g425270
h3748- - -
i 125 130 135
j414655
k203040
l 131 151 166
m 7,2 7,2 7,2
n 13 - - - - - -
o 145 160 175
i
d
b
a
g
e
h
k
m
f
o
IIb
IIa
l
j
n
c
3ZX1012-0RB12-1AA1

Related product manuals