EasyManua.ls Logo

Siemens AnalogPLUS DB1131A - Connection Detection Line for Detectors Analogplus; Optional Class A Wiring; Important! Observe Polarity!; Auxiliary Terminals

Siemens AnalogPLUS DB1131A
6 pages
Print Icon
To Next Page IconTo Next Page
To Next Page IconTo Next Page
To Previous Page IconTo Previous Page
To Previous Page IconTo Previous Page
Loading...
Control Products and Systems
Siemens Building Technologies
4 x1243d
2016-04-20
Data and design subject to change without notice / Supply subject to availability
© Siemens Building Technologies AG
2
2
2
1
1
0.28 ... 0.5mm
2
1.0 ... 2.5mm
2
Ausbrechen und Schutzkorb festschrauben
Ebrécher et serrer le corbeille protectrice
Break out and fasten the protective cage
DBZ1194 (Art. Nr. 467 711)
Zusatzklemme DBZ1190-AA/AB
Borne additionnelle
Auxiliary terminal
DJ1191
DJ1192
DJ1191
DJ1192
Melderschutzkorb
Corbeille protectrice
Protective cage
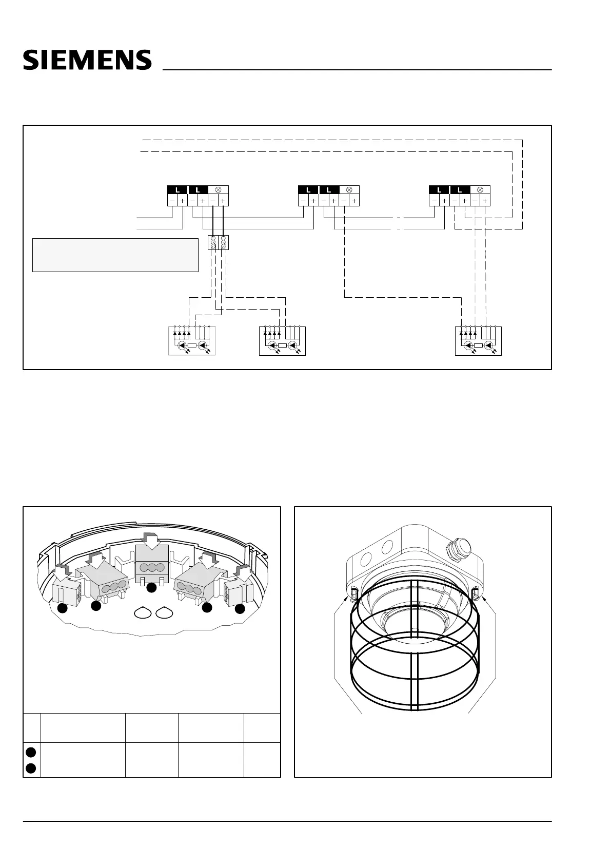
Max. 2 external response indicators per
base.
2 indicateurs d’action externes au max.
par embase.
Max. 2 externe Ansprechindikatoren pro
Sockel.
Melderbus
Bus de détection
Detector bus
+-
Externe Ansprechindikatoren (DJ1191/
DJ1192, DJ1193). Bei Ansteuerung von
mehr als einem Melder: Plus nur mit ei-
nem Sockel verbinden.
Indicateurs d’action externes (DJ1191/
DJ1192, DJ1193). Lors de l’asservisse-
ment de plus d’un détecteur: ne relier le
«plus» qu’avec une seule embase.
External response indicators (DJ1191/
DJ1192, DJ1193). When activated by
more than one detector, connect positive
only from one base.
Anschluss Meldelinie für Melder Ana-
logPLUS
®
Raccordement ligne de détection pour
détecteurs AnalogPLUS
®
Connection detection line for detec-
tors AnalogPLUS
®
Achtung! Polarität beachten!
Attention! Considérer la polarité!
Important! Observe polarity!
+-+-
DJ1191
DJ1192
-
+
Option Ringleitung
Ligne circulaire optional
Optional Class «A» wiring
-
+
DB1131A DB1131ADB1131A
Option: Zusatzklemmen für Anschluss von 2 externen An-
sprechindikatoren oder Kabelabschirmung
Option: bornes additionnelles pour le raccordement de 2 indica-
teurs d’action externes ou blindage de câble
Option: Auxiliary terminals for connection of 2 external re-
sponse indicators or cable shielding
1
2
Pos Type
Querschnitt
Section
Cross-section
Zusatzklemme
Borne additionnelle
Auxiliary terminal
DBZ1190-AA
DBZ1190-AB
Zusatzklemmen
Bornes additionnelles
Auxiliary terminals
467 708
494 234

Related product manuals