EasyManua.ls Logo

Siemens CPU 31 Series - Diagnostics

Siemens CPU 31 Series
252 pages
To Next Page IconTo Next Page
To Next Page IconTo Next Page
To Previous Page IconTo Previous Page
To Previous Page IconTo Previous Page
Loading...
Technical data of CPU 31xC
6.6 Technical data of the integrated I/O
CPU 31xC and CPU 31x, Technical Data
6-44 Manual, 01/2006 Edition, A5E00105475-06
Start information for OB40
The table below shows the relevant temporary variables (TEMP) of OB40 for the interrupt
inputs of 31xC CPUs. A description of process interrupt OB 40 is found in the Reference
Manual
System and Standard Functions
.
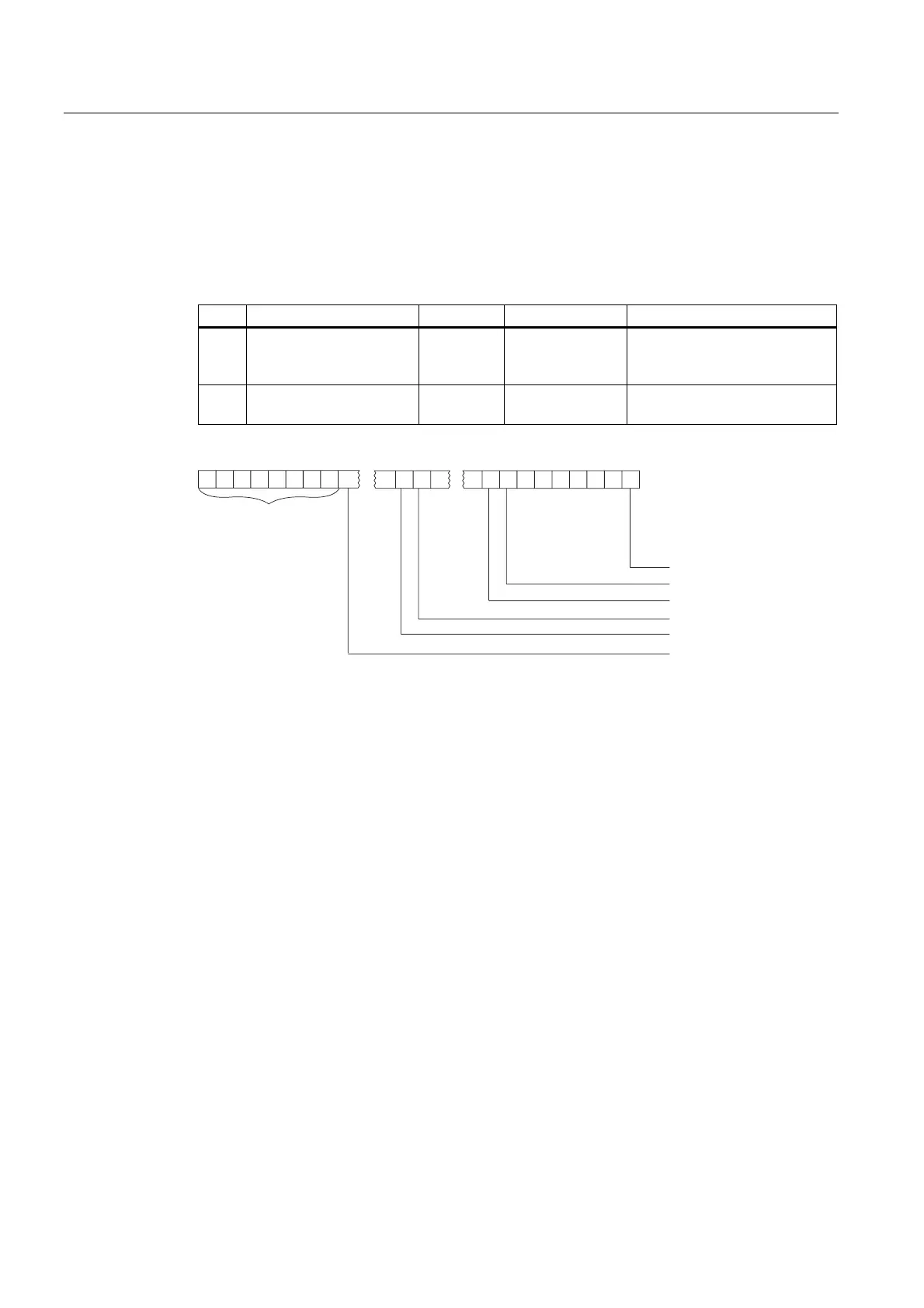
Table 6-11 Start information for OB40, relating to the interrupt inputs of the integrated I/O
Byte Variables Data type Description
6/7 OB40_MDL_ADDR WORD B#16#7C Address of the interrupt-
triggering module (here: default
addresses of the digital inputs)
8 on OB40_POINT_ADDR DWORD see the figure
below
Displaying the interrupt-
triggering integrated inputs


      



UHVHUYHG
%LWQR
PRAL: process interrupt
Inputs are designated with default addresses.
35$/IURP(
35$/IURP(
35$/IURP(
35$/IURP(
35$/IURP(
35$/IURP(
Figure 6-9 Displaying the statuses of CPU 31xC interrupt inputs
PRAL: process interrupt
The inputs are assigned default addresses.
6.6.5 Diagnostics
Standard I/O
Diagnostic data is not available for integrated I/O which is operated as standard I/O (see also
the Reference Manual
Module Data
).
Technological functions
Diagnostics options for the respective technological function are found in the Manual
Technological Functions
.

Table of Contents

Related product manuals