EasyManua.ls Logo

Siemens LMV51.100C2 - Page 27

Siemens LMV51.100C2
327 pages
To Next Page IconTo Next Page
To Next Page IconTo Next Page
To Previous Page IconTo Previous Page
To Previous Page IconTo Previous Page
Loading...
27/327
Building Technologies Basic Documentation LMV5... CC1P7550en
3 Fuel train (examples) 22.05.2018
V1
M
7550s06e/0308
DW
min
DW
max
LO
Program
Modulating burner
(without shutdown facility for
adjustable head)
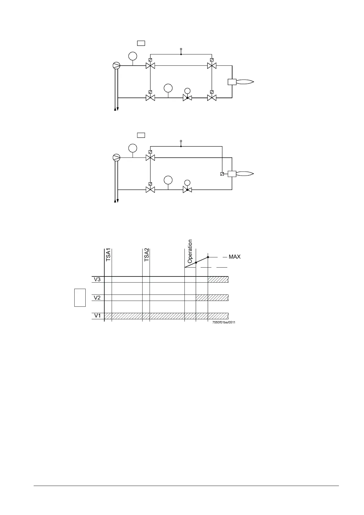
Figure 14: Fuel train application – light oil direct ignition, modulating, without shutdown facility for
adjustable head
V1
M
7550s07e/0308
DW
min
DW
max
LO
Program
Modulating burner
(with shutdown facility for
adjustable head)
Figure 15: Fuel train application – light oil direct ignition, modulating, with shutdown facility for
adjustable head
Light oil (direct transformer ignition)
LO
V3
V2
MIN
LK
position
Stage operation
Figure 16: Fuel train application – fuel valve control
Legend (fuel trains):
LK Air damper
LO Light oil
TSA Safety time
V Fuel valve
Direct ignition with
light oil, modulating
Fuel valve control

Table of Contents

Related product manuals