EasyManua.ls Logo

Siemens LMV52.240B1 - Connection Terminals Lmv51.000 X1; Lmv51.000 X2; Lmv51.040 X2

Siemens LMV52.240B1
327 pages
To Next Page IconTo Next Page
To Next Page IconTo Next Page
To Previous Page IconTo Previous Page
To Previous Page IconTo Previous Page
Loading...
191/327
Building Technologies Basic Documentation LMV5... CC1P7550en
10 Connection terminals / coding of connectors 22.05.2018
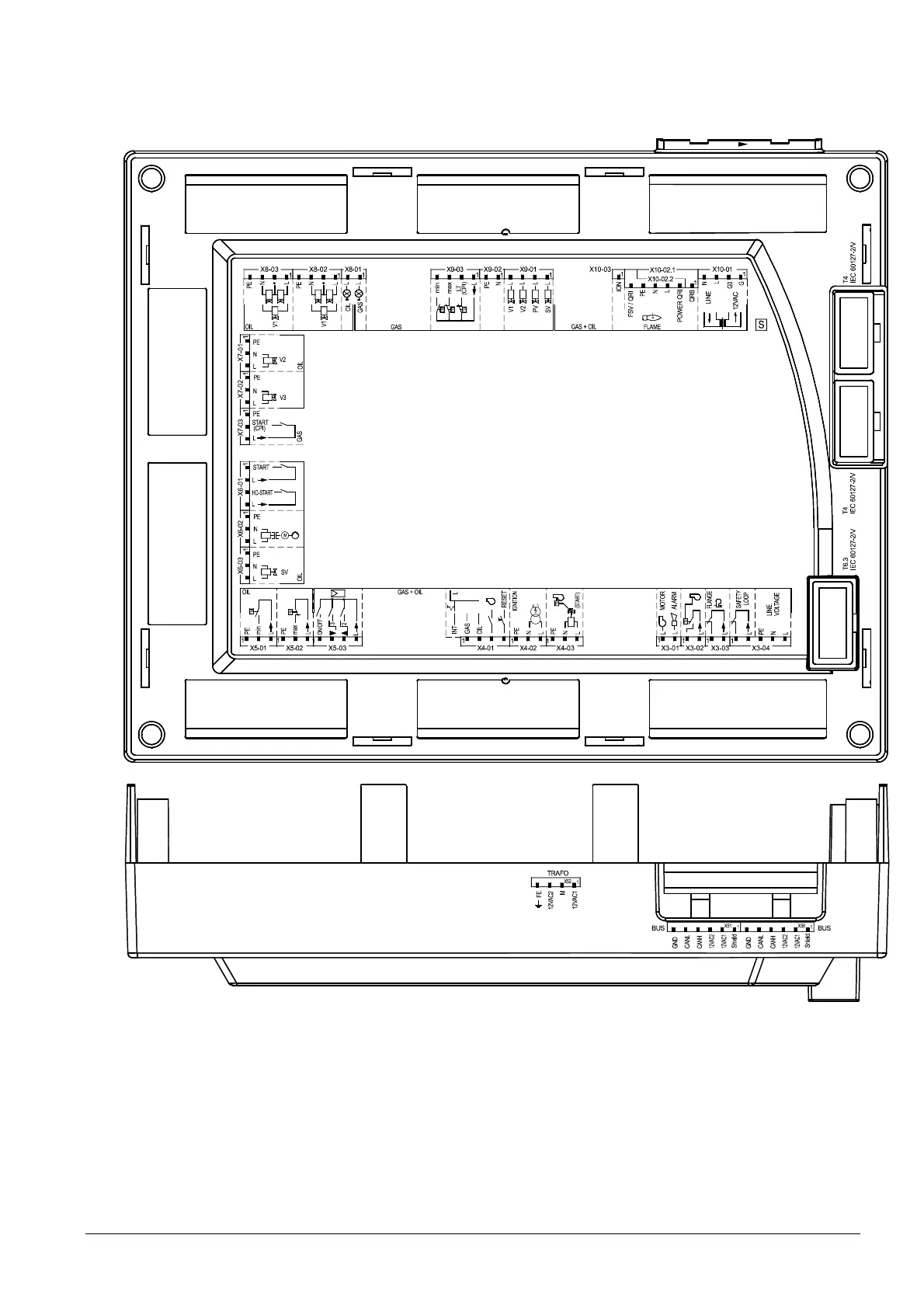
10.2 Connection terminals LMV51.000x1 /
LMV51.000x2 / LMV51.040x2
7550z44/1114
Figure 87: Connection terminals LMV51.000x1 / LMV51.000x2 / LMV51.040x2

Table of Contents

Other manuals for Siemens LMV52.240B1

Related product manuals