EasyManua.ls Logo

Siemens LMV52.400B2 - Page 277

Siemens LMV52.400B2
327 pages
To Next Page IconTo Next Page
To Next Page IconTo Next Page
To Previous Page IconTo Previous Page
To Previous Page IconTo Previous Page
Loading...
277/327
Building Technologies Basic Documentation LMV5... CC1P7550en
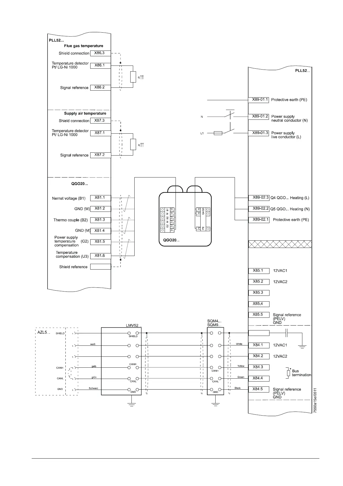
19 O2 trim control with LMV52 and PLL52 22.05.2018
Pt/LG-Ni 1000
CANH
CANL
BUS
CANH
CANL
BUS
12VAC1
12VAC2
12VAC1
12VAC2
12VAC1
12VAC2
FE
FE
Brown
braun
FE
U3
PE
F 6.3 AT
Pt/LG-Ni 1000
Temporary connection
for AZL5...
X
8
6
X87
X81
X
8
9
-
0
1
X
8
9
-
0
2
X
8
5
X
8
4
Figure 122: Connection diagram PLL52

Table of Contents

Related product manuals