EasyManua.ls Logo

Siemens MXL Series - MKB-3 Network Address and Supervision

Siemens MXL Series
12 pages
Print Icon
To Next Page IconTo Next Page
To Next Page IconTo Next Page
To Previous Page IconTo Previous Page
To Previous Page IconTo Previous Page
Loading...
3
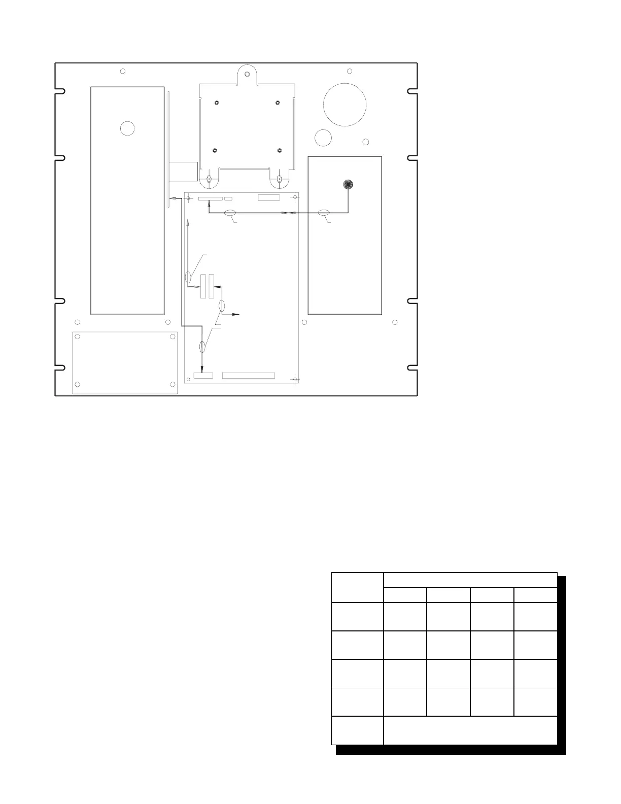
Figure 2
Rear View of the ACM-RK
TBM-2
TMM-1
MMM-1
P1
P3
P5
P7
P8
P6
P4
NEW CABLE FROM
CABLES-RK KIT
TO MMB-2
NEW CABLE FROM
CABLES-RK KIT
EXTENSION FROM
CABLES-RK KIT
EXISTING
MMM-1 CABLE
TO ANN-1
(MKB-RK)
ACM-1
ACM-RK
PIM-1
switch S1 to set the network address of the
MKB-3. Refer to Table 3 for switch settings.
2. The MKB-3 module address is always set
within network addresses 248 through 251.
3. One supervised MKB-3 must be installed
at network address 251. Other supervised
MKBs may be at the other addresses.
NOTE: Switches S1-SW3 and S1-SW4 are for
future use. Switch S1-SW5 is used to
select supervision.
Setting Supervision
Use switch S1-SW5 on the ANN-1 to select or
deselect supervision. If your ANN-1 has a switch
with position 1 indicated on the left-hand side,
ignore the printing on the switch. SW1 on S1 is at
the extreme right-hand side of S1, regardless of
any other marking.
To set for supervision
S1-SW5 = Closed (ON)
To set for non-supervision
S1-SW5 = Open (OFF)
NOTE: When you select non-supervision for an
annunciator, there must also be one and
only one supervised annunciator at the
same address. The supervisory mode is
independent of the network address.
TABLE 3
SWITCH SETTINGS ON THE ANN-1
SWITCH
ADDRESS SETTINGS FOR:
248 249 250 251
S1-SW1
Open-
OFF
Closed-
ON
Open-
OFF
Closed-
On
S1-SW2
Open-
OFF
Open-
OFF
Closed-
ON
Closed-
ON
S1-SW3
Closed-
ON
Closed-
ON
Closed-
ON
Closed-
ON
S1-SW4
Closed-
ON
Closed-
ON
Closed-
ON
Closed-
ON
S1-SW5
See Setting Supervision

Related product manuals