EasyManua.ls Logo

Siemens PM240 - Dimensions and Drill Patterns (FSGX)

Siemens PM240
136 pages
Print Icon
To Next Page IconTo Next Page
To Next Page IconTo Next Page
To Previous Page IconTo Previous Page
To Previous Page IconTo Previous Page
Loading...
Installing/Mounting
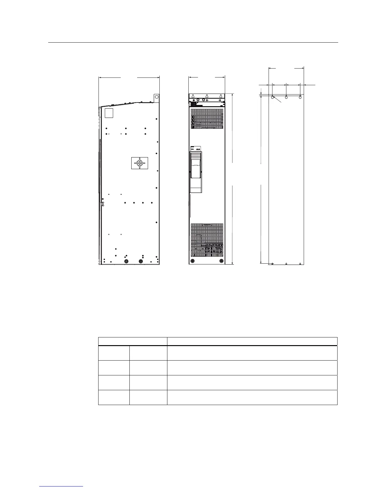
3.2 Dimensions and drill pattern
Power Module PM240
Hardware Installation Manual, 07/2009, A5E00807525B AD
31
)RUIL[LQJ
[0EROWV
[0QXWV
[0ZDVKHUV
8VHORFNLQJHOHPHQWV
7LJKWHQLQJWRUTXH1P
OEILQ
PP

PP

PP

PP

PP

PP

PP

PP

PP

PP

PP

Figure 3-11 Dimensions and drill pattern, FSGX (HO 132 kW ... 200 kW)
Table 3- 12 Minimum distances for mounting
Minimum distances FSGX Note
side by
side
0 mm
0 inches
above 250 mm
9.84 inches
below 150 mm
5.91 inches
front 50 mm
1.97 inches
The CU is mounted inside the Power Module housing and does not
influence the PM dimensions

Table of Contents