EasyManua.ls Logo

Siemens PM240 - Control Interface Module Replacement (FSGX)

Siemens PM240
136 pages
Print Icon
To Next Page IconTo Next Page
To Next Page IconTo Next Page
To Previous Page IconTo Previous Page
To Previous Page IconTo Previous Page
Loading...
Service and maintenance
5.2 Replacing components
Power Module PM240
Hardware Installation Manual, 07/2009, A5E00807525B AD
61
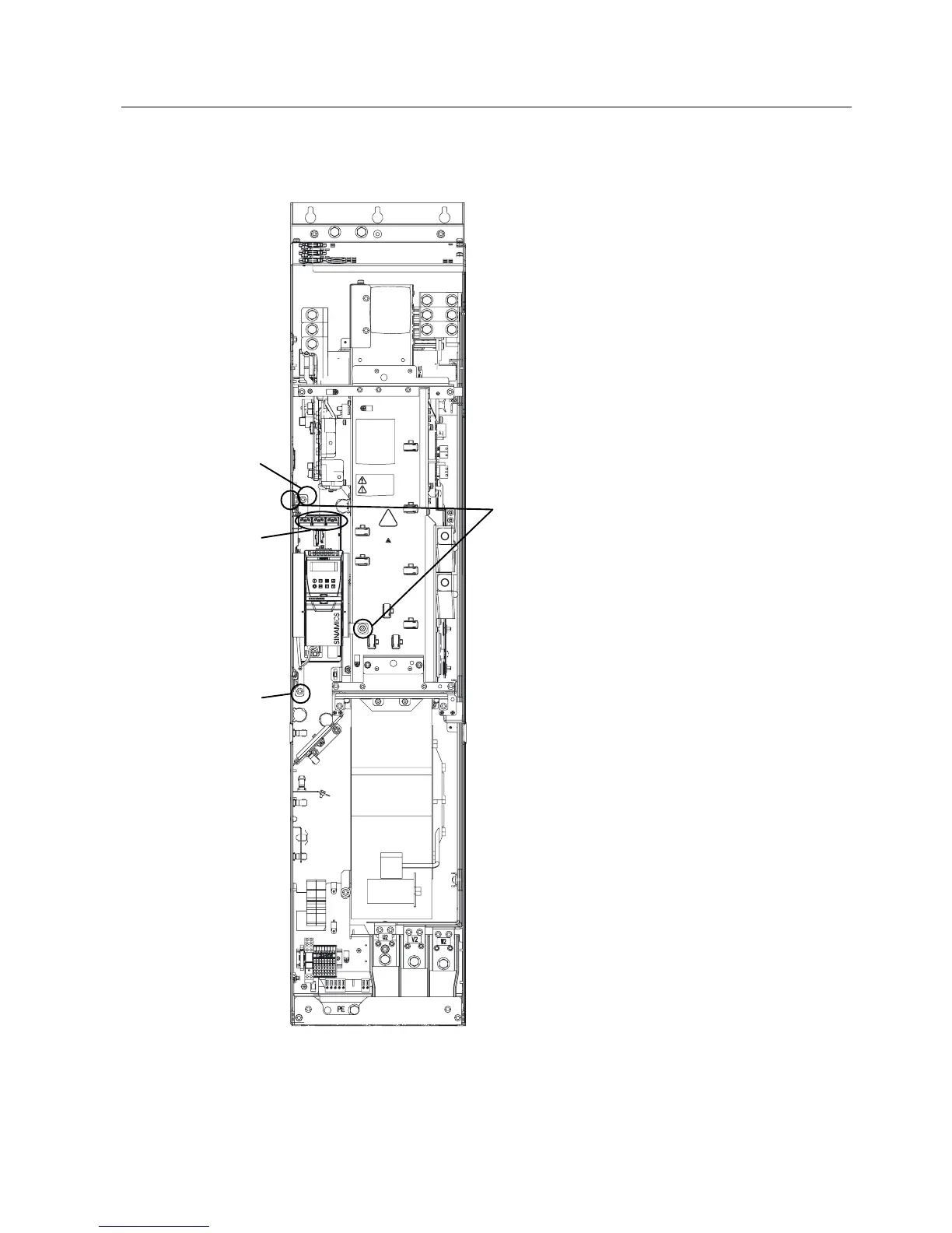
5.2.4 Control Interface Module replacement (FSGX)
Figure 5-8 Control Interface Module replacement, Power Module PM240 FSGX

Table of Contents

Other manuals for Siemens PM240

Related product manuals