EasyManua.ls Logo

Siemens SB61 - 7 Attachments; Block Diagram; Dimension Drawing

Siemens SB61
15 pages
To Next Page IconTo Next Page
To Next Page IconTo Next Page
To Previous Page IconTo Previous Page
To Previous Page IconTo Previous Page
Loading...
Attachments
8 Edition 05.95 Siemens AG Dk-Nr. 283641
SIMADYN D Hardware User Manual
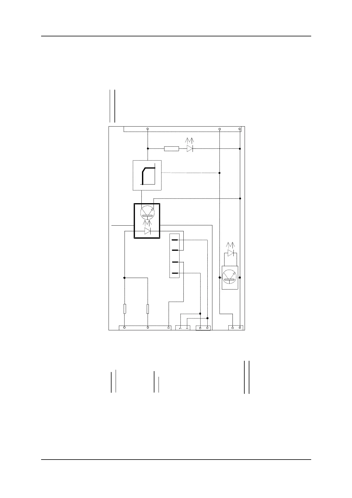
7. Attachments
7.1. Block diagram
SIMADYN D SB61, 6DD1681-0FB0
7.2. Dimension drawing
Dimension drawing 3SE 465 681.9041.30 MB

Related product manuals