EasyManua.ls Logo

Siemens SINUMERIK 880 - Page 149

Siemens SINUMERIK 880
291 pages
Print Icon
To Next Page IconTo Next Page
To Next Page IconTo Next Page
To Previous Page IconTo Previous Page
To Previous Page IconTo Previous Page
Loading...
5 Measuring Cycles for Milling Machines and Machining Centres 07.90
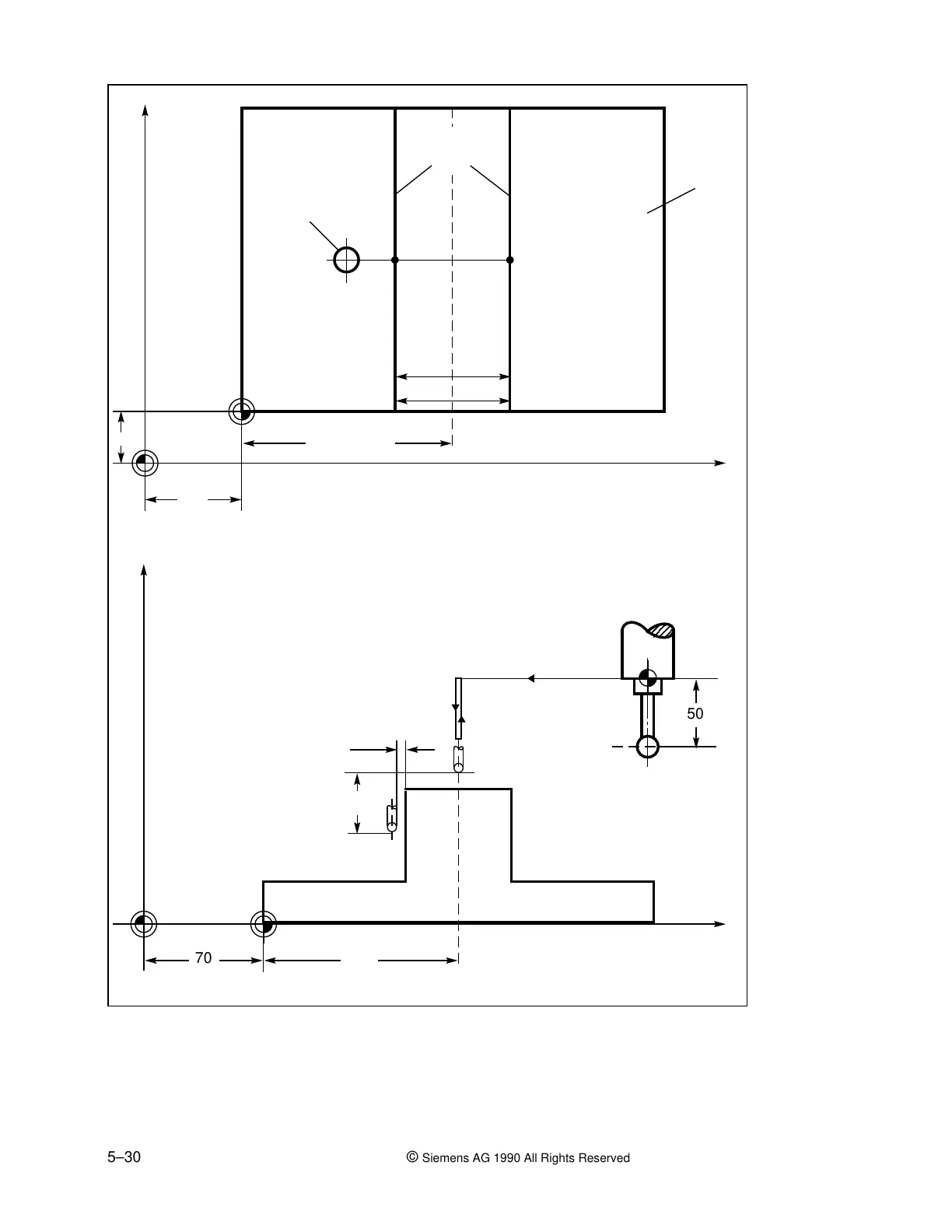
5.2.4 L977 Measure web (paraxial)
Fig. 5.10 Measure web
R42 Set value
Act. value R209
P2
Workpiece
Probe
P1
Z
X
M
(Applicate)
W
220
Y
X
M
70
(Ordinate)
W
50
(Abscissa)
N505
N510
R28
N530
R19
Parallel
surfaces
X
act
(R210)
F
a
a
a
a
a
a
a
a
a
a
a
a
a
a
a
a
a
a
a
a
a
a
a
a
a
a
a
a
a
a
a
a
a
a
a
a
a
a
a
a
a
a
a
a
a
a
a
a
50
70
5–30 © Siemens AG 1990 All Rights Reserved 6FC5197- AB70
SINUMERIK 840/850/880 (BN)

Table of Contents

Other manuals for Siemens SINUMERIK 880

Related product manuals