EasyManua.ls Logo

Sime 1R - Page 38

Sime 1R
Print Icon
To Next Page IconTo Next Page
To Next Page IconTo Next Page
To Previous Page IconTo Previous Page
To Previous Page IconTo Previous Page
Loading...
36
1.1 UVOD
Nove peËi iz litega
æ
eleza “1R - 2R
freestanding” so naËrtovane v
skladu z navodilom Europea CEE
92/92. Delujejo na kurilno olje z
uravnote
æ
enim izgorevanjem in z
visokim uËinkom, ki dovoljuje znaten
prihranek pri uporabi. Ta priroËnik
vsebuje navodila za namestitev,
delovanje in vzdr
æ
evanje. TermiËne
skupne “1R - 2R freestanding” so
razdeljene na tri dele: telo peËi,
ohi
π
je z vreËico dokumentov, ter s
komandno ploπËo.
1 OPIS PE»I
1R4 1R5 1R6 1R7 1R8 1R9
MoË gorioπËca kW 39,2 52,0 64,8 74,0 84,0 93,3
kcal/h 33.700 44.700 55.700 63.600 72.200 80.200
Izkoristek kW 44,7 59,1 73,4 83,1 93,8 103,4
kcal/h 38.400 50.800 63.100 71.500 80.700 88.900
P (globina) mm 440 520 595 670 750 825
Elementov
˘
St. 4 5 6 7 8 9
Maks. tlak delovanja bar 4 4 4 4 4 4
Vsebina vode l 28,5 33,0 37,5 42,0 46,5 51,0
Izguba tovora
Dimni mbar 0,10 0,15 0,20 0,16* 0,22* 0,30*
Vodni (t 10°C) mbar 17,5 25,0 30,0 34,0 40,0 45,5
Tlak v gorilni komori mbar – 0,02 – 0,02 – 0,01 0,06 0,08 0,08
Depresija min. dimne cevi mbar 0,12 0,17 0,21 0,22 0,30 0,38
Temperatura dima °C 225 225 225 217 209 201
Zmogljivost prenosa dima m
3
n/h 41,4 54,7 68,0 77,7 88,0 97,6
Regulacijsko obmoËje
Ogrevanje °C 30÷85 30÷85 30÷85 30÷85 30÷85 30÷85
Volumen dima dm
3
33 37 42 46 50 55
Teæa kg 201 229 261 293 325 357
1.3 TEHNI»NI PODATKI
1.3.1 PeËi “1R”
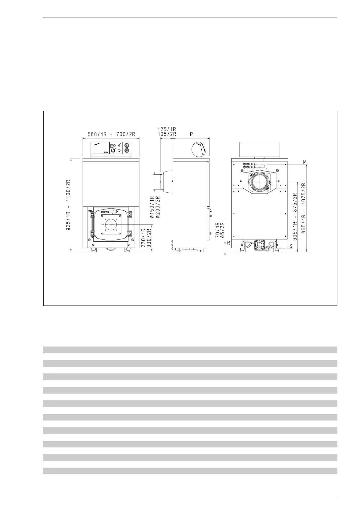
1.2 MERE
1R 2R
M Odvodni sistem 1
1
/
2
2”
R Dovodni sistem 1
1
/
2
2”
S Izpraznitev peËi 3/4” 3/4”
* Brez turbolatorjev
Risba 1

Related product manuals