EasyManua.ls Logo

Sime AR3 - 1 Epi°Paºh §Ebhta; EiA°Ø°H; IaTaEi

Sime AR3
Print Icon
To Next Page IconTo Next Page
To Next Page IconTo Next Page
To Previous Page IconTo Previous Page
To Previous Page IconTo Previous Page
Loading...
44
1 ¶EPI°PAºH §EBHTA
1.1 EI™A°ø°H
OÈ Ó¤ÔÈ ¯˘ÙÔÛȉËÚÔ› Ϥ‚ËÙ˜ ı¤ÚÌ·ÓÛ˘
“AR - ARB freestanding”
ÌÂÏÂÙ‹ıËÎ·Ó Î·È Î·Ù·Û΢¿˙ÔÓÙ·È
Û‡Ìʈӷ Ù˘ ∂˘Úˆ·
Τ˜
ηÙ¢ı˘ÓÙ‹ÚȘ Ô‰ËÁ›Â˜ ÂÚ› ÙˆÓ
·Ô‰fiÛˆÓ
C∂∂ 92/42.
XÚËÛÈÌÔÔÈÔ‡ÓÙ·È Ì ÂÏ·ÊÚ‡ ·Î¿ı·ÚÙÔ
ÂÙڤϷÈÔ Î·È ¤¯Ô˘Ó ÌÈ· Ù¤ÏÂÈ·
ÈÛÔÚÚÔË̤ÓË Î·‡ÛË Ì ÌÂÁ¿ÏË
ıÂÚÌÈ΋ ·fi‰ÔÛË ÁÈ· ÔÈÎÔÓÔÌÈ΋
ÏÂÈÙÔ˘ÚÁ›·.
Ϥ‚ËÙ˜ “ARB” ۯ‰ȿÛıËÎ·Ó ÁÈ·
Ó· ÚÔÛʤÚÔ˘Ó ÎÂÓÙÚÈ΋ ı¤ÚÌ·ÓÛË
Î·È ˙ÂÛÙfi ÓÂÚfi ¯Ú‹Û˘ ÂÓÒ ÔÈ “AR”
ÌfiÓÔ ÎÂÓÙÚÈ΋ ı¤ÚÌ·ÓÛË.
ÂÍ·ÚÙ‹Ì·Ù· ÙÔ˘ Ϥ‚ËÙ· “AR”
¢ڛÛÎÔÓÙ·È Û ÙÚ›· ͯˆÚÈÛÙ¿ ÎfiÏ·:
ÛÒÌ· Ϥ‚ËÙ·, Â͈ÙÂÚÈο η¿ÎÈ· ÌÂ
Ê˘ÏÏ¿‰ÈÔ Î·È ËÏÂÎÙÚÈÎfi ›Ó·Î·.
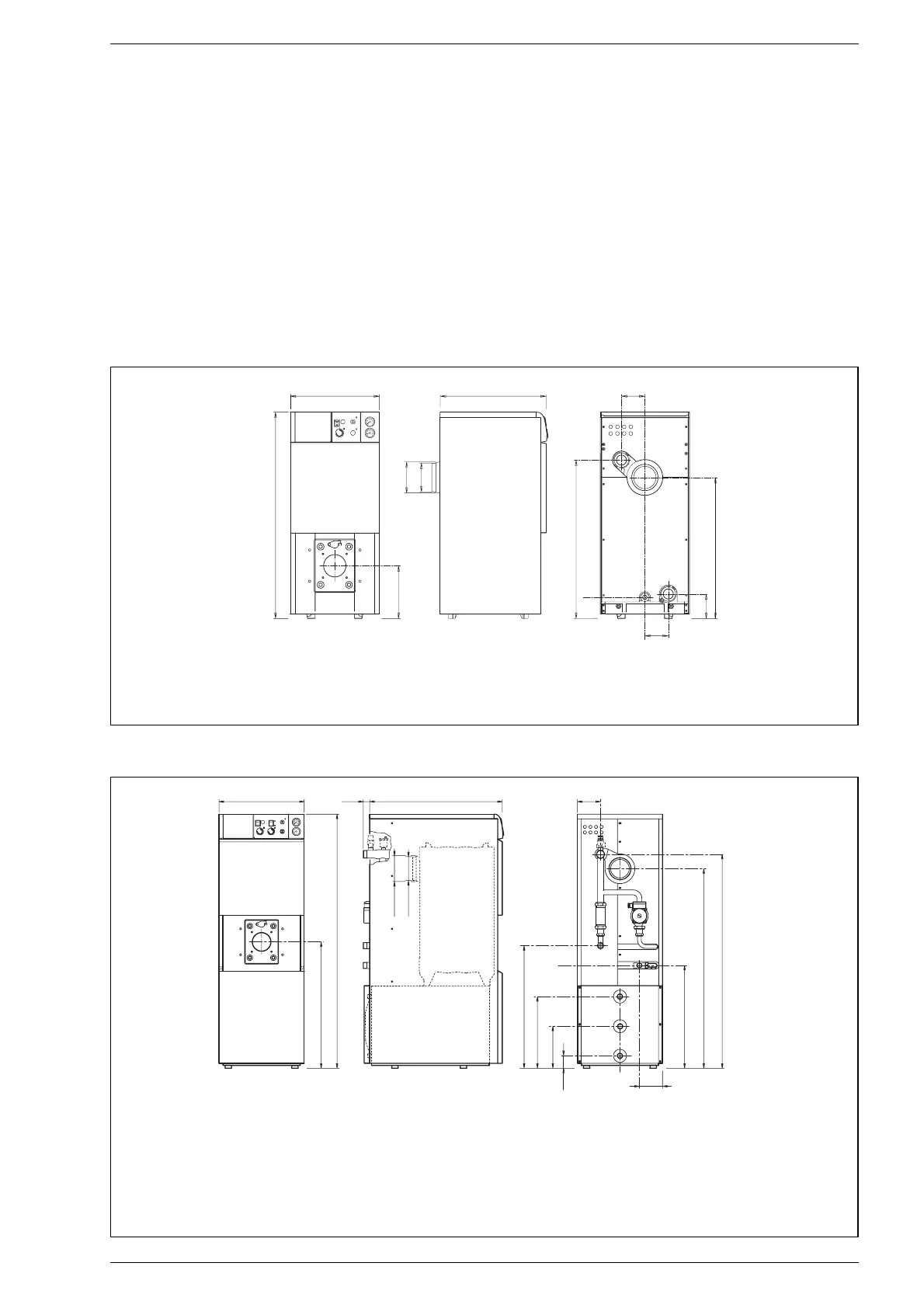
∂ÈÎ. 1
400
P
105
105
710
630
110
¿140
¿130
925
235
S
R
M
460
35
715
125
125
680
137 0
ø140
ø130
660
390
230
70
555
1075
115 5
R
M1
M
S
U
C
E
1.2
¢IA™TA™EI™
1.2.1
§¤‚ËÙ˜
“AR”
1.2.2
§¤‚ËÙ˜
“ARB”
AR3 AR4 AR5
P
M‹ÎÔ˜
375 475 575
M
¶ÚÔÛ·ÁˆÁ‹
1
1
/2
”1
1
/2
”1
1
/2
R
EÈÛÙÚÔÊ‹
1
1
/2
”1
1
/2
”1
1
/2
S
Õ‰ÂÈ·ÛÌ· ϋڈÛË
1/2” 1/2” 1/2”
ARB4 ARB5
M1
K˘ÎÏÔÊ. ˙ˆÓÒÓ
1
1
/4
”1
1
/4
M
¶ÚÔÛ·ÁˆÁ‹
1” 1”
R
EÈÛÙÚÔÊ‹
1” 1”
S
Õ‰ÂÈ·ÛÌ· ϋڈÛË
1/2” 1/2”
E
NÂÚfi XÚ‹Û˘ ÎÚ‡Ô
3/4” 3/4”
C
EÈÛÙÚÔÊ‹ N.X.
3/4” 3/4”
U
¶ÚÔÛ·ÁˆÁ‹ N.X.
3/4” 3/4”
∂ÈÎ. 1/a

Table of Contents

Other manuals for Sime AR3

Related product manuals