EasyManua.ls Logo

Sime AR3 - 1 Opis PeI; Uvod; Mere

Sime AR3
Print Icon
To Next Page IconTo Next Page
To Next Page IconTo Next Page
To Previous Page IconTo Previous Page
To Previous Page IconTo Previous Page
Loading...
1.1 UVOD
Nove peËi iz litega æeleza “AR -
ARB freestanding” so naËrtova-
ne v skladu z navodilom Europea
CEE 92/42.
Delujejo na kurilno olje z uravno-
teæenim izgorevanjem in z visokim
uËinkom, ki dovoljuje znaten prih-
ranek pri uporabi.
Ta priroËnik vsebuje navodila za
namestitev, delovanje in vzdræe-
vanje. PeËi vrste “ARB” so kombi-
nirane peËi za centralno ogrevanje
in proizvodnjo tople vode.
PeËi “AR” so zgrajene samo za
centralno ogravanje. TermiËne
skupne “AR” so razdeljene na tri
dele: telo peËi, ohiπje z vreËico
dokumentov, ter s komandno
ploπËo.
52
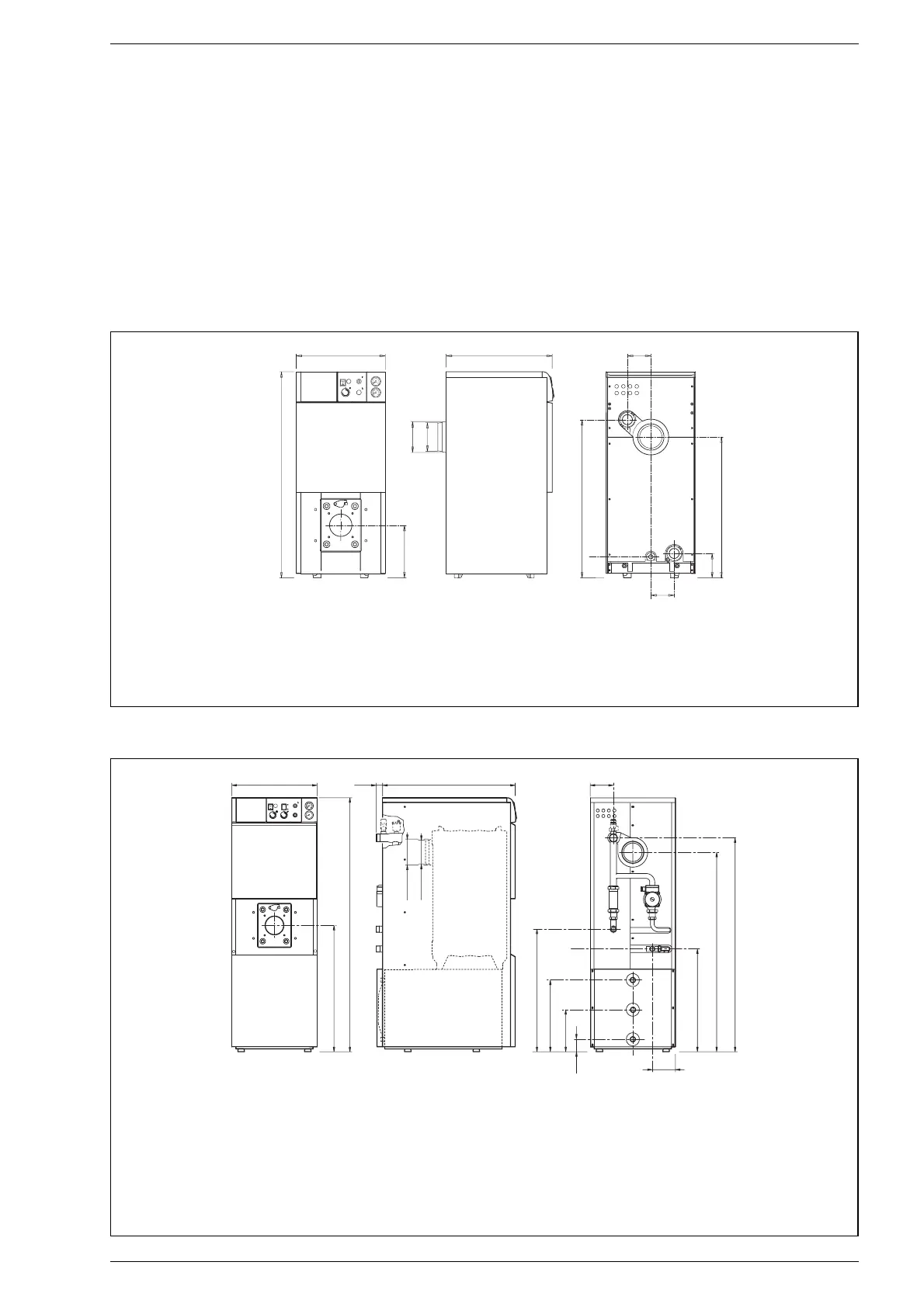
1 OPIS PE»I
400
P
10 5
10 5
710
630
110
ø140
ø130
925
235
S
R
M
460
35
715
12 5
12 5
680
137 0
ø140
ø130
660
390
230
70
555
107 5
115 5
R
M1
M
S
U
C
E
1.2 MERE
1.2.1 Model “AR”
1.2.2 Model “ARB”
Risba 1
AR3 AR4 AR5
P Globina 375 475 575
M Odvodni sistem 1
1
/
2
”1
1
/
2
”1
1
/
2
R Dovodni sistem 1
1
/
2
”1
1
/
2
”1
1
/
2
S Izpraznitev peËi 1/2” 1/2” 1/2”
ARB4 ARB5
M1
Odvodni sistem v predele
1
1
/
4
”1
1
/
4
M Odvodni sistem 1” 1”
R Dovodni sistem 1” 1”
S Izpraznitev peËi 1/2” 1/2”
E Dovod sanitarne vode 3/4” 3/4”
C Cirkulacijski vod 3/4” 3/4”
U Odvod sanitarne vode 3/4” 3/4”
Risba 1/a

Table of Contents

Other manuals for Sime AR3

Related product manuals