EasyManua.ls Logo

SimpliFire SF-BI30-E - Location and Clearance; Clearance to Combustibles; Electrical Supply Requirements; Electrical Supply Circuit Requirements

SimpliFire SF-BI30-E
26 pages
Print Icon
To Next Page IconTo Next Page
To Next Page IconTo Next Page
To Previous Page IconTo Previous Page
To Previous Page IconTo Previous Page
Loading...
9
SimpliFire • SF-BI30-E, SF-BI36-E • 2040-900 Rev. C • 2/13
D. Location
When choosing a location for your replace ensure that
the general rules are followed:
For best results, install out of direct sunlight.
Power supply service must be installed within
proximity of electric replace prior to nishing to
avoid reconstruction.
E. Clearance to Combustibles
Minimum Clearance to Combustibles
Sides.......................0 in.
Floor........................0 in.
Top..........................0 in.
Back........................0 in.
Front.......................36 in.
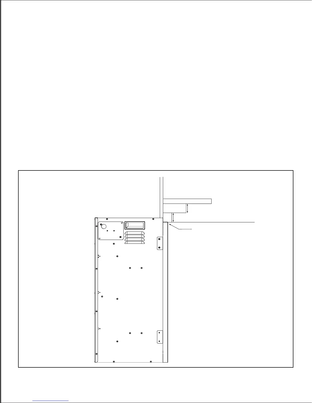
Mantels..........See Figure 3.1
WARNING! Risk of Fire! Keepelectricalcords,drapery,
furnishings or other combustibles at least 3 ft. (0.9 m)
fromthefrontoftheelectricreplace,andawayfromthe
sidesorrear.
F. Electrical Supply Circuit Requirements
Plan the location of the appliance so that it will have
adequate electric power. A 15 AMP, 120V/60hz. circuit
is required. Additional appliances on the same circuit as
this heater may exceed the current rating of that circuit.
A dedicated circuit is not required, but is preferred to
prevent circuit breaker trips or fuse failure.
Reference Section 4.E for more complete detail on com-
pleting electrical installation.
2 in.
2 in.
2 in.
6 in.
12 in.
Measurements from top surface
of the door front.
Figure 3.1 Minimum Vertical and Maximum Horizontal Dimensions of Combustible Mantels.

Other manuals for SimpliFire SF-BI30-E

Related product manuals