EasyManua.ls Logo

Simu SIMUBOX 200/12 - Technical Characteristics

Simu SIMUBOX 200/12
Print Icon
To Next Page IconTo Next Page
To Next Page IconTo Next Page
To Previous Page IconTo Previous Page
To Previous Page IconTo Previous Page
Loading...
SIMU S.A.S. au capital de 5 000 000 € - Z.I. Les Giranaux - BP71 - 70103 ARC-LÈS-GRAY CEDEX - FRANCE - RCS VESOUL B 425 650 090 - SIRET 425 650 090 00011 - n° T.V.A CEE FR 87 425 650 090
SIMUBOX 200/12 (single-phase)
SIMUBOX 250/08 (single-phase)
SIMUBOX 180/12 240V (single-phase)
SIMUBOX 250/08 240V (single-phase)
5141058B
EN-TRANSLATION OF THE
ORIGINAL MANUAL
This manual applies to all single-phase SIMUBOX motors regardless of the torque/speed versions. Mandatory
instructions to be followed by the motor and building automation professional installing the motor.
SCOPE
Single-phase SIMUBOX motor is intended to activate curtains or grilles for commercial and industrial premises.
For information on the compatibility of the motor with the product to be powered and the accessories, contact the
manufacturer of the product to be powered or SIMU.
LIABILITY
Read this installation and user manual carefully before installing and using the single-phase SIMUBOX motor. In
addition to the instructions described in this manual, you must also follow the instructions detailed in the attached
document “ICC Safety Instructions”.
Any use of single-phase SIMUBOX motors outside the scope of application described above is prohibited. This
releases SIMU from all liability and warranty obligations, as does failure to comply with the instructions in the manual
as well as instructions in “ICC Safety Instructions”.
The installer must inform their customers of the conditions for using and maintaining the single-phase SIMUBOX
motor and must provide them with the use and maintenance instructions as well as the “ICC Safety Instructions”,
after installing the single-phase SIMUBOX motor. All operations on the single-phase SIMUBOX motor, including After
Sale Service, require the intervention of a motor and building automation professional. If you have any doubt while
installing the single-phase SIMUBOX motor or if you require any additional information, get in touch with a SIMU
contact or visit the website www.simu.com.
COMPATIBILITY
Single-phase SIMUBOX motors have been made to be exclusively controlled by unstable key switches offered in the
SIMU catalogue
TECHNICAL CHARACTERISTICS
1
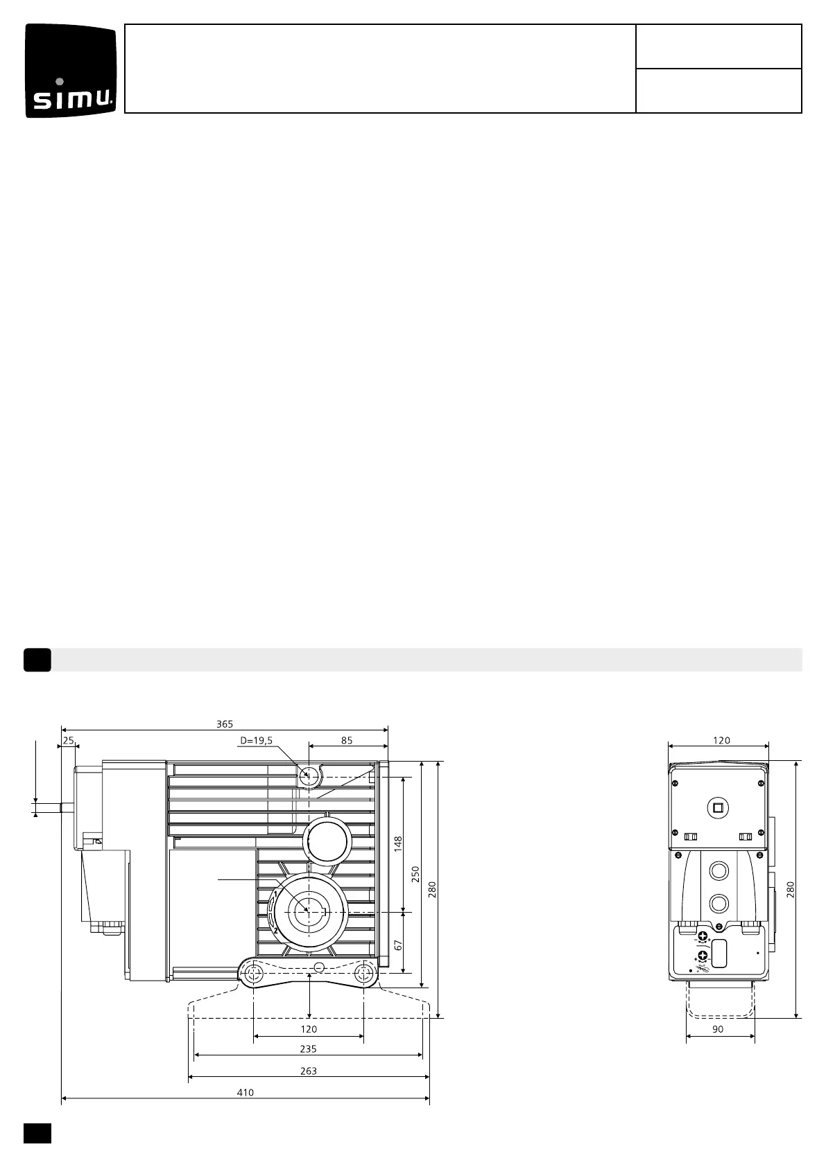
1.1 - Dimensions
S1
S2
square of 10
Ø 30
45
EN
1/5

Related product manuals