EasyManua.ls Logo

SIVIK STD-7330 - Page 14

SIVIK STD-7330
30 pages
Print Icon
To Next Page IconTo Next Page
To Next Page IconTo Next Page
To Previous Page IconTo Previous Page
To Previous Page IconTo Previous Page
Loading...
REV. 02 14 / 30
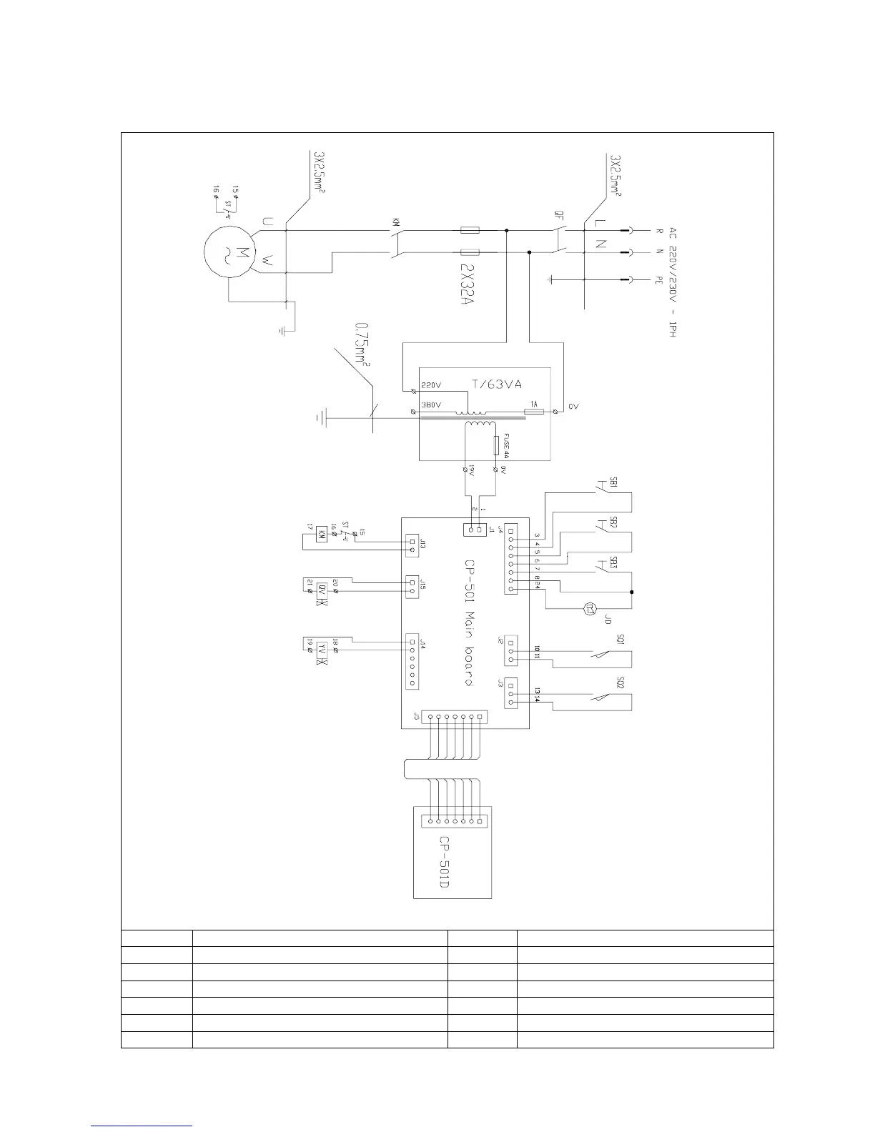
Figure 5b – ELECTRIC DIAGRAM (220V/230V-1PH)
QF Power switch SB1 Liftin
g
b
utton
M Motor 2.2KW 1PH SB2 Lowering
b
utton
ST Overhead protector SB3 Final lowering
b
utton
T Transformer 63VA JD Beeper
K
M
Contactor DC SQ1 Max. lifting height limit switch
Y
Lowering solenoid valve SQ2 Safet
y
height limit switch
Q
Solenoid air
v
alve
Display
N
2
N
1
1
L
2
F1
L
1
F2