EasyManua.ls Logo

Skyjack SJ45 AJ+ - Reach and Dimension Diagrams

Skyjack SJ45 AJ+
120 pages
Print Icon
To Next Page IconTo Next Page
To Next Page IconTo Next Page
To Previous Page IconTo Previous Page
To Previous Page IconTo Previous Page
Loading...
SJ45 AJ+, SJ60 AJ+ 238264AAA
89
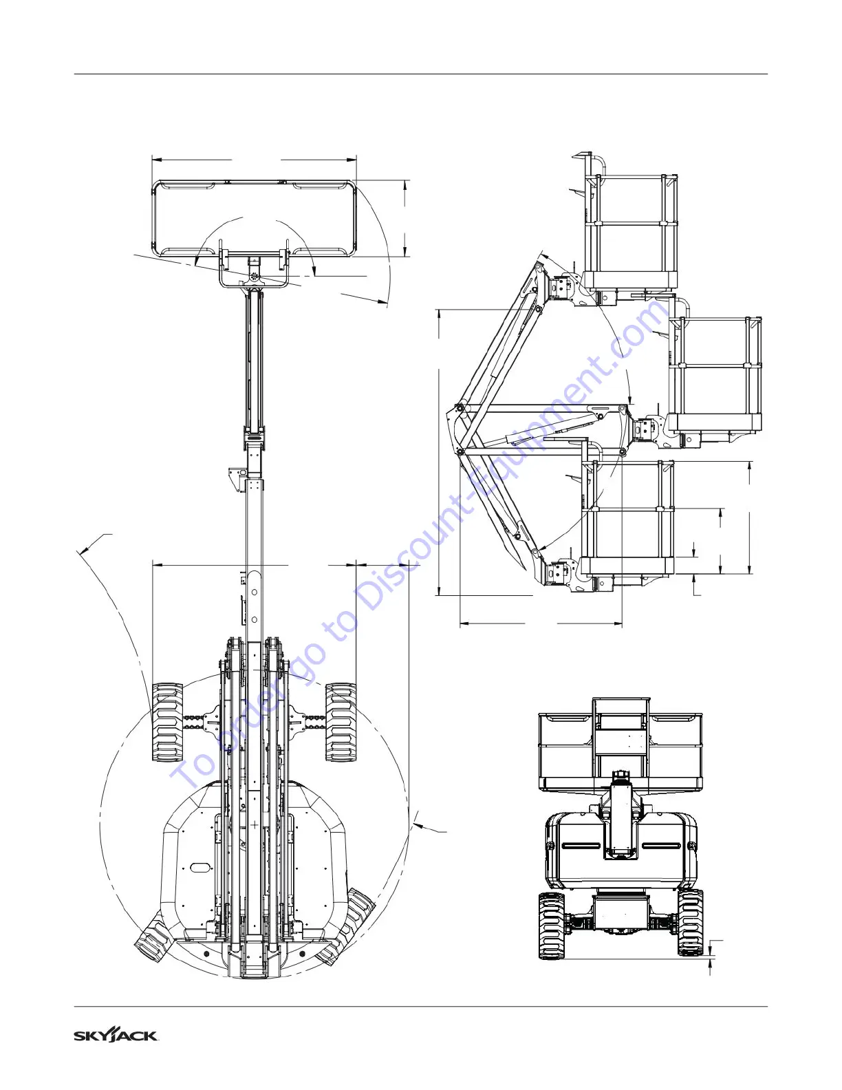
Technical diagrams Section 7 – Technical Diagrams and Specifications
Dimensions - SJ60 AJ+ (continued)
0.06 m
(2-1/2 in)
DETAIL A
1.60 m
(63 in)
2.81 m
(9 ft 2-1/2 in)
65º
60º
1.11 m
(44 in)
0.64 m
(25 in)
0.17 m
(6-1/2 in)
2.44 or 1.83 m
(96 or 72 in)
0.91m
(36 in)
175˚
1.14 m
(45 in)
2.21m
(7 ft 3 in)
2.44 m
(8 ft)
5.31 m
(17 ft 5 in)
0.61 m
(2 ft )
To order go to Discount-Equipment.com

Table of Contents

Other manuals for Skyjack SJ45 AJ+

Related product manuals