EasyManua.ls Logo

Smeg A2-81 - Page 45

Smeg A2-81
48 pages
Print Icon
To Next Page IconTo Next Page
To Next Page IconTo Next Page
To Previous Page IconTo Previous Page
To Previous Page IconTo Previous Page
Loading...
Installation
97
EN
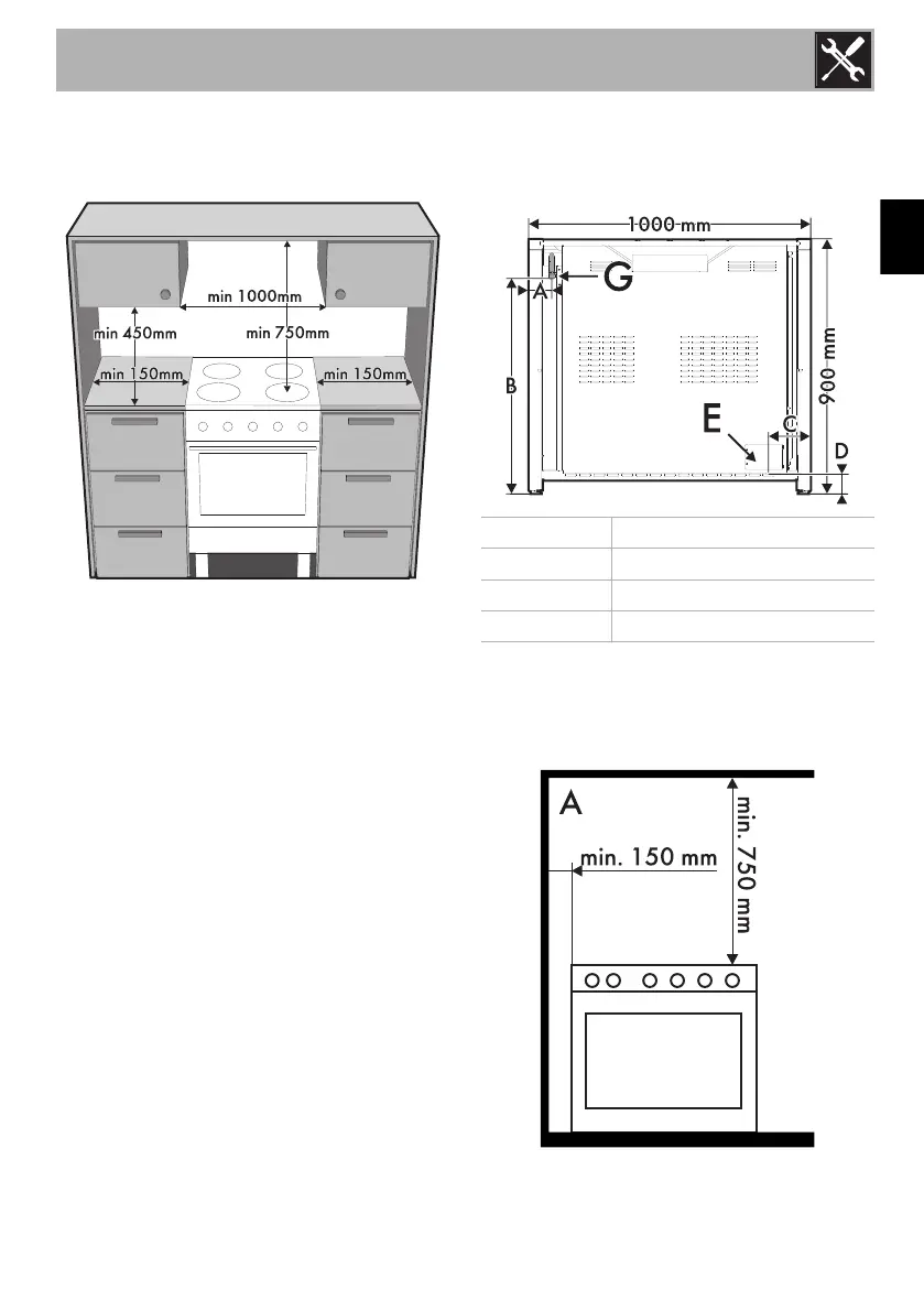
Any wall units positioned above the
worktop must be at a minimum distance of
at least 750 mm.
If a hood is installed above the hob, refer to
the hood instruction manual to ensure the
correct clearance is left.
Dimensions
Position of gas and electrical connections
(all measurements expressed in mm).
G = Gas connection - E = Electrical
connection
Depending on the type of installation, this
appliance belongs to classes:
A - Class 1
(Free-standing appliance)
A 82 mm
B 764 mm
C 150 mm
D 70 mm

Related product manuals