EasyManua.ls Logo

Smithco SweepStar 48 - Rear Axle Parts List

Smithco SweepStar 48
58 pages
Print Icon
To Next Page IconTo Next Page
To Next Page IconTo Next Page
To Previous Page IconTo Previous Page
To Previous Page IconTo Previous Page
Loading...
44
Parts
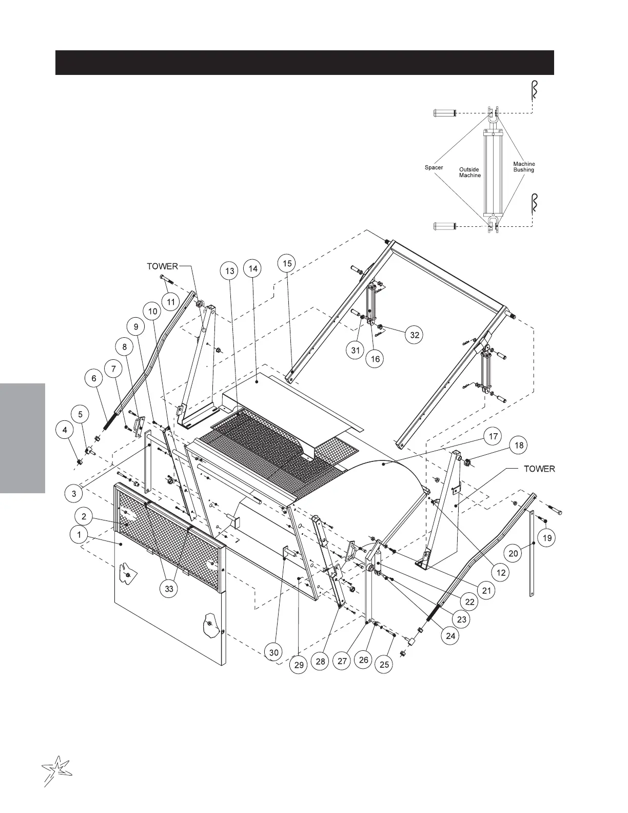
48-120 Dust and Filtration Pack for High Lift
48-064 Hopper Filter 24" x 44"
48-065 Tailgate Filter 17" x 50"
HOPPER AND TAILGATE DRAWING
(HIGH LIFT)

Related product manuals