EasyManua.ls Logo

Sony BDP-S485 - 3 Block Diagram; Overall Block Diagram

Sony BDP-S485
134 pages
Print Icon
To Next Page IconTo Next Page
To Next Page IconTo Next Page
To Previous Page IconTo Previous Page
To Previous Page IconTo Previous Page
Loading...
T701
FL-204 BOARD
Y
P
B
P
R
L
R
C
N801
L
A
N
(
1
0
0
)
I
C
3
01
(AC IN)
A
3-1
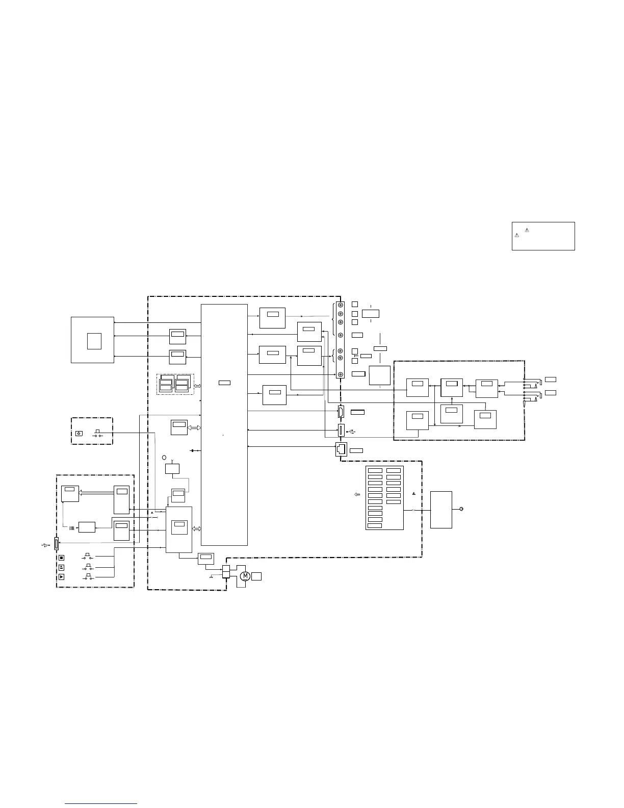
BDP-S485
SECTION 3
BLOCK DIAGRAM
3-1. OVERALL BLOCK DIAGRAM
PS301
PS302
The components identifi ed by
mark
or dotted line with mark
are critical for safety.
Replace only with part number
specifi ed.
IC1003
VIDEO AMP
IC903
AUDIO DAC
FRONT
REAR
USB
USB
ETHERNET
VIDEO
AUDIO
(ANALOG OUTPUT)
(DIGITAL OUTPUT)
AUDIO
MB-139 BOARD
CN701
HDMI OUT
COAXIAL
AUDIO
REGULATOR
I
C
3
02
I
C
3
03
I
C
3
04
I
C
3
05
I
C
3
06
I
C
3
07
I
C
3
08
I
C
3
09
I
C
603
I
C
604
I
C
703
I
C
704
I
C
705
VIDEO
COMPONENT
VIDEO OUT
LINE OUT
DIGITAL OUT
PCM/DTS/DOLBY
DIGITAL
SATA I/F, MEMORY CONTROL,
A/V OUT, HDMI, ETHERNET I/F,
USB I/F
MAIN SYSTEM CONTROL, DSP
CXD9998G-AB/AC/CB/CC
IC101
CN604
J901
B-BUS
A-BUS
IC206
IC106
IC107
IC501
2G NAND
FLASH
X401
27MHZ
IC1204
P FAIL
IC1203
SUB SYSTEM
CONTROL
CN201
IC701
REMOTE
CONTROL
RECEIVER
IC702
VFD DRIVER
Blu-ray
DVD
DRIVE
BD DRIVE
IF-172 BOARD
ND701
FLUORESCENT
VACCUM
DISPLAY
Q706,Q707
CONVERTER
DC/DC
S331
POWER
SWITCHING
REGULATOR
PS1201
FR_6V
IC1401
IC2401
SA
DRIVE
MOTOR
DRIVE
USB
S701
STOP
S702
PLAY
S703
OPEN/CLOSE
I
C
3
10
UNSW12V
VOLTAGE
DIVIDER
IC1501
CONTROL
FAN
CN1503
M1501
FA N
2
1
IC207
USB
WLAN
HDMI
USB
CORE_1.1V
DCD6V
SW5V
DCDC-4V
3.3VA
FE_SW 5V
1.2VA
FE_SW12V
DAC3.3V
UNSW3.3V
DDR3_1.5V
I
C
601
Q903
MUTE DRIVER
IC904
AUDIO
MIX AMP
ADC
IC901
ECHO VR
MC-202 BOARD
(SEE PAGE 3-11 to 3-12)
MIC
ATTENUATOR
IC403
RV402
MIC MIX
AMP
IC402
MIC 1
MIC 2
J401
J402
IC403
MIC
AMP
RV401
MIC VR
MIC LIMITER
AMP
IC404
KARA
(MIC IN)

Table of Contents

Related product manuals