EasyManua.ls Logo

Sony BDP-S485 - USB;ETHER, Block Diagram

Sony BDP-S485
134 pages
Print Icon
To Next Page IconTo Next Page
To Next Page IconTo Next Page
To Previous Page IconTo Previous Page
To Previous Page IconTo Previous Page
Loading...
3
MB-139 BOARD
CN1102
CN1202
12
RXD0
SIRCS_IN
LAN (100)
B3
A2
A4
B4
M32
L26
M24
E21
A28
E9
K23
AE5
VDIN32
GPIO1
GPIO6
VDIN7
GPIO4
GPIO5
J25
K26
35
KEY1
IF-172 BOARD
13
15
16
5
11
9
8
19
7
9
8
IC702
VFD DRIVER
IC701
REMOTE
CONTROL
RECEIVER
DIN
CLK
STB
VACCUM
FLOURESCENT
DISPLAY
ND701
CN702
GRD1 - GRD8
SEG1 -SEG17
CN1204
S331
CN331
FL-204 BOARD
11
36
KEY3
KEY2
38
KEY1
KEY3
KEY2
CN801
3
2
21
22
2
3
CN201
D-
D+
DM
DP
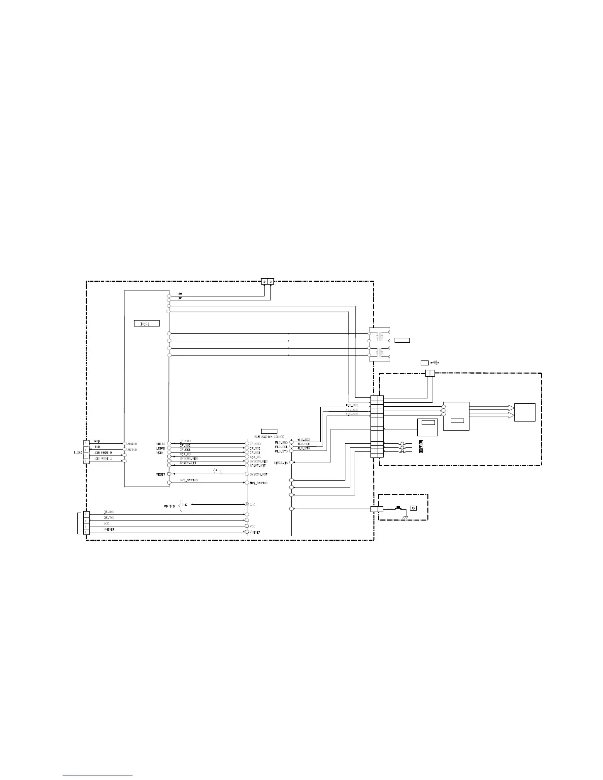
3-4. USB/ETHER/ WLAN BLOCK DIAGRAM
3-4
USB
IC1203
EXT
CN604
DM DP
4
7
8
22
2
23
1
21
3
CN1203
37
S701
S702
S703
DM
DP
TXVN_0
TXVP_0
TXVN_1
TXVP_1
13
14
16
31
48
47
49
3
30
43
51
25
8
34
33
BDP-S485
KEYO
TXD0
AB1
AB2
AD1
AD2
CXD9998G-AB/AC/CB/CC
AD6
AE6
USB_IP_DM
USB_IP_DD
USB_2P_DMO
USB_2P_DPO
FLASH
WRITER
PG 3-2
WP

Table of Contents

Related product manuals