EasyManua.ls Logo

Sony BDP-S485 - Page 46

Sony BDP-S485
134 pages
Print Icon
To Next Page IconTo Next Page
To Next Page IconTo Next Page
To Previous Page IconTo Previous Page
To Previous Page IconTo Previous Page
Loading...
BDP-S485
1
A
B
C
D
E
F
G
H
I
J
2
12
13
11
10
98765
43
14
4-
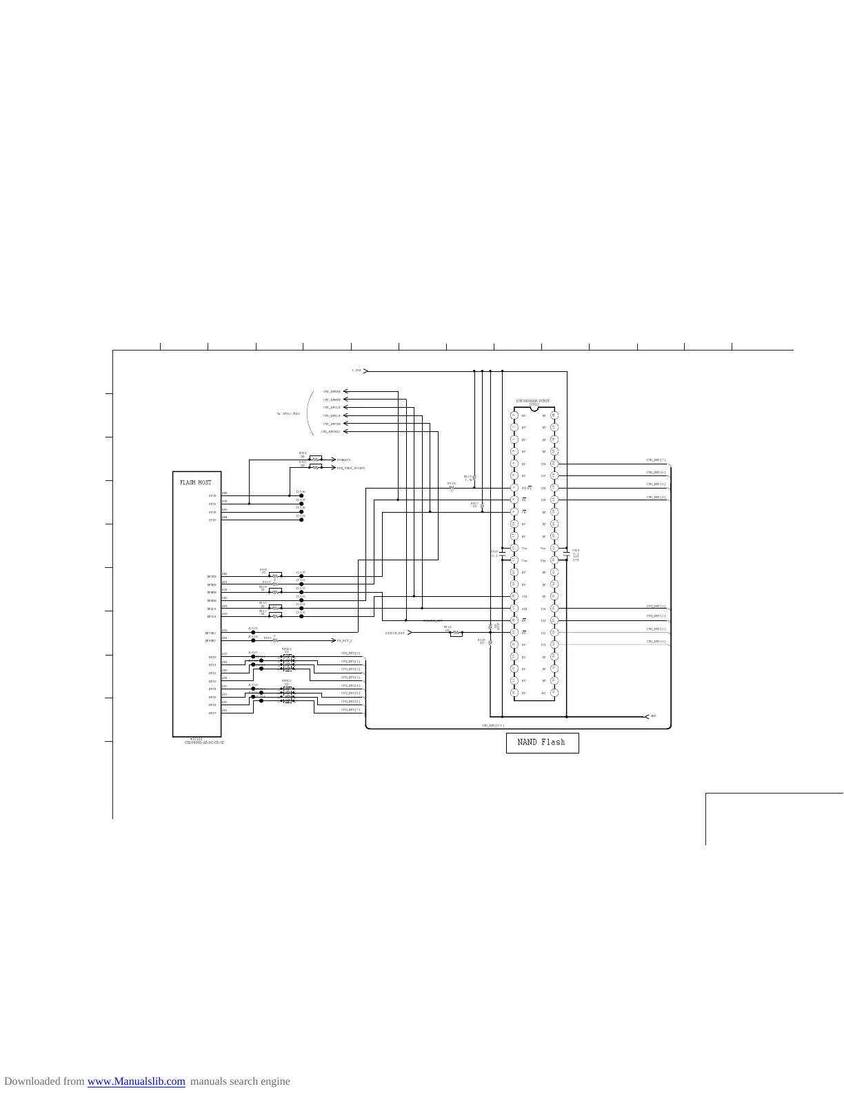
10. MB-139 BOARD (CXD9998G-AB/AC/CB/CC)
SCHEMATIC DIAGRAM (5/17)
See page 5-4 for printed wiring board.
- Ref. No.: MB-139 board; 10,000 series
4-10
FLASH/HOST
MB-139
CPU_NFD[0-7]
CPU_NFD[2]
CPU_NFD[3]
CPU_NFD[4]
CPU_NFD[5]
CPU_NFD[6]
CPU_NFD[7]
CPU_NFD[1]
CPU_NFD[0]
CPU_NFD[0]
CPU_NFD[1]
CPU_NFD[2]
CPU_NFD[3]
CPU_NFD[4]
CPU_NFD[5]
CPU_NFD[6]
CPU_NFD[7]
SYSCON_RST
C504
0.1
16V
X7R
XX
R519
RB501
XX
1
2468
357
RB502
XX
1
2468
357
3.3VA
GND
XX
R522
XX
R507
0
R508
XX
R510
XX
R511
0
R518
JL507
JL511
JL508
JL512
JL509
JL513
JL510
JL514
JL516
JL517
JL518
JL519
JL520
JL521
JL522
JL524
JL523
JL525
XX
R520
3.3k
R523
SYSCON_RST
XX
R516
JL505
JL506
CPU_NFCEN2
C507
0.1
IC501
K9F2G08U0B-PCB0T
NC
NC
NC
NC
NC
NC
RY/BY
RE
CE
NC
NC
Vcc
Vss
NC
NC
CLE
ALE
WE
WP
NC
NC
NC
NC
NC NC
NC
NC
NC
IO1
IO2
IO3
IO4
NC
NC
NC
Vss
Vcc
NC
NC
NC
IO5
IO6
IO7
IO8
NC
NC
NC
NC
XX
R509
CPU_NFREN
CPU_NFWEN
CPU_NFCLE
CPU_NFALE
CPU_NFCEN
*IC101
CXD9998G-AB/AC/CB/CC
AH5
SFCS
AG5
SFDI
AF5
SFCK
AH4
SFDO
AH2
NFCEN
AD4
NFREN
AG4
NFWEN
AE3
NFRBN
AF4
NFALE
AG3
NFCLE
AD5
NFCEN2
AE4
NFRBN2
AG2
NFD0
AH1
NFD1
AF3
NFD2
AG1
NFD3
AF2
NFD4
AF1
NFD5
AE2
NFD6
AE1
NFD7
0
R533
FE_RST_I
FORMAT1
USB_VBUS_PCONT2
XX
R534
XX
R535
NAND Flash
To GPIO/JTAG
3484
65
46
4321
731424445474 383940
1210 11987
1363 32333435
181716151413
30 29 28 27 2625
242322212019
FLASH HOST

Table of Contents