EasyManua.ls Logo

Sony BVM-1911 - BA Board

Sony BVM-1911
275 pages
Print Icon
To Next Page IconTo Next Page
To Next Page IconTo Next Page
To Previous Page IconTo Previous Page
To Previous Page IconTo Previous Page
Loading...
BA
BA
----
-
- ---- - ---- -
----------------
,:---,--,
Al 1
± C716
Q6 ()i'\
1~
Al 2
0.01
DTA144ES U
D4
MC911 R906
4.7
1lJv..L.+
Cl
~
1c31-t[_cie -tl.rn
A820
47
QS
+16V
DTC144ES
r C39 I C32- 38 r ,,o
CH-B
R2
Rl CH-A fa
r<io ' C6 R13 '~
Oil liv 16V
]I TP201
100
~PIO!
47 47k
C12-17
I
+16V
100
"'
C3
TP501
3
I
J
3 2 4
TPY
'7
~'t
ICI
C4
IC2
6
R12 10
8
CX-B94 100 16V
CX-894
R3
6
+ CB
100
if:.r
...
47
) COMP VIDEO
2
'
RB
'
5
7 I
16V
TP40lllimJ
2. 7k C7
Al B
"'
RlO
47
c,ol
~·"fil
RS •
Q2
~
n
100
16V
m RD3. OEB1
100
~
1
f Lo7
A9
f--<
0-rr 1 -
+
+ C19
ra
6
k:
Bil
0
c,
61
~Jt~
I 1160V
7
.
C717 \QQp ,Ok
AB I
QI R907'
A822
MC921
DTCI 44ES
4.7
~--i
~
;;r,,~ AB21
.L c11-1 csi2oO s1 cs,
I
0
·f
1
? 16Y J1~S
I
Al 9
I
A17
I
BIB
B19
I
Bl 3
B14
B17
B16
~
CP7
CP6
CPS CP4
CP3 CP2
~~-c~;
BIS
-- --
-- --.,
!'"'
101:::
(1001C
101( i
!"'
: 101(
j""
101( j !001(
101( f
!1001(
101(: : n: :1001C
OK!
I
-- :
-
~
;- 0.01!
-
~o.o,i hi
I
>-I-
l~~~
J o. 01:
l1_~
--iJ
;,oi::
~
0.01
ilOK i 10K,
--iJ
: 101(
-l-J I
~~;~
-l~lj
>->-
-l-J
!,_ ___
-l-
!._ __
-l-'
!. __
L ___
0.01 F
I
16
1
IC3
I
I
,PC4053BC
15
I
I
\
1 10
I
3
'
I
\
I
5
'
C21
12
I
0.047
14
~
F
>--tt-;i.
13 11
--·-
RII
Q3
6 7 8
I
22k
DTCI 44ES
? TP2
~s~
AB7
,r--
ABB
ABS
.
,r--
AB6
AB3
I
D706 1S8119
~
,r--
AB4
C707-tl.
~Q71S
Q717
~:j!:
JUR729
R731:
R738
1,/T
3,3k
2. ]k
2SC3068 COMP. SYNC
100M
~
2SAI I 15
I
...
9::-0
)
R728
Q713
I
33•
D708
~
18S119
Q716
A2
I
R732
,R733
R734
r~:
r
~C709
2. 7~ 2,2k
2:.~k
tr:'
2SC278S
B2
)48
10
I
). R739
D710
16Vl
IOOp
tr:')
rnol
l:;,21
~
22k
ISSI 19
M')
6B001
oo'I
C7l3
~:~~3
D707
~
R737 I
LC?,o•i
\t:, ISSl 19
100
so_~
YNC
,j
Q714"
...
50V
C711 R736
2SC27BS
0,015 4. 7k
I
Q712
4
2SAl 115
--
- ---- - ---- - ---- - ---- - ---- - ---- - --- - ---- - ---- - ---
5-18
B4 B7
S. SW BG B9
RGB. SW
EH A4
HZ-2
+12V I - BT A4
>- BT
B4
>- B2
A4
>- B2
B4
,_ BG
B4
.... BC/BD/BM
J- BC/BD/BM
>- B3
A4
COMP OUT 1--
>- B3
B4
>- B4
A4
DY. (N
B4
~"'
IN H
BA
B9
E
BG A2
E
EH B2
-12V
B3 A2
Bl
BS
-
TEST SW
- HZ-2
....
KI LLEA
A/B R
'--- V-1
....
A/B L - HZ-4
....
!NT/EXT R
-V-1
....
I NT/EXT L
- HZ-4
-
AUTO/B/W L
- HZ-4
AUTO/B/W R
-V-1
LOCAL/REMOTE -V-1
R OUT
~
BG A9
EH A3
E
0 OUT
I--- BH AS
E
B OUT
re BG All
E
BH A7
- BT BZ
t-- B2 B2
- BJ BS
.,.._ BC/ED/Bird
COMP SYNC
J--- - B3 B3
v. s. s
BJ B2
A4
B4
BT
B2
BG
BJ
B2
B3
B4
B13
B13
A3
A7
Bl 3
B13
Bl 3
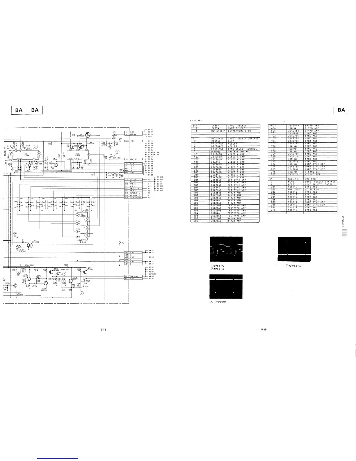
BA BOARD
IC 1
2
3
Q1
2
3
4
5
6
1 01
102
103
104
105
201
202
203
204
205
301
302
303
304
305
4Ul
40.:'.
4U.5
404
405
501
502
503
504
505
601
-6 02
CX8Y4
CX894
MC14053BCP
DTC144ES
2SA844
DTC144ES
DTC144ES
DTC144ES
DTA144ES
2SC2668
2SC2668
2SC2668
2SA844
2SC2668
2SC2668
ZSUo68
2SU6o8
2SA844
.:'.SC2668
2SC2668
2SC2668
2SC2668
2SA844
2SC2668
2SC2b68
2SC2668
ZSCZbbB
ZSA844
2SC2668
2SC2668
2SC2668
2SC2668
2SA844
2SC2668
2SC2668
2SC2668
2) 1Vp-p (HJ
@tVp-p (HJ
,3, 12Vp-p (HJ
INPUT SELECT
Q603
2SC2668
B-Y/B
AMP
SYNC SELECT 604 2SA844 B-Y/B AMP
LOCAL/REMOTE
SW 605 2SC2668
B-Y/B AMP
701 2SA1048 SYNC AGC
702 2SC2785 SYNC AGC
INPUT SELECT CONTROL
703
2SC2785 SYNC
AGC
BUFF
704
2SC2785 SYNC
AGC
KILLER
705 2SC2785 SYNC AGC
KILLER
706
2SA1048 SYNC AGC
SYNC SELECT CONTROL
707
2SC2785
SYNC AGC
INT/EXT
CONTROL
70 8'
2SA1048
SYNC AGC
VIDEO A AMP
709
2SC2785 SYNC AGC
VIDEO A AMP
710 2 SA 111 5
SYNC AGC
VIDEO
A AMP
711
2SA1048 SYNC AGC
VIDEO
A AMP
712
2 SA 111 5
SYNC
AGC
VIDEO A
AMP
713
2SA1048 COMP SYNC SEP
VIDEO B
AMP
714
2SC2i'85 COMP SYNC
SEP
VIDEO B AMP
71 5
2SC3068
COMP SYNC
SEP
VIDEO
B
AMP
716
2SC2785
V
SYNC
SEP
VIDEO
B
AMP
717 2SA1115
V
SYNC SEP
VIDEO B AMP
EXT SYNC AMP
D 1
RD3. OE-Bl +9V REG
EXT
SYNC
AMP
2 MC921
INPUT SELECT
CONTROL
EXT SYNC AMP
4 M C911 SYNC SELECT
CONTROL
EXT SYNC AMP
EXT SYNC AMP
701 1SS119
SYNC AGC
702 RD4. 3E-B2
-7.5V REG
R-Y/R
AMP
703
1SS119
SYNC AGC
R-Y/R
AMP
704 1SS119
SYNC
AGC
R-Y/R
AMP
705 1SS119
SYNC
AGC
R-Y/R
AMP
706 1SS119
SYNC AGC
R-Y/R AMP
707 1SS119
COMP
SYNC
SEP
TEST/Y/G AMP
708
1SS119
COMP
SYNC
SEP
TEST/Y/G AMP
709 1SS119
SYNC
AGC
TEST /Y /G AMP
71U 1SS119
SYNC AGC
TEST/Y/G
AMP
TEST/Y/G AMP
B-Y/B AMP
B-Y/B AMP
]_) 12 Vp-p (V)
5-19

Table of Contents

Related product manuals