EasyManua.ls Logo

Sony CCD-TRV36E - Vtr;Camera Control Block Diagram

Sony CCD-TRV36E
181 pages
Print Icon
To Next Page IconTo Next Page
To Next Page IconTo Next Page
To Previous Page IconTo Previous Page
To Previous Page IconTo Previous Page
Loading...
CCD-TR315E/TR415E/TR425E/TR515E/TR516E/TR713E
CCD-TRV16E/TRV26E/TRV27E/TRV27EP/TRV36E/TRV46E
3-9
3-10
3-11
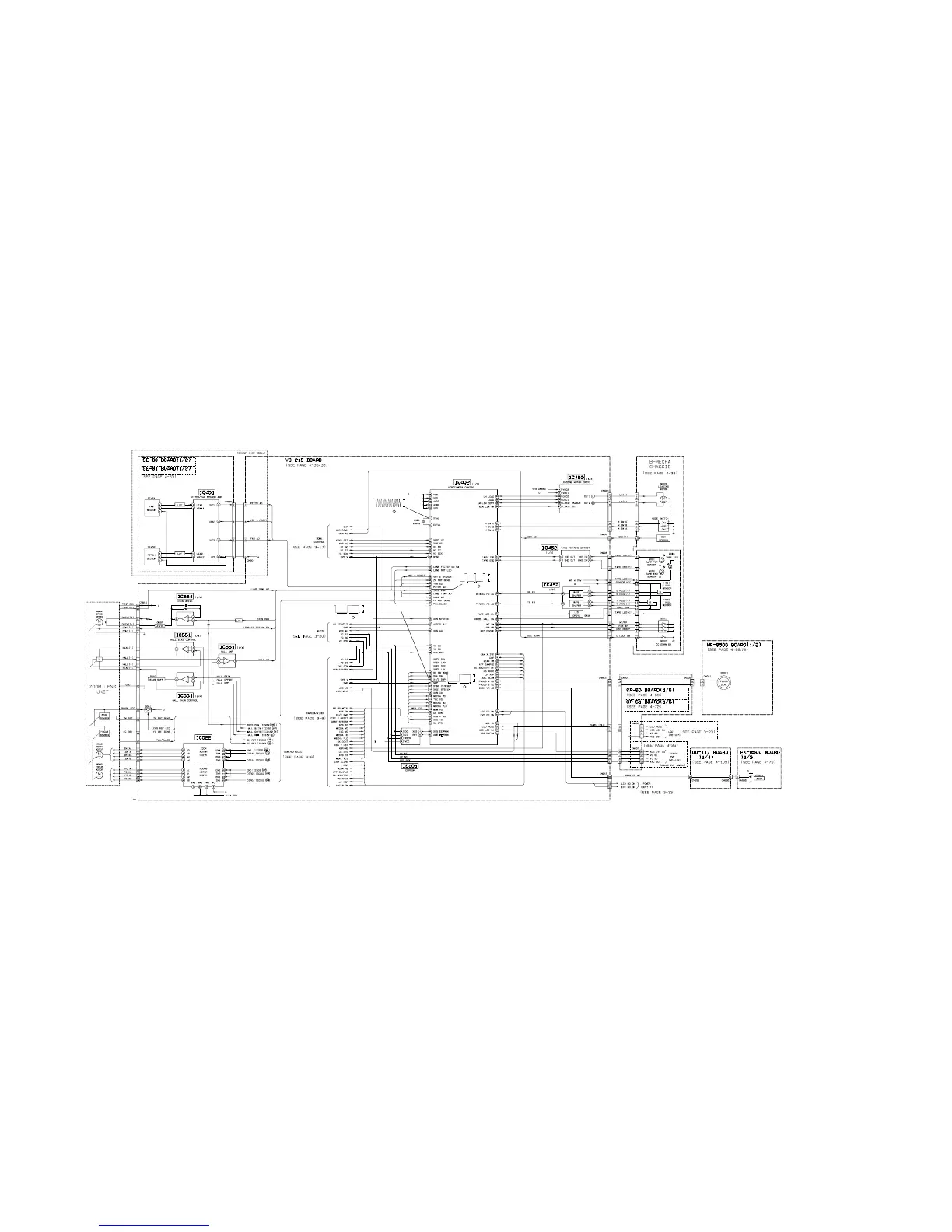
3-3. VTR/CAMERA CONTROL BLOCK DIAGRAM
IC402 1
20 MHz
1.7Vp-p
4V
3Vp-p
IC402
48
2V
3Vp-p
IC402
47
13usec
3Vp-p
IC402
70
( TR713E only )
3.1V
3.1V
3.1V
3.1V
3.1V
3.1V
3.1V
3.1V
3.1V
TR SERIES : CCD-TR315E/TR415E/TR425E/TR515E/TR516E/TR713E
TRV SERIES : CCD-TRV16E/TRV26E/TRV27E/TRV27EP/TRV36E/TRV46E
COLOR EVF MODEL : CCD-TR516E
STEADY SHOT MODEL : CCD-TR713E/TRV46E
( TR SERIES )
( TRV SERIES )
( TRV SERIES )
( TRV SERIES )

Table of Contents

Related product manuals