EasyManua.ls Logo

Sony D-E770 - IC Block Diagrams; Block Diagram

Sony D-E770
18 pages
Print Icon
To Next Page IconTo Next Page
To Next Page IconTo Next Page
To Previous Page IconTo Previous Page
To Previous Page IconTo Previous Page
Loading...
D-E770/EJ711/EJ715
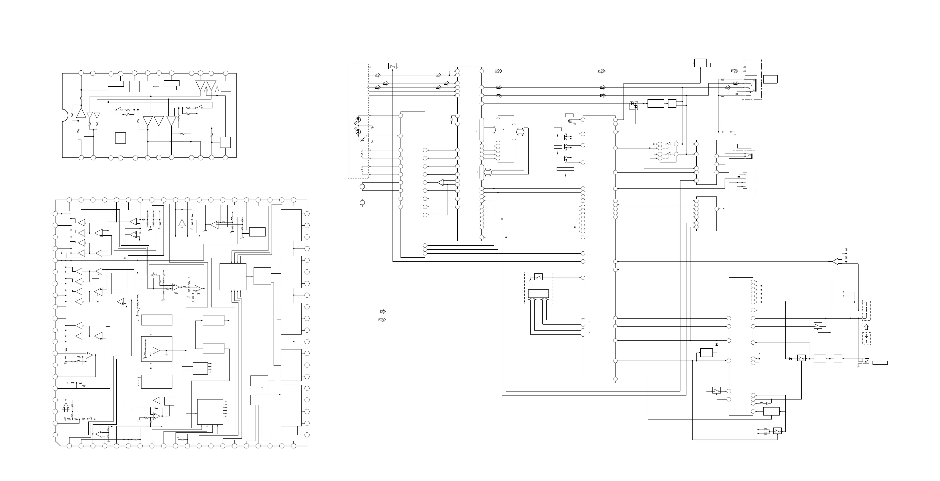
5-2. IC BLOCK DIAGRAMS
IC351 TA2120FN
IC401 TB2119F
+
+
+
23
20 19 18
17
16
15
14
13
2
3
4 5
6
7
8
9
10
11
12
1
24
BIAS
BEEP
PW
SW
MT
SW
ALC
DET
ATT
SW
PWC
SW
OUT B
OUT A
BEEP
IN
BST
PW
B
PW
C
BST
NF
ADD
OUT
RF IN PWC
SW
OUT B OUT C OUT A PWR
GND
MIX
OUT
ALC
IN
ALC
DET
ATT
SW
IN AIN BGND
MT
TC
MT
SW
PW
SW
BIAS
BIAS
IN
BST
SW
BST
OUT
VCC
ADD
A
ADD
B
21
22
PW
A
ALC ALC
1 2 3 4 5 6 7 8 16 17 18 19 20
21
22
23
24
25
26
27
28
29
30
31
32
33
34
35
36
37
38
39
40
4142434445464748495051525354555657585960
61
62
63
64
65
66
67
68
69
70
71
72
73
74
75
76
77
78
79
80
1514131211109
HPOUT2
HPOUT3
HPOUT1
APCREF
VHP
HCND
RO4
FO4
RO3
RO2
RO1
FO3
FO2
FO1
FI1
RI1
FI2
RI2
RS
RF4
DCIN
VCPU
VCC1
RSTB
DTC2D
DTC1D
INM1
RF1
BATM2
BATM1
INP1
INM4
CHGSW
CHGMNT
MGND4
MGND3
MGND2
MGND1
VD34
VD23
VD12
VLGO1
VLGO2
VLG3
L1L
L1H
L2H
L2L
L3
PGND1
PGND2
PGND3
VIN
INP3
INM3
RF3
RF21
DTC3
PAPC
VINDET
VREF
L4
VG
GND
SYNC
CLOCK
DATA
LATCH
HIPC
HPI2
HPI1
FR4
RI3
FI3
PWM4
STNG
N.C.
WAKE UP
RF2
INM2
PWM
H/P
DRIVER
H BRIDGE
DRIVER4
H BRIDGE
DRIVER3
H BRIDGE
DRIVER2
H BRIDGE
DRIVER1
CONTROLLER
CONTROLLER
LEVEL
SHIFTER
LEVEL
SHIFTER
CONTROL
CHARGE
SAW GEN
CLK
OR OSC
BIAS
INTERFACE
STNBY
REFERENCE
BANDGAP
REFERENCE
(VREF)
— 9 — — 10 — — 11 —
5-3. BLOCK DIAGRAM
OPTICAL PICK-UP
BLOCK
(DAX-23E)
RF
A
B
E
F
LD
VCC
GND
PD
VR
FOCUS
COIL
TRACKING
COIL
IC401(1/2)
MOTOR/COIL DRIVE
FO2
36
RO2
34
32
30
28
26
M
SLED
MOTOR
40
38
M
SPINDLE
M902
M901
MOTOR
F+
F-
T+
T-
43
FI2
44
RI2
12
13
14
15
41
SFDR
46
SMDS
44
C176
42
TRDR
49
TFDR
48
FRDR
51
FFDR
50
DIGITAL SIGNAL PROC.
D/A CONV.
IC601
DIGITAL SERVO
85
D OUT
RFAC
71
RFDC
58
A
62
B
61
E
59
97L OUT1
LINE OUT
(OPTICAL)
104L OUT2
23
SDTO
25
CLOK
24
XLAT
28
XSOE
26
SENS
17
SCOR
35
FOK
21XRST
X601
16.9MHz
30
R4M
Q501
AVDD
PAPC
78
VLG02
69
42
SRDR
47
7
SYNC
FO3
RO3
FI3
RI3
FO4
RO4
FI4
RI4
FO1
RO1
FI1
RI1
C+
C-
S+
S-
MDP
43
3
1
4
IC402
XTAO
94
XTAI
93
F
60
DIGITAL
OUT
OPTICAL
J301
REMOTE
J302
DRY BATTERY
SIZE "AA"
(IEC DESIGNATION LR6)
2PCS. 3V
DC IN 4.5V
J401
IC301
109
106
7
.
2
1
.
111
.
9
12
15
.
19
21
.
8
.
24
25
2
3
.
.
.
BATT B+
BATT B-
114
XWE
120
XOE
119
XCAS
113
XRAS
XWE
4
XOE
22
XCAS
23
XRAS
5
118
117
116
115
.
.
.
A0
A10
A0
A10
D0
D3
IC602
16M DRAM
D0
D3
78
WDCK
83
WFCK
IC801
MICON
WP OPEN
21
AVLS
38
HOLD
93
COMPON
36
VCPU
OPEN
OFF
ON
S801
LIMIT
NORM
OFF
ON
AVLS
S802
HOLD
S803
G-PROTECTION
S804
SCK
10
MSDTO
12
XLAT
43
XSOE
44
MSDTI
11
SCOR
25
FOK
3
XIN
79
GRSCOR
26
WFCK
35
XRST
9
XPOWLT
46
SPDL MTR/FG
27
AD KEY
18
10
DATA
9
CLOCK
11
LATCH
13
AMUTE
47
XDOUT ON
14
AD SEL
7
AMUTE
45VOL LT
MUTE CONT
Q302
D601
MUTE
Q301
6
3
5
2
7
1
BIAS
28
BEEP
19
AD RMKEY
L IN
14
R IN
15
8
L OUT
IC351
HEADPHONE AMP
MUTE
18
BEEP
17
PWRSW
20
6
R OUT
7
VREF
+B SW
Q601
AVDD
TEST
TAP801
VCPU
32
RM DATO
IC802
TSB
SO
15
19TSB
31
RM DATI
SI
14
30RM SCK
SCK
16
34RM LAT
XLT
17
33RM RW
RW
18
MCLK
10
RESET
11
LCD
SWITCH UNIT
64
50
68
65
SEG0
SEG14
COM0
COM3
78
RESET
XHG ON
42
• Signal Path
: CD PLAY (ANALOG OUT)
: CD PLAY (OPTICAL OUT)
RECHARGEABLE
BATTERY
NH-DM2AA
2PCS. 2.4V
Q404
REG
Q412
Q402
D401
VCPU
DC DET
Q401,413
Q405
AVDD
48
RF4
51
VCC1
50
VCPU
61
VLGPO
47
INM4
49
DCIN
5
VG
59
BATM2
60
BATM1
65
VIN
80
VIN DET
2
L4
29
VD34
33
VD23
37
VD12
APC REF
79
BATT B-
D410
RS
46
CHG SW
45
RSTB
52
Q408
WAKEUP
SWITCH.
WAKEUP
8
DVDD
Q403
SWITCHING
Q406,407
8
VCC2 ON
71
L3
13
WAKEUP
4
AGC PWM
RF2
3
48
XAPC OFF
40
BAT DET
POWER CONTROL
IC401(2/2)
1
3
4
IC404
VCPU
20
DC INMNT
16

Related product manuals