EasyManua.ls Logo

Sony DCR-HC28E - Power Block Diagram (3;3)

Sony DCR-HC28E
63 pages
Print Icon
To Next Page IconTo Next Page
To Next Page IconTo Next Page
To Previous Page IconTo Previous Page
To Previous Page IconTo Previous Page
Loading...
DCR-HC28E_L2
3-8E
FP-380
FLEXIBLE
BOARD
VC-416 BOARD (3/3)
POWER (1/3)
(PAGE 3-6)
B
CONTROL KEY BLOCK
(SS17000) (2/2)
D_2.8V
D_2.8V
D_2.8V
D606
IR EMITTER
/NIGHTSHOT
CN1004
(2/2)
D_2.8V(NS_2.8V)
CN1012
(2/2)
MODE_LED_VDD
7
12
RV001
(ZOOM)
T W
CAMERA
D003
PLAY/EDIT
D002
6
CN9302
25
VDD_P
XSTBY
PD-281
BOARD
18
CN9605
VDD
14
XSTBY
CN9601
25
6
8
D_2.8V
D_2.8V
23
POFF
2.5 inch
COLOR
LCD UNIT
LCD901
Q9307, 9308
08
LB-121
BOARD
2
CN302
CN605 (2/2)
VDD
1
25
CN9301
19
CN301
2
20
L9302
L9301
L9303
EVF_VDD
EP_4.6V
COLOR
EVF UNIT
D302
(BACKLIGHT)
LCD902
LCD/EVF
DRIVE
(6/12)
IC9301
LCD/EVF
BACKLIGHT
CONTROL
(6/12)
IC9302
EP_8.5V
A_4.6V (EP_4.6V)
A_2.8V (EP_2.8V)
2
XSTBY_P
A_OUT
18
1
LCD
BACKLIGHT
DRIVE
Q9301 - Q9304
D9603 - D9605
(BACKLIGHT)
BL_H1 - BL_H3
11 - 9
20 - 22
TOUCH
PANEL I/F
Q9601, Q9602
()
SI-051 BOARD (2/2)
12
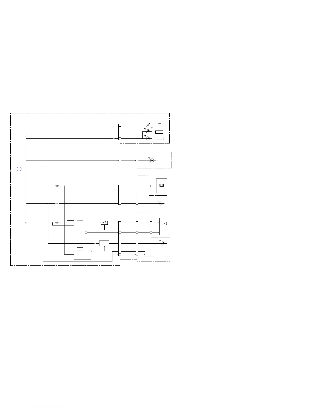
3-8. POWER BLOCK DIAGRAM (3/3)
( ) : Number in parenthesis ( ) indicates the division number of schematic diagram where the component is located.