EasyManua.ls Logo

Sony DCR-TRV255E - Flexible; Control Key Block

Sony DCR-TRV255E
78 pages
Print Icon
To Next Page IconTo Next Page
To Next Page IconTo Next Page
To Previous Page IconTo Previous Page
To Previous Page IconTo Previous Page
Loading...
DCR-TRV255E/TRV260/TRV265/TRV265E
2
1
3
4
5
6
7
8
9
10
11
12
13
14
15
1
2
3
4
S REEL
SENSOR
T REEL
SENSOR
H002
H001
TAPE_TOP (C)
TAPE_END (C)
TAPE_LED (K)
TAPE_LED (A)
REG_GND
S REEL (-)
S REEL (+)
SENSOR_VCC
T_REEL (+)
T_REEL (-)
HALL_COM
ME/MP
REC_PROOF
Hi8_MP
C_LOCK_SW
FP-300
FLEXIBLE
FP-802 FLEXIBLEFP-302
FLEXIBLE
FP-301
FLEXIBLE
Q002
TAPE END
D001
TAPE LED
Q001
TAPE TOP
S001
REC PROOF
Hi8 MP
ME/MP
S002
C.C. LOCK
1
2
3
4
5
6
7
8
9
10
11
12
13
14
15
16
VH-
17
18
19
20
MR
SENSOR
1
2
3
4
FP-299
FLEXIBLE
FP-228
FLEXIBLE
DEW SENSOR
21
22
1
2
3
4
1
2
3
4
1
2
3
4
DEW
M-SW (A)
M-SW (B)
M-SW (C)
FG1
FG VCC
FG2
REG_GND
CAP_U
CAP_U
CAP_W
CAP_W
CAP_V
CAP_V
VH+
HU1
HU2
HV1
HV2
HW1
HW2
S901
MODE SWITCH
M902
CAPSTAN MOTOR
1
2
3
4
VC-344 BOARD
(5/10)
CN2404
(PAGE 4-17)
VC-344 BOARD
(5/10)
CN2403
(PAGE 4-17)
Capstan servo(speed and phase)
Capstan speed servo
REC/PBREC
SIGNAL PATH
PB
HE
HE
HE
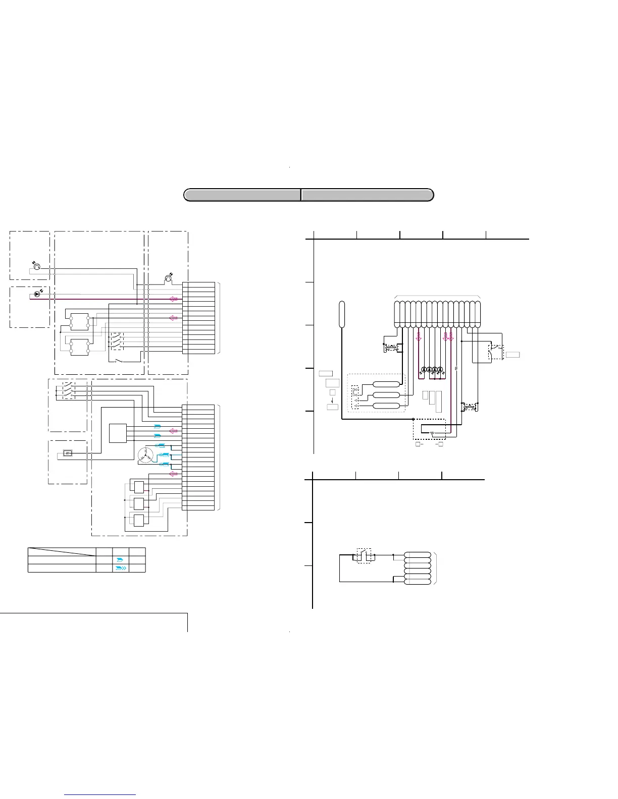
4-2. SCHEMATIC DIAGRAMS
FP-228, 299, 300, 301, 302, 802 FLEXIBLE BOARD
4-2. SCHEMATIC DIAGRAMS
FP-228, 299, 300, 301, 302, 802 FLEXIBLE BOARD
4-33
4-34
FP-228, FP-299, FP-300, FP-301, FP-302, FP-802, SS-5100, PR-5100
For Schematic Diagram
Refer to page 4-51 for printed wiring board.
CONTROL KEY BLOCK (SS-5100) is replaced as block,
so that PRINTED WIRING BOARD is omitted.
S003
1
2
3
4
RV001
20k
S002
S001
D001
D002
XX
D003
D004
1
A
R001
1k
(START/STOP)
(EJECT)
T
(ZOOM)
STATIC GND
LND001
1
2
3
4
5
6
7
8
9
10
11
12
13
14
XEJECT_SW
XPHOTO_FREEZE
REG_GND
D_2.8V
KEY_AD5
MODE_LED_VDD
XS/S_SW
XCAM_LED
N.C
XPOWER_SW
REG_GND
XMODE_SW
XVTR_LED
ZOOM_VR
REG_GND
XPOWER_SW
XMODE_SW
POWER/MODE_SW
16
15
CHARGE_LED_VDD
XCHARGE_LED
W
S004
POWER
MODE
ON
OFF
(CHG)
CHG
PLAY/EDIT
CAMERA
CN1009
(10/10)
(PAGE 4-27)
VC-344
B
342
E
5
D
C
05
(SS-5100)
CONTROL KEY BLOCK
XX MARK:NO MOUNT
D004
D002
D001
PHOTO
CONTROL KEY BLOCK (PR-5100) is replaced as block,
so that PRINTED WIRING BOARD is omitted.
S601
1
A
SE_GND
N.C
PANEL_REV
PANEL_REV
N.C
SE_GND
1
2
3
4
5
6
PD-204
CN6005
(PAGE 4-29)
(PANEL REVERSE)
B
342
C
05
(PR-5100)
CONTROL KEY BLOCK
XX MARK:NO MOUNT

Related product manuals