EasyManua.ls Logo

Sony DSC-P52 - Page 22

Sony DSC-P52
48 pages
Print Icon
To Next Page IconTo Next Page
To Next Page IconTo Next Page
To Previous Page IconTo Previous Page
To Previous Page IconTo Previous Page
Loading...
DSC-P52
COVER
COVER
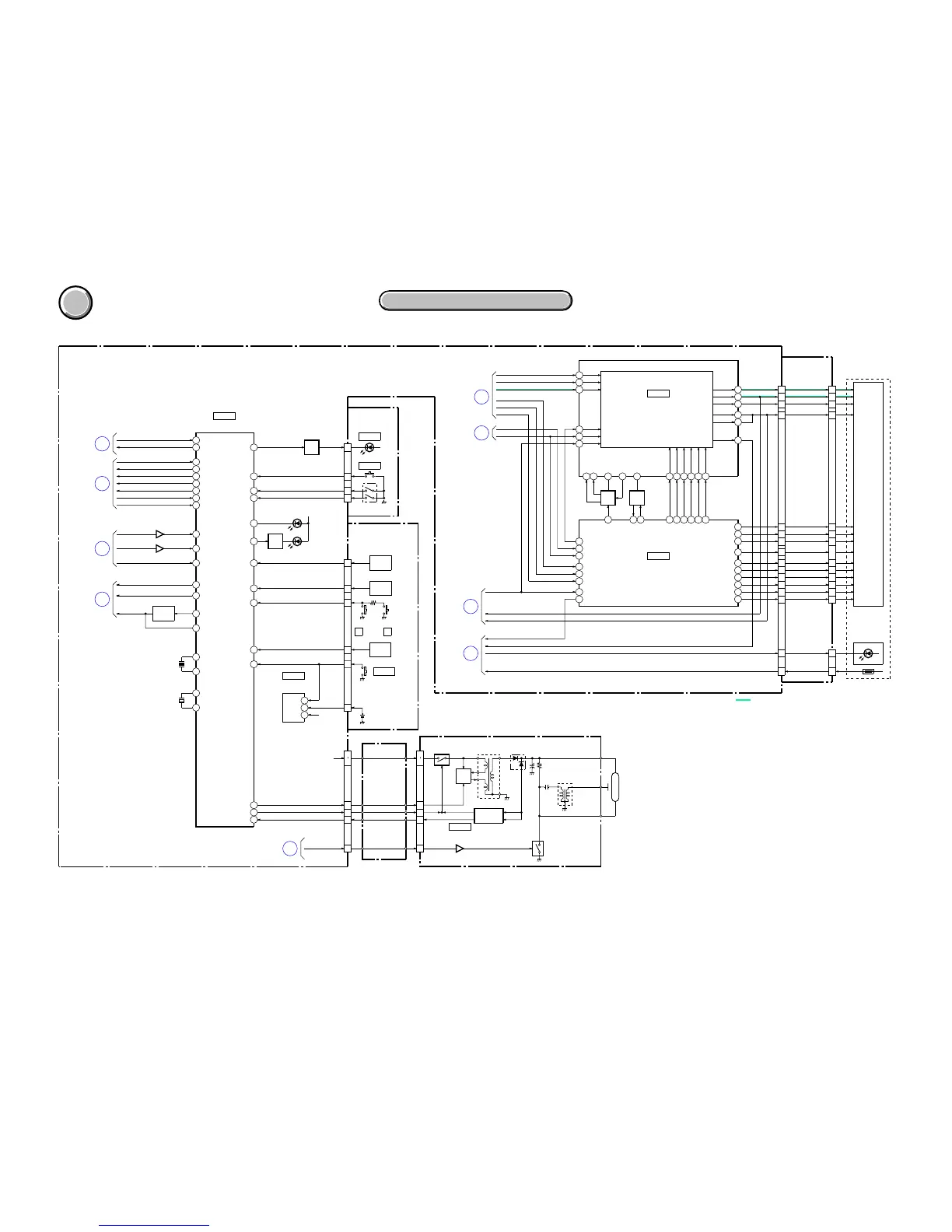
3. BLOCK DIAGRAMS
3. BLOCK DIAGRAMS
3-3. FRONT/LCD BLOCK DIAGRAM
3-5 3-6
( ) : Number in parenthesis ( ) indicates the division number of schematic diagram where the component is located.
SY-91 BOARD (2/2)
IC401
FRONT
CONTROL
(6/10)
(6/10)
SYS V
32
17
PWR LED ON
LED
DRIVE
Q402(2/2)
2
XRST SYS
77
FR SI
23
FR SO
24
XFR SCK
25
XCS MC
26
MC WAKEUP
80
XCS LCD
44
XMC HELP
36
4
SYS V
XRST SYS
FR SI
FR SO
XFR SCK
XCS MC
XMC NMI
MC UPDATA
MC HELP
MODU-
LATOR
Q403
Q401
MS IN
6
XMS IN
Q402(1/2)
XUSB JACK IN
9
USB JACK IN
AV JACK IN
11
AV JACK IN
6
SELF TIMER LED
19
SELF TIMER LED
BEEP ON
49
BEEP ON
MELODY
79
BEEP
MELODY EN V
74
X1 IN
28
X1 OUT
29
7
X2 IN
52
X2 OUT
51
X401
10MHz
X402
32.768kHz
POWER
S002
S003
(SHUTTER)
D2.9V
(POWER)
D002
10
5
3
1
CN705
RL-060
(FLEXIBLE)
34
36
CN702
(2/3)
FUNCTION
KEY
S100,104
S107,110
33
FUNCTION
KEY
S101,103
S105,108
RESET
S109
ZOOM
(INDEX)
S102 S106
T
W
35
4 MODE
DIAL
MODE SW
38
5
BT100
LITHIUME
BATTERY
(SECONDARY)
IC402
INITIAL RESET
BACKUP VCC
3VBAT
5RESET
7VIN
1
XPWR ON
4
XSHTR ON
5
XAE LOCK ON
55
KEY AD0
54MODE DIAL
73XRESET
75
XSTB SAVE
56KEY AD1
58KEY AD3
EVER 4V
34
XSTB FULL
46
STB CHG
IC501
IGBT
DRIVER
FLASH
CHARGE DET
Q505
3
CN704
10
12
TRANS
DRIVE
Q503
Q504
Q501,502
42
T501
CN501
D502
9
4
1
L501
XE H
TRIGGER
XE L
FLASH
UNIT
3
10
12
9
4
1
FP-643
(FLEXIBLE)
ST-82
BOARD
Q506
ST UNREG
XSTB PWR SAVE
STB CHARGE
XSTB FULL
STB ON
STB ON
ST UNREG
3
1
47
PANEL R
PANEL G
PANEL B
R IN
48
46
40
39
41
G IN
B IN
SI
XSCK
XCS
PANEL V
HDO
RST SYS
XCAM SCK
XCAM SO
8
OP IN+
8
OP IN-
9
BIAS
7
FILTER
OP OUT
10
BGP
33
VCO
11
OSC
D803
C818
L805
FRP
30
PFRP
29
XC SAVE
38
XP SAVE
45
BLACK IN
32
20
VR
22
VG
24
VB
27
COM OUT
37
EXT DA2
35
EXT DA1
29
PD
27
OSCI
26
OSCO
37
XCLP
39
SBLK
40
FRP
41
COM FRP
28
XC SABE
25
XSTB
IC801
LCD
DRIVER
(5/10)
(5/10)
IC802
LCD TG
SO
45
XSCK
42
XCS
44
XVD
48
HDI
1
XCLR
36
SI
46
XCS PANEL TG
5
VG
V COM AD
14GRES
16
GSRT
17
SBTYB
18
RESET
20
SRT
21
OE
22
CLR
23
MCKJ
24
HCNT
22
CN702
(3/3)
11
13
14
15
17
18
20
19
21
23
24
16
CONTROL
SWITCH
BLOCK
(SW-392)
(3/3)
19
6
8
10
14
15
17
16
20
21
11
CN102
VR
VG
VB
V COM
18
PANEL UNIT
LCD901
COLOR
LCD
MONITOR
ND901
BACK LIGHT
30
29
4
3
CN101
BL H
BL THL
PWM
9
9
BL ON
BL LEVEL
BL H
BL THL
LED
DRIVE
16
CHARGE/STB
Q701(2/2)
15XTALLY LED
D2.9V
D702
(SELF-TIMER/
RECORDING)
D704
(FLASH CHARGE)
15GPCK
12
7
GRES
GSRT
STBYB
RESET
SRT
OE
CLR
MCKJ
HCNT
GPCK
13
9
.
VIDEO SIGNAL
POWER
BLOCK
(PAGE 3-7)
CAMERA
BLOCK
(PAGE 3-4)
CAMERA
BLOCK
(PAGE 3-4)
CAMERA
BLOCK
(PAGE 3-4)
CAMERA
BLOCK
(PAGE 3-4)
CAMERA
BLOCK
(PAGE 3-4)
CAMERA
BLOCK
(PAGE 3-4)
CAMERA
BLOCK
(PAGE 3-4)
CAMERA
BLOCK
(PAGE 3-4)
CONTROL SWITCH
BLOCK (SW-392)
(2/3)

Related product manuals